作为一个孩子,甚至是一个青少年,绝对是一种特殊的感觉,一种没有任何忧虑的感觉。我们的孩子有更好的教育条件,他们想带着渴望走进校园的热情,一直是创造一个积极和充满活力的环境的主要动机。现在的学校除了教学就是游戏、娱乐和其他的东西,这些因素使学习更有吸引力。
Being a kid and even a teenager is definitely a special feeling, a feeling of being without any worries. The enthusiasm for our children to have better conditions for education, where they want with desire to go to campus, has been the main motive to create a positive and energetic environment. The school now except teaching is a game, entertainment and anything else, factors that make the learning more attractive.




多功能空间在一个地方得到了发展,每个空间都有自然采光,各种颜色和内部绿色的融入是科索沃美国学校新校区的一些组成部分。
Multifunctional space where multipurposes are developed in one place, natural lighting in each space, variety of colors and incorporating of green in the interior are some of the components that characterize the new campus of the American School of Kosovo.

院子里有很多圆形的绿洲,有些是绿色的,有些是充满儿童游戏的,都是相互连接的。此外,还丰富了多功能圆形剧场、各种运动的开放地形和封闭地形。这些包括了2670平方米的面积,因此被命名为校园。
The yard is enriched with circular oases, which in some cases are green and in some cases filled with children's games, all interconnected. Also, enriched with multipurpose amphitheater, open terrain for various sports and closed terrain. These include an area of 2670 m2 , so giving the name Campus.

幼儿园的特点是中央长廊,它将所有周围的空间与内部中庭连接在一起,中庭内生长着多年的橄榄树。这棵树给人的印象是,它将一直在那里,并将被一代又一代地传递下去。橄榄树知道所有的学生,它知道他们中的哪些人将成为未来的领导者!。不时地,它给人的印象是一个从外面表达爱的祖父。来自上方的照明为画廊增加了艺术价值,并为许多功能创造了空间,一句话,创造了生命。
The kindergarten is characterized by the central gallery, which connects all the surrounding spaces together with the internal atrium, within which grows a multi-year olive. This tree impresses that it will be there and will be conveyed by generation and generation! .. Olive knows all the pupils, it knows which of them will be the leaders of the future !. From time to time, it gives the impression of a grandfather who expresses love from outside. Lighting that comes from above adds artistic value to the gallery and creates space for many functions, in one word creates life.

根据教育机构的标准,幼儿园被设想为两个独立的功能区,面积为1480平方米。
The nursery is conceived in two separate sections with functions, based on standards of educational institutions and has a area of 1480 m2

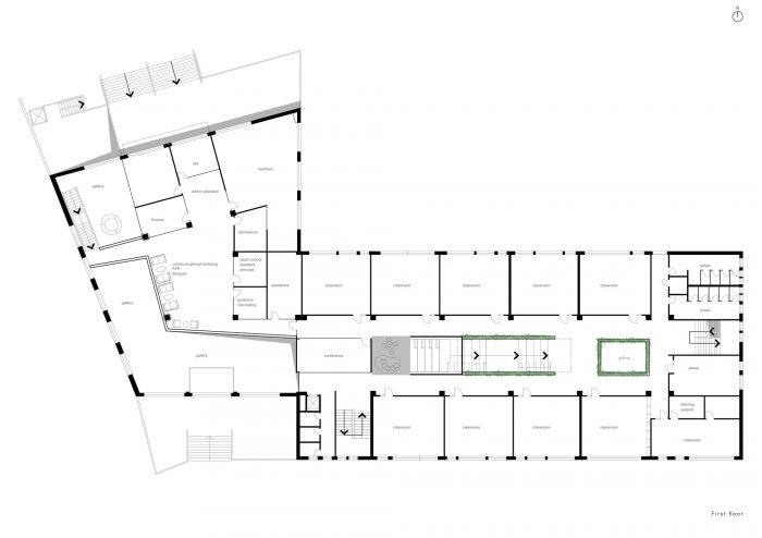
考虑到高中是专门为青少年设计的,当然是一个面积更大的环境,达到6605平方米。学校的特点是扩大的、水平和垂直的元素。
Considering the high school is dedicated to adolescents, of course is an environment with a larger area that reaches 6605 m2. The school is characterized by enlarged, horizontal and vertical elements.

地下有技术设施和实验室,并有厨房和自助餐。
地面层,作为一个重要的元素,拥有相当灵活的空间,可以举办各种活动。这个空间充满了绿色,并有一个三个画廊的礼堂,它连接着上面的三个楼层。画廊和礼堂都有自然天顶照明,这使得学校具有整体的功能。
Subterranean is organized with technical facilities, laboratories and has the kitchen together with the food buffet.
The ground floor, which holds the main entrance as an important element with a fairly flexible space, enables to be held various activities. This space is filled with green and has a three-gallery auditorium, which connects the three upper floors. The galleries and the auditorium are exposed by natural zenith lighting, which make the school function as a entirety.

每个部分都有自己的特色颜色,给每个部分带来不同的身份。而从画廊看,色彩的游戏被视为一个综合体。
最重要的是,当小学设施和多功能设施完成后,校园将被视为完成。
Each section has its own characteristic color, giving different identities to each of them. While from galleries, the play of colors is perceived as a complex.
Above all, the campus will be qualified as completed when the primary school facility and multifunctional facility are finished.












Architects: Maden Group
Area : 6605 m²
Year : 2018
Photographs :Leonit Ibrahimi
Manufacturers : B&T design, Alpina, Ideal Lux light, Knauf, Orendi furniture
City:SHKABAJ
Country:Kosovo