AMN学生公寓是印度尼西亚泗水市的一个政府试点项目,它为多民族和文化背景的大学和理工学院学生提供住宿、培训和职业教育。印度尼西亚有1340多个民族,分布在各个岛屿上。被选中的学生被邀请并从各省和偏远地区集合起来,体验多元化的生活:在他们自己的民族群体之外进行交际和社交。作为该计划的一部分,经营者在他们逗留期间提供语言培训、艺术和音乐课、食堂的营养计划和回收研讨会等活动。SHAU是由公共工程和住房部委托的,它促进了规划和建设。详细的工程图纸由PT Tisaga Konsultan交付。
AMN student housing is a government pilot project in Surabaya, Indonesia, which provides accommodation, training, and vocational education for university and polytechnic students of multiple ethnicities and cultural backgrounds. Indonesia has over 1340 ethnic groups spread all over the islands. Selected students are invited and assembled from all provinces and remote locations to experience pluralistic living: mingling and socializing beyond their own ethnic group. As part of the program, the operator provides language training, art and music lessons, a nutrition program in the dining hall, and recycling workshops, among other activities during their stay. SHAU was commissioned by the Ministry of Public Works and Housing, which facilitated the planning and construction. The detailed engineering drawing is delivered by PT Tisaga Konsultan.




场地位于Jl. Jemur Andayani,位于泗水老城区和胡安达国际机场之间,交通便利,距离市内二十多所大学都很近。这块1公顷的土地与泗水航空职业技术学院、政府办公室和5层楼高的住房相邻。
The site at Jl. Jemur Andayani is conveniently located between Surabaya’s old town and Juanda international airport, with easy proximity to more than twenty universities in the city. The 1-hectare land borders the Aviation Polytechnic of Surabaya, government offices, and 5-storey housing.

SHAU的设计方法是将住房分为四个带绿色屋顶的梯形体,用高跷抬高,以提供一个像传统房屋一样的开放的底层,同时让大多数设施都能平等地使用。根据太阳的方向,面向东方和西方的外墙被设计成有限的开口,以减少过热。安装了百叶窗来过滤阳光。为了优化维护的便利性,立面上的绿色植物带配备了利用收集的雨水进行自动灌溉的装置。每个梯田体量的每一层都有一个空隙,让自然光和空气流通到整个建筑,使设计更加节能。
SHAU approached the design by dividing the housing into four terraced volumes with green roofs, elevating them on stilts to provide an open ground floor as in traditional houses while allowing most facilities to be equally accessible. Adjusting to the sun orientation, the facades facing East and West are designed to have limited openings to reduce overheating. Louvers are installed to filter sunlight. Optimizing maintenance convenience, green strips of plants on the façade are equipped with automated irrigation using harvested rainwater. Each terraced volume has a void on every floor to allow natural light and airflow throughout the building, making the design more energy-efficient.

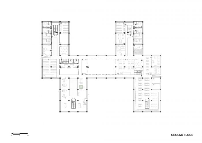
住房在高层住宅中分为男性和女性部分,但在底层则相互连接。学习和娱乐设施包括室内和半室外的学习场所,一个用于讲座、音乐和文化表演的大礼堂,一个运动场,一个语言中心,图书馆,咨询室,以及宗教设施,包括一个musholla和另一个可供任何宗教使用或用于冥想的多宗教空间,以及一个用于仪式的开放广场。一进门就可以看到一楼的大厅和带院子的探访休息室,旁边就是餐厅。
The housing is divided into male and female sections on the upper residential floors yet connected on the ground floor. Learning and recreational facilities consist of indoor and semi-outdoor study spots, a big auditorium for lectures, music and cultural performances, a sports field, a language center, library, counseling rooms, and religious facilities including one musholla and another multi-religion space that can be used by any religion or for meditation, and an open plaza for ceremonial purposes. A lobby and visiting lounge with a courtyard on the ground floor are accessible upon entry, next to the dining hall.


总共有180个房间,每个房间最多可以容纳3名学生。一楼有可供轮椅通行的单元。辅导员单位位于顶层。景观设计包括生产性花园,学生可以作为项目的一部分进行照料,还有一个由涂鸦墙和雕塑花园组成的参与性艺术角,学生可以在这里展示他们的艺术表现。整体体验被设计成一个友好的度假胜地,让学生可以在那里休息并有家的感觉。只要有可能,学习、会议和聚会的座位安排都遵循印度尼西亚的lesehan概念:坐在地板上或高台上。
In total, there are 180 rooms, and each can host up to 3 students. There are wheelchair-accessible units on the ground floor. Mentor units are located on the top floors. The landscape design includes productive gardens where the students can tend as part of the program, as well as a participatory art corner consisting of graffiti walls and a sculpture garden where students can display their artistic expression. The overall experience is designed to be a friendly resort for students where they can rest and feel at home. Whenever possible, the seating arrangement for studying, meeting, and gathering follows the Indonesian concept of lesehan: sitting on the floor or raised platforms.











Architects: SHAU Indonesia
Area : 9260 m²
Year : 2022
Photographs :Pambudi Yoga Perdana, Ben Kurniawan
Manufacturers : Toto, Asahimas, Kends, Niro Granite Indonesia, Propan, Purwodadi Home Industry , Roman Granite
Lead Architects : Daliana Suryawinata, Florian Heinzelmann
Contractors : Pt. Nindya Karya
Socio Cultural Consultant : Pauline Boedianto
Architects : Ignatius Aditya Kusuma, Aprilea S. Ariadi
Assistant Architect : Prisca Bicawasti
Detailed Engineering Document : Pt. Tisaga Konsultan
City : Surabaya
Country : Indonesia