这是一个有85年历史的住房中的复式单元的改造项目,为一个四口之家。由于他们不是在阿姆斯特丹长大的,那里有很多阴暗的天气,他们的要求是在房子里有最大的阳光。而且,他们还希望有一个可以感受到彼此的空间。
This is a renovation project of a duplex unit in an 85-year-old housing for a family of four. Since they have not been brought up in Amsterdam where they have a lot of gloomy weather, their request was to have maximum sunlight in the house. And also they want to have a space where they can feel each other.



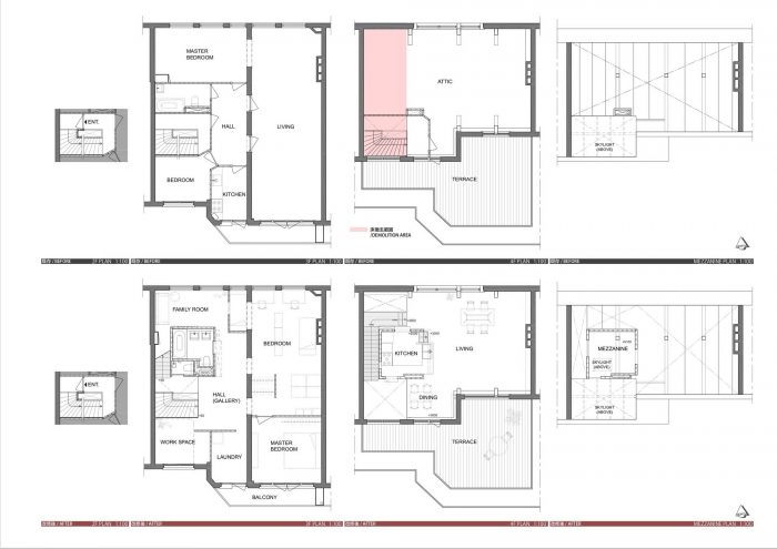
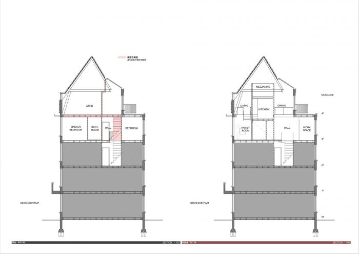
最初,在连接上下两层的楼梯顶部有一个天窗。虽然楼梯本身充满了来自天窗的阳光,但楼梯和周围的墙壁阻止了光线进入房子的其他部分。我们把楼梯、墙壁和上层楼的一部分板块拿掉,这样阳光就可以撒到房子的各个角落。同时,这个空洞连接着家庭。
Originally, there is a skylight at the top of staircase which connects upper and lower floors. Though the staircase itself was filled with sunlight coming from the skylight, the stairs and walls around them prevent the light from entering into the other part of the house. We took away the stairs, walls and a part of the upper floor’s slab, so that the sunlight can spread into all over the house. At the same time, the void connects the family.

有一个象征性的塔形元素贯穿整个房子。厨房、浴室和厕所都挤在塔里,利用现有的管道箱。我们在塔的周围放置了新的格栅楼梯,以创造一些不同层次的住宿场所。有了新的流通和空间装置,这个家庭可以创造和享受他们日常生活的各种场景。
There is a symbolic tower-shaped element standing through the house. Kitchen, bathroom and toilets are packed into the tower, utilizing existing pipe box. We placed new grating stairs climbing around the tower to create some place to stay at various levels. With the new circulation and spatial device, the family can create and enjoy various scenes of their daily life.











Architects: MAMM DESIGN
Area: 133 m²
Year: 2013
Photographs: Takumi Ota
Structural Engineers: STRUCTURE engineering
Lighting Design: LIGHTDESIGN
Main Contractor: Smartinterior
Architect In Charge:Akira Mada, Maya Mada
City:Amsterdam
Country:The Netherlands