位于阿姆斯特丹市中心的独家城市别墅。在繁华的阿姆斯特丹市中心,坐落在历史悠久的运河环的一个安静部分,这个可持续发展的别墅已经开发出来。这座独家住宅的特点是其宽敞的布局和对分层的巧妙利用,以创造不同的生活体验。舒适、日光和真实性是设计的重要主题。
Exclusive city villa in the heart of Amsterdam. In the bustling city center of Amsterdam, situated in a quiet part of the historic ring of canals, this sustainable villa has been developed. The exclusive residence is characterized by its spacious layout and clever use of a split level to create different living experiences. Comfort, daylight, and authenticity were important themes in the design.



位于历史城市中心的新建筑。房屋的外墙是对传统运河房屋的现代诠释。使用独特的材料和干预措施,如前立面的钢梁和锌屋顶,创造了一个独特的立面形象。棕红色的砖和铸铁围栏创造了一个合适的街景。通过这种方式,现代干预措施与传统元素相结合。
New building in the historic city center. The facades of the house are a modern interpretation of a traditional canal house. The use of exclusive materials and interventions, such as a steel beam in the front façade and a zinc roof, create a unique façade image. The brownish-red brick and the cast-iron fencing create an appropriate streetscape. In this way, modern interventions are united with traditional elements.


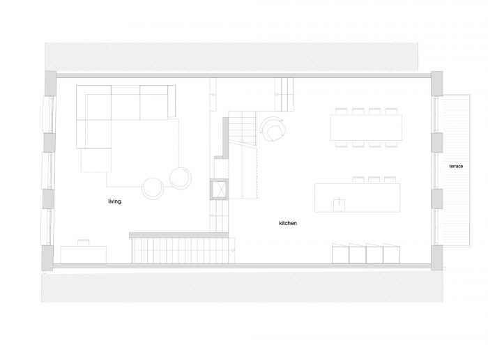
寻找合适的生活氛围。一楼是所有关于灵活性的。该空间可以很容易地从车库转变为艺术馆或办公室。生活空间位于一楼。这层楼的高度差使前面的客厅比例宜人,具有安全感,而后面近4米高的厨房给人以空间感和豪华感。高大的法式门提供了一个阳光和温暖的生活体验。
In search of the right living atmosphere. The ground floor is all about flexibility. The space can easily be transformed from a garage to an art gallery or office. The living spaces are located on the first floor. The difference in height on this floor gives the living room at the front pleasant proportions with a secure atmosphere, while the almost 4-meter high kitchen at the back gives a feeling of space and luxury. The high French doors provide a sunny and warm living experience.


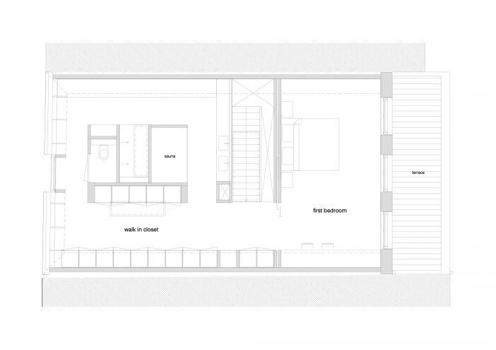
坚固和诚实。使用纯粹和坚固的材料的基本原则在房间隔断中得到了统一,它与楼梯一起被设计成一个雕塑。宽敞的带天窗的楼梯提供了通往睡眠区的通道,其设计考虑到了酒店的诱惑力。在顶层,第一间卧室、步入式衣帽间和健康室被设计成相互开放的连接,将豪华酒店的感觉带入屋内。从相邻的屋顶露台上,可以看到内部花园的壮丽景色。
Sturdy and honest. The basic principle of using pure and sturdy materials is united in the room divider, which together with the staircase has been designed as a sculpture. The spacious staircase with skylight provides access to the sleeping quarters, which have been designed with hotel allure in mind. On the top floor, the first bedroom, walk-in closet, and wellness are designed in open connection with each other, bringing the luxury hotel feeling into the house. From the adjoining roof terrace, there is a magnificent view of the inner garden.


可持续的城市别墅。通过使用地源热泵和太阳能电池板,可以在没有天然气连接的情况下建造房屋,为夏季制冷和冬季供暖创造了可能,使房屋具有恒定的理想温度。外墙的高绝缘值和三层玻璃也在其中发挥了重要作用。太阳能电池板被平放在屋顶上。这使屋顶保持美观,并使房子在很大程度上能够自给自足。这就是位于阿姆斯特丹历史中心独特位置的可持续城市别墅。
Sustainable urban villa. By using a ground source heat pump in combination with solar panels, it was possible to build the house without a gas connection, creating the possibility to cool the house in summer and heat it in winter for a constant ideal temperature. The high insulation values of the facades and triple glazing also play an important role in this. The solar panels are positioned flat on the roof. This keeps the roof aesthetically pleasing and makes the house to be largely self-sufficient. for a. The result is a sustainable urban villa at a unique location in the historic heart of Amsterdam.



















Architects: BNLA Architecten
Area : 283 m²
Year : 2020
Photographs :Studio de Nooyer
Manufacturers : Bulthaup, Formani, Vande Moortel, Xinnix, NedZink, Reynaers, Van Bruchem staircases
City:AMSTERDAM
Country:THE NETHERLANDS