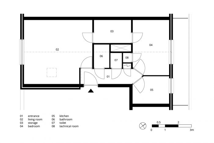
如何将阿姆斯特丹市中心的一个前社会住房小公寓改造成一个宽敞的城市阁楼?Bureau Fraai,一家来自阿姆斯特丹的设计公司,首先摆脱了这个小公寓核心周围的所有门、墙和小房间。他们的设计重点是创造一个由桦木胶合板组成的坚实的木质体,并在公寓的整个长度上延伸墙柜。
How to convert a small former social housing apartment in the city centre of Amsterdam into a spacious urban loft? Bureau Fraai, a design firm from Amsterdam, first of all got rid of all doors, walls and tiny rooms around the core of this small apartment. Their design focused on creating one solid wooden volume of birch plywood with extended wall cabinets alongside the whole length of the apartment.



通过将浴室、厕所、储藏室和一张箱式床等项目全部纳入木制容积,容积周围的空间可以自由用于其他项目,如生活、用餐、烹饪和其他生活乐趣。
By incorporating program like bathroom, toilet, storage and a box-bed all inside the wooden volume the space around the volume can be freely used forother program like living, dining, cooking and all the other pleasures of life.









Architects: Bureau Fraai
Area : 56 m²
Year : 2015
Photographs :Wim Hanenberg
Contractor : De Vakman
Interior Builder : MetNils interieurmaatwerk
Architect In Charge : Daniel Aw, Rikjan Scholten
City : Amsterdam
Country : The Netherlands