圣莱热的古马内格(Ancien Manége)是在政府的倡议下,由建筑师弗朗索瓦-布鲁莱(FRANÇOIS BROLLET)在1828至1829年间建造的。该建筑的构成遵循了19世纪初军事建筑的规范,建筑的中心是一个有顶的竞技场,两边是两个较低的纵向建筑,用作马厩。高度上的差异使得中央空间能够被一系列高大的窗户所照亮,这些窗户也被用来为竞技场上方的斗篷通风。
Ancien Manége of Saint-Léger was built between 1828 and 1829 at the initiative of the Government by the architect FRANÇOIS BROLLET. The composition of the building followed the canon for military buildings of the early 19th century, with a covered arena at the center of the construction, flanked by two lower longitudinal buildings used as stables. The difference in height allowed for the central space to be lit by a series of high windows also used to ventilate the combles above the arena.





一个半圆形的Rotonde,决定了主入口和乡绅的房子,完成了中央的体积。四个容纳次要空间的塔楼界定了建筑的各个角落。随着汽车的日益普及和马术活动在市中心被拒绝,1930年它被改造成了一个车库。为了增加其作为车辆停车场的能力,该建筑在1950年根据建筑师JEAN CAMOLETTI的项目进行了大幅度的改造。
A semi-circular Rotonde, determining the main entrance and the house for the squire, completes the central volume. Four towers that housed secondary spaces defined the corners of the building. Following the increasing popularity of the car and the rejection of equestrian activities in the city center, in 1930 it transformed into a garage. To augment its capacity as parking for vehicles, the building is considerably transformed in 1950n following the project by the architect JEAN CAMOLETTI.

两块混凝土板和一个通往上层的坡道系统的引入,改变了建筑的空间结构。各种大型开口重新定义了外墙,坡道的新体量改变了圣莱热街的外墙构成。事实上,Manège是一个未被充分利用的基础设施,由居民协会Manège pour Tous推动了一个参与过程,目的是使该建筑回归城市生活。该协会的建议导致日内瓦市政厅在2014年发起了一个竞争,为邻居协会、托儿所、玩具图书馆、学校餐厅和一系列共享空间提供一个多功能建筑的空间。
The introduction of two concrete slabs and a system of ramps to access the upper levels modified the spatial configuration of the building. Various large openings redefined the facades and a new volume for the ramps altered the composition of the facade on Rue Saint-Léger. The fact that the Manège was an underutilized infrastructure, originated a participatory process promoted by the association of inhabitants Manège pour Tous with the aim of returning the building to the life of the city. The proposals of the association led to a competition launched by the Geneva town hall in 2014 for a multipurpose building housing space for the neighbor’s association, creche, toy library, school restaurant, and a series of shared spaces.

该项目的出发点是理解所发现的建筑物的空间和建筑配置,并评估其潜力,以最小的干预成为一个可居住的公民建筑。该项目建议重新利用和调整现有的结构和建筑元素,结合有选择的拆除、准时的维修和最低限度的增建,目的是利用建筑各部分的大气、建筑和热能质量。
The point of departure of the project is the comprehension of the spatial and construction configuration of the building as found and assessing its potential to become an inhabitable civic building with minimum intervention. The project proposes the reuse and adjustment of existing structures and construction elements combined with selected demolitions, punctual repairs, and minimum additions with the intention of utilizing the atmospheric, architectural, and thermal qualities of the various parts of the building.

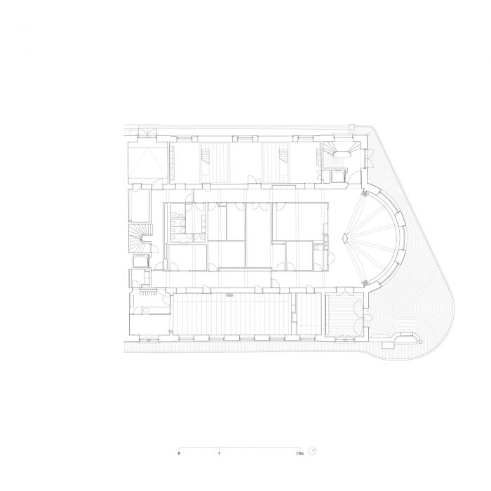
该建筑从Julienne-Piachaud街进入,通过一个新的人行道,使城市街区更加清晰,并在入口附近建立了与Promenade de la Treille的视觉关系和新的公共空间。面向公众的主要入口被放置在建筑的左侧,当从Place du Bourg-de-Four走过来时,正面可见。从塔楼进入建筑,使半圆形的圆形大厅成为一个直接与街道相连的客厅,保留了1950年的混凝土结构和阳台。
The building is accessed from Rue Rue Julienne-Piachaud via a new pavement that clarifies the urban block, establishing a visual relation with the Promenade de la Treille and new public space in the proximity of the entrance. The main access door for the public is placed on the left side of the building, becoming frontally visible when approaching from Place du Bourg-de-Four. Accessing the building from the tower allows for the semi-circular rotunda to become a living room in direct relation to the street, preserving the 1950 concrete structure and balconies.

较低的混凝土板被保留下来,形成一个服务基座,所有的公共服务被放置在这里,使所有的周边空间没有障碍物,并有窗户通往外部。中间的混凝土板被部分拆除,以释放大的拱形开口,并获得一个慷慨的公共沙龙,也由服务基座提供服务。流动性在两个与塔楼平行的酒吧中得到解决,一个是前面的公共性质,一个是后面的工作人员。
The lower concrete slab is be preserved forming a service plinth where all common services are placed, liberating from obstructions all the perimeter spaces with windows to the exterior. The intermediate concrete slab is partially demolished to liberate the large arched openings and obtain a generous common Salle also serviced from the services plinth. Circulation is resolved in two parallel bars aligned with the towers, one of more public nature at the front and one for staff at the back.

所有新增加的部分都是用木头做的,以隔断的形式界定了底层的大型服务区和两个大型隔断,从声学上将Salle与建筑的其他部分隔开。唯一新增加的结构是南翼的新屋顶,这是拆除圣莱热街较高体量的结果,也成为上层的一个露台。
为了使Salle能被多个用户同时使用,或在特殊场合作为一个大房间使用,一个悬挂的结构可以被降低或提升,在Salle内形成一个部分声学和热学分离的空间。这个元素被悬挂在现有的木质结构上,通过一个中央天窗照明,同时也为大厅提供自然通风。
All new additions are realized in wood, taking the form of partitions that define the large block of services on the ground floor and two large partitions that acoustically exclude the Salle from the rest of the building. The only new structural addition is a new roof over the south wing, a result of the demolition of the higher volume in Rue de Saint-Léger, also becoming a terrace on the upper level.
In order for the Salle to be occupied by multiple users simultaneously or used as one large room for special occasions, a suspended structure can be lowered or lifted to form a partially acoustically and thermally separated space within the Salle. This element is hung from the existing timber structure and lit via a central skylight that also provides natural ventilation to the salle.




该项目试图使热围护结构的优化和建筑遗产价值的保护兼容。为了尽量减少对现有木材结构的干预,现有的通风阁楼被保留下来,并隐藏在新的吊顶后面,包括保温层。通过引进新的隔热橡木框架窗,用户可以进行多种操作,热性能也得到了提高。新的插入物被减少为两种类型:一种是立体的,完成了现有的结构,重新建立了建筑的形式清晰度,另一种是用木材实现的,以适应当前的使用。
The project tries to make compatible the optimization of the thermal envelope and the conservation of the heritage values of the building. In order to minimize the intervention in the existing timber structures, the existing ventilated lofts are preserved and concealed behind new suspended ceilings including thermal insulation. The thermal performance is also enhanced with the introduction of new insulated oak frame windows with multiple operation possibilities from the users. New insertions are reduced to two types: the ones of stereotomic character, that complete the existing structure to reestablish the formal clarity of the building, and the ones realized in wood that adapt to current uses.


这种构造上的二分法的引入使我们能够在建筑中建立一种秩序,随着时间的推移体现出其适应性。我们的目的不是要建立一种新的形式语言,与现有的形式语言相对立,而是要在新的元素和已经存在的元素之间建立一种对话。使用木材作为主要材料,允许未来可能改变建筑的使用方式,将干预理解为正在进行的改造过程中的另一个阶段,即Ancien Manége所经历的过程。
The introduction of this tectonic dichotomy allowed us to establish an order in construction that manifests its adaptability over time. The intention is not to establish a new formal language as opposed to the existing, one but rather to establish a conversation between the new elements and those already in place. The use of wood as the main material allows for possible future alterations to the way the building might be used, understanding the intervention as one further stage of the ongoing process of transformation the Ancien Manége has undergone.





































Architects: Estar
Area : 2433 m²
Year : 2021
Photographs :Andrés Fraga, Luis Díaz Díaz
Manufacturers : AGROB BUCHTAL, Forster, Glutz, Kemmlit, Silent Gliss, Winckelmans, XAL, Ytong, dormakaba, ACM, AMANN CUISINES, AMG-FECHOZ, ASCENSEURS SCHINDLER, Astori Frères, Ateliers Casai, BALZAN-INMER, BOUYGUES E&S INTEC SUISSE, CAILLOU, ENTERPRISE BELLONI, GEORJON
Architect Director : STEFANO DANIELE CIURLO WALKER, AURORA ARMENTAL RUIZ
Architect And Project Manager : JON ONANDIA
Architect : XULIO TURNES VIEITO, INES GOMES, ALEJANDRO MORALES MARTÍN, JULIA NAHMANI, RICCARDO AMARRI
Intern : MAYA BRAMS KOCH, SAKURA AOBA, JOHANNA HEMBERGER
Cost Control And Administration : MARÍA JOSÉ TORRENTE BELLAS
Civil Engineer : ESM
Building Physics : ESTIA
Building Survey Architect : ARCHEOTEC
Surveyor : BUFFET BOYMOND
Heating And Ventilation Engineer : ECOBUILDING
Sanitary Engineer : BUCLIN
Electrical Engineering : DSSA
Lighting Consutlant : ESTAR, QUICLER-LOPEZ
Acoustic Engineers : AAB
Security Engineers : PHENIX CONCEILS
SCENIC ENGINEER : VADAS
Wayfinding : ESTAR
Model Photography : ANDRÉS FRAGA
City : Genèva
Country : Switzerland