安妮是一栋位于拉文纳历史中心的房子。该项目的目的是保护并赋予该建筑及其建筑的所有形态和类型学元素以价值。房子的主要特点是原来的木制天花板,在施工过程中发现并完全修复,作为现有建筑结构的材料厚重和通过庭院过滤的光线的柔和之间的微妙平衡的一部分。
Anne is a house in the historical center of Ravenna. The aim of the project is to preserve and give value to all the morphological and typological elements that characterize the building and its architecture. The main feature of the house is the original wooden ceilings, discovered during construction and fully restored, as part of a delicate balance between the material heaviness of the existing built structure and the softness of the light filtered through the courtyard.



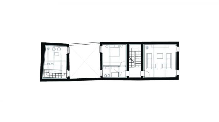
该住宅单元由两座不同的建筑组成,由内部庭院分隔,是典型的哥特式地段的城市构型,是拉文纳市历史中心的典型。
The residential unit is made up of two distinct buildings, separated by the internal courtyard, in a classic urban conformation of a Gothic lot, typical of the historic center of the city of Ravenna.

主体建筑在地上三层,由一个内部的arycentric楼梯连接,事实上,它将建筑的每一层都分成了两个部分。主体建筑的底层,也就是道路入口处,已经被重新审视,保持原有的类型学解读不变,但同时,将设计重点放在连接入口和内部庭院的透视轴上。这样一来,院子就成了房子的真正扩展,重新创造了一个单一的内部和外部空间,被珍贵的绿色空间所软化,这些绿色空间里种植着诸如Nandina Domestica和各种药用香料的精华。现有的楼梯是建筑性质的一个基本类型元素,通过尊重其价值的保守选择,保持不变并得到保护。
The main building is developed on three floors above ground connected by an internal barycentric staircase which, in fact, separates each floor of the building into two parts. The ground floor of the main building, from which the road access takes place, has been revisited keeping the original typological reading unchanged but, at the same time, focusing the design on the perspective axis that links the entrance and the internal court. Thus expressed, the courtyard becomes a real expansion of the house, recreating a single internal-external space, softened by the precious green space planted with essences such as Nandina Domestica and various medicinal spices. The existing staircase, a fundamental typological element of the nature of the building, is kept unchanged and safeguarded through conservative choices that respect its value.


在顶层,旧的假天花板的拆除揭示了新的意想不到的空间配置,通过一个连续的家具解决方案进行点缀和概念性的创造,隐藏了专门用于睡眠区的服务,使双高的体积完全自由。
On the top floor, the demolition of the old false ceiling has revealed new unexpected spatial configurations, embellished and conceptually created through a continuous furnishing solution that conceals the services dedicated to the sleeping area and leaves the double-height volume free in its entirety.


内部庭院是房子的真正核心。在这里,传统和现代材料之间的对话通过恢复附属建筑的原始外墙和周边墙体而得到加强,这些墙体是裸露的砖块,以前隐藏在水泥抹灰后面。在立面的下部,连接附属建筑底层和天井的大型中央开口的现代元素与主建筑立面中厨房的两个相对的传统拱形开口形成了对立。
The internal courtyard is the real heart of the house. Here the dialogue between traditional and contemporary materials is enhanced by the recovery of the original facade of the annex and the perimeter wall, in exposed brick, previously hidden behind a cement plaster. In the lower part of the facade, the contemporary element of the large central opening, which connects the ground floor of the annex with the patio, is created in antithesis to the two opposite traditional arched openings of the kitchen, in the facade of the main building.

热处理过的落叶松木覆盖层的使用,以垂直板条的方式铺设,强烈地提醒我们其传统用途,并有助于材料的选择和相互协调,向我们传达宁静的感觉。
The use of the heat-treated larch wood cladding, laid in vertical slats, strongly reminds us of its traditional use and contributes to that feeling of serenity that the materials, chosen and coordinated with each other, convey to us.


在夏天,庭院变成了一个露天的客厅,而在冬天,绿色空间的存在仍然是房屋底层所有房间的永恒背景。
In the summer the courtyard is transformed into an open-air living room, while in the winter the presence of the green space remains as a constant background in all the rooms on the ground floor of the house.














Architects: Giovanni Mecozzi Architetti
Area : 270 m²
Year : 2022
Photographs :Simone Bossi
Manufacturers : Vibia, Art e Parquet, BG Serramenti, Ceramica, Ditre Italia, FLOS, Fischbacher, Midj, NIC, PENTA Light, Sofa / T—Pad, Sun room, Twils
Structure Engineers : Sermonesi & Partners
Lighting Designers : Tuttoluce Cesena
Construction Company : CMCF Faenza
Furniture : Idea Legno, Arka Arredamento Ravenna
Plants : Mondo Verde Cervia
Architectural Project : Giovanni Mecozzi Architetti
Design Team : Giovanni Mecozzi, Francesca Messeri, Filippo Dal Re, Filippo Minghetti, Rebecca Ghetti
Mep & Hvac Consultants : Daniele Nicolucci
Landscape Architect : Cecilia Verdini
Program / Use / Building Function : Residential
Window : Edil Più
Curtains : Selezione Arredamenti Ravenna
City : Rávena
Country : Italy