Anne Street Garden Villas是位于黄金海岸Southport的一系列7个社会住房住宅。该设计参考了我们的 "密度和多样性做得好 "公开创意竞赛作品的想法,以及利益相关者研讨会和当地社会住房设计审查。
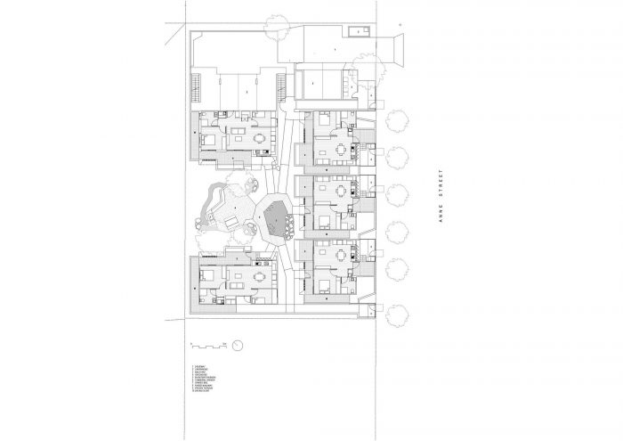
Anne Street Garden Villas is a series of 7 social housing dwellings in Southport on the Gold Coast. The design was informed by ideas from our Density and Diversity Done Well Open Idea Competition entry, as well as stakeholder workshops and local social housing design reviews.



Anne Street Garden Villas是由住房伙伴关系办公室、建筑资产服务和昆士兰政府建筑师办公室之间的协作伙伴关系提供的十个社会住房示范项目之一。这些示范项目将为昆士兰未来的社会住房提供新的设计指南。
Anne Street Garden Villas is one of ten social housing demonstration projects being delivered by a collaborative partnership between the Housing Partnerships Office, Building Asset Services, and the Office of the Queensland Government Architect. The demonstration projects will inform the new design guidelines for future social housing in Queensland.



为了创造宜居的、具有前瞻性的社会住房,我们被鼓励挑战社会住房的惯例,并采用我们认为可以产生巨大影响的小设计举措--特别是当涉及到让租户对他们的住所有所有权的时候。
To create liveable, forward-thinking social housing, we were encouraged to challenge conventions of social housing and employ small design moves that we thought could have a big impact – especially when it came to giving tenants a sense of ownership over their residence.

在高密度的社会住房开发项目中,租户并不总是觉得在他们自己的家里定居。有许多小的信号--比如临街的大型停车场--给发展项目带来了机构的感觉。这不仅使住户对自己的家有所有权和自豪感,而且还在楼群和附近的其他地方之间产生了隔阂。
In high-density social housing developments, tenants do not always feel settled in their own homes. There are so many small signals – like the large carpark fronting the street – that give the development an institutional feel. This not only makes it challenging for tenants to feel ownership and pride about their home, but it also creates a divide between the complex and the rest of the neighborhood.



我们对这个问题的初步感受通过一系列以人为本的设计研讨会得到了证实。在这些研讨会上,目前的社会住房住户透露了一个明确的愿望,那就是筑巢和成为社区的一部分,同时仍然拥有我们从传统独立住宅中得到的自主感。
Our initial feelings about this problem were confirmed via a series of human-centered design workshops. In these workshops, current social housing tenants revealed a clear desire for nesting and being part of a community, while still having the sense of autonomy we get from a traditional freestanding home.



考虑到这些发现,我们寻找方法使进入安妮街花园别墅的体验更类似于传统意义上的回家的体验。为了促进这一点,我们做出了4个关键的设计决定。
With these findings in mind, we looked for ways to make the experience of entering the Anne Street Garden Villas more akin to the experience of coming home in the traditional sense. To facilitate this, we made 4 key design decisions.

















Architects: AOG Architects
Area: 1220 m²
Year: 2021
Photographs: Christopher Frederick Jones
Landscape Architect: Lat 27
Town Planners: Bennett & Bennett
Builder: Nano Construction Pty Ltd
Hydraulic Engineers:H Design
Mechanical, Electrical And Fire Engineering:Ashburner Francis
Quantity Surveyor:Rider Levett Bucknall
Building Certification And Access Consultant:Knisco
City:Southport
Country:Australia