B73位于保加利亚索菲亚的中心区域之一。它以其创新和有影响力的外观在密集的城市环境中脱颖而出。该建筑本身实现了设计和功能之间的平衡,同时具有高端材料的使用和卓越的执行质量。
B73 is located in one of the central areas in Sofia, Bulgaria. It stands out in the dense urban context with its innovative and impactful look. The building itself achieves a balance between design and functionality that work simultaneously while having high-end material usage and exceptional quality in execution.



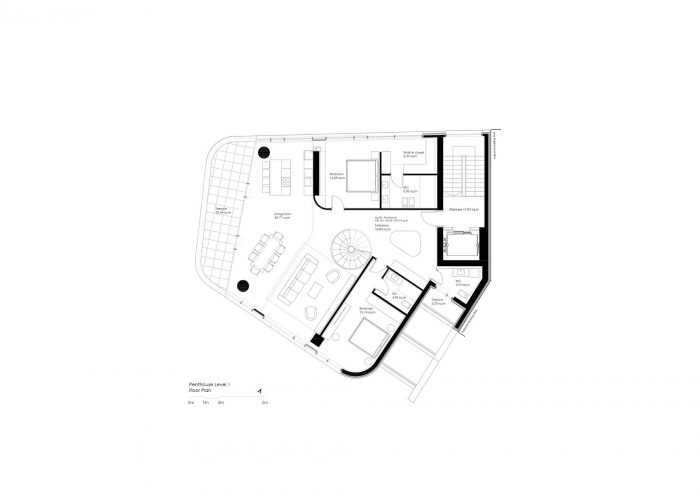
B73位于一个转角地段,面对林荫大道和一个内院,朝向维托沙山。地上有六层,地下一层是停车场,由高速汽车电梯提供服务。上面的每层住宅只包括一个280平方米的公寓。最佳的空间和光线流入是公寓布局设计的基础点。例如,顶层公寓的客厅高度为6.4米。
B73 is located at a corner lot facing a boulevard and an inner courtyard looking towards Vitosha Mountain. There are six levels above ground and one underground level which is a car park, served by a high-speed car lift. Each residential floor above comprises just a single 280 sqm apartment. Optimal spaces and light inflow are base points in the apartments’ layout design. For example, the top floor apartment has a living room with a height of 6,4 meters.




其余的都有最大化的高度,以实现宽敞的区域。一个由Bocci设计的灯光艺术装置44.14被安装在双层高的大厅内。它是专门为这个特殊的空间和建筑而设计的,同时也是东欧唯一的一个。底层区域用于家具设计陈列室。
All the rest have maximized height in order to achieve spacious areas. A light art installation 44.14 by Bocci is installed inside the double-height lobby. It is specially created for this particular space and building, as well as being the only one in Eastern Europe. The ground floor areas are purposed for furniture design showroom.


B73是保加利亚为数不多的使用固体表面材料和热成型技术来实现这种规模的复杂三维形状的建筑之一。建筑结构的施工过程以及它的使用寿命,都具有低碳足迹。外墙的概念是从一个相当简单的白色表面开始的。
B73 is one of the few buildings in Bulgaria, that uses solid surface material and thermoforming technology for achieving complex three-dimensional shapes for such scale. The construction process of the building fabric, as well as its longevity, has a low carbon footprint. The concept of the façade starts from something quite simple as a white surface.


然后,它有几个战略性的切口,并沿着Z轴平滑地伸展。在主楼板和楼梯台阶之间有一个接触的时刻,在那里发生了断裂,以一种自然的方式创造了一个燕子的形状。最终的结果是一个复杂的形式被转化为建筑中最独特的元素。
Then it has several strategically placed cuts and is smoothly stretched along the Z-axis. There is a moment of contact between the main floor slab and the stair’s landing where discontinuation occurs that creates in a natural way the shape of a swallow bird. A final result is a complex form that is being transformed into the most distinctive element of the building.


























Architects: STARH
Area: 2100 m²
Year: 2021
Photographs: Dian Stanchev
Manufacturers: Reynaers Aluminium, Bocci, DuPont, Guardian Glass, Knauf, KONE, Rigips Saint-Gobain, Semmelrock
Architectural design: Svetoslav Stanislavov, Radostina Petkova,Peter Nikolov
Architectural Design | Site Supervision:Hristo Dushev
Exterior Visualizations:Geogri Pasev
Interior Visualizations :Vladimir Kavaev
City:Sofia
Country:Bulgaria