在维也纳的一块空地上,50套商务公寓和6间办公室被建在一座新的大楼里。第一阶段的重点是为必要的重新命名进行支持工作。
Fifty business apartments and six offices were constructed in a new building on an empty lot in Vienna. The first phase focused on supporting work for the necessary rededication.




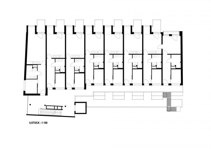
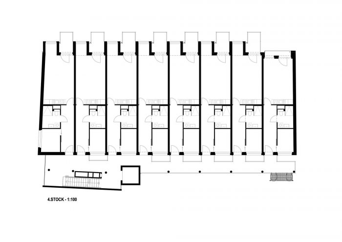
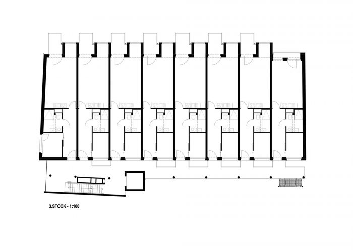
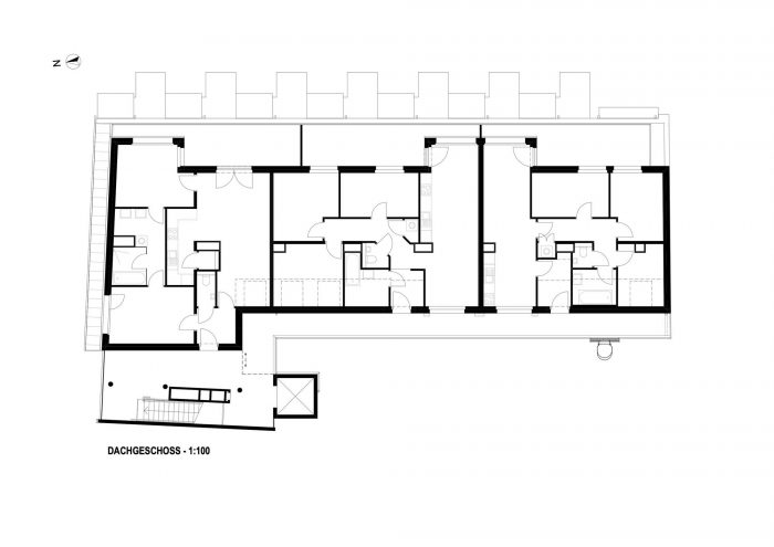
在接下来的阶段,通过将所有的公寓朝向东南,实现了最佳的光线条件。噪声污染也通过同样的措施得到减少,因为朝向更安静的小街的方向起到了自然消音的作用。
In further phases, optimal light conditions were achieved by orienting all of the apartments facing South-East. Noise pollution was reduced by the same measure since the orientation towards a more quiet side street acted as natural sound abatement.


该建筑的立面由传统的维也纳Schrebergardens(小型、亲密的花园社区)组成,在一个以商业用途为主的社区中表达了强烈的城市发展特征。
The building's facade is comprised of stacked traditional Viennese Schrebergardens (small, intimate garden communities), expressing a strong character in terms of urban development in a neighborhood characterized by predominantly commercial use.























Architects: BFA x KLK
Area: 3900 m²
Year: 2021
Photographs: David Schreyer
Lead Architect: Heinz Lutter
Construction Documents:Jürgen DePaul
Design Development:Xaver Kolleger
Schematic Design:Heinz Lutter, Christian Knapp, Jonathan Lutter, Fabian Lutter
Project Lead:Christian Knapp
Fire Protection:IMS Brandschutz
City:Viena
Country:Austria