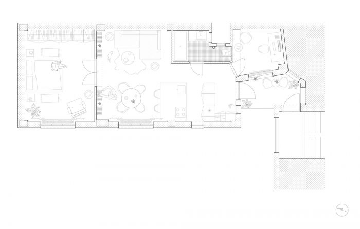
H公寓位于梅德纳大街上的一个40年代的建筑区。这套三室公寓缺乏高高的天花板和轴线围墙,而这正是捷克斯洛伐克第一共和国时期(1918-1938)所建的周围公寓的主要特征。尽管如此,由于其合理的布局,该公寓仍然令人想起这些空间原则。原有走廊的中轴线横跨公寓,从入口处穿过主要的生活空间,并继续通过双翼玻璃门到达主卧室。
The apartment H is located along Medena Street in a building block from the ‘40s. The three-room apartment lacks the high ceilings and axial enfilade which are a staple of the surrounding apartments built during the time of The First Czechoslovak Republic (1918 – 1938). Despite this, with its rational disposition, the apartment remains evocative of these spatial principles. The central axis of the original corridor spans the apartment from the entrance through the main living space, and continues through the double-wing glazed door to the master bedroom.



因此,生活空间的概念保持了它的老城特色,尽管它的面积较小,并且远离街道,面向公共庭院。中央生活区被以前的女仆室扩大,现在为厨房腾出了空间。
The living space concept therefore kept its Old Town character, even despite its smaller size and orientation away from the street and into the common courtyard. The central living area was expanded by the former maid room which now made space for the kitchen.

一个天花板高的衣柜在主入口和这个生活空间之间形成了一个分隔。从入口处经过,沿着公寓的中轴线建立了一个强大的视觉联系。厨房的纯红色体量从视觉上平衡了公寓的布局。
A ceiling-tall wardrobe creates a separation between the main entrance and this living space. Passing from the entranceway, a strong visual connection is established along the apartment’s central axis. The solid red-coloured volume of the kitchen optically balances out the apartment’s disposition.

同时,它参考了在重建的布局中被抹去的隔板和门。厨房的柜台悬空到客厅区域。以前的厨房成为一个独立的书房。
At the same time it references the partitions and doors that were erased in the reconstructed layout. The kitchen counter overhangs into the living room zone. The former kitchen became a separate study room.

室内以白色为主,与入口处的淡色水磨石地板相一致。调色板的概念建立在白色和明亮的原色之间的对比上。在厨房和浴室的白色瓷砖背景上,红色和蓝色元素突然出现,作为色彩的点缀。这一室内原则在公寓的其他地方也得到了重复。
The interior is predominatly white, in line with the pale terrazzo floor of the entranceway. The colour palette concept then rests on the contrast between the white and a play with bright primary colours. Red and blue elements pop up as colour accent in the kitchen and in the bathroom on the white tile background. This interior principle is repeated in the rest of the apartment.











Architects: Grau Architects
Area: 20 m²
Year: 2019
Photographs: Nora and Jakub Caprnka
Manufacturers: AutoDesk, Ruukki, TON, Vertigo Bird, Adobe, Trimble
Design Team:Andrej Olah, Filip Marcak, Matej Kurajda, Jana Filipkova
City:Bratislava
Country:Slovakia