在圣保罗市中心,这间138平方米的公寓被翻新,前提是--尊重建筑的历史和它所在的社区,同时也让这个背景符合它的新居民的当前现实。
At downtown São Paulo this 138 m² apartment was renovated with the following premise - to honor the building's history and the neighborhood where it sits while also having this context fit the current reality of it’s new resident.



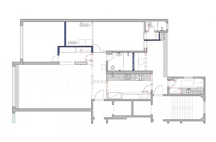
尽管没有得到很好的维护,这间50年代的公寓仍有很大的潜力。在原来的平面图中,卧室很大,但客厅和厨房很小,而且是隔开的,只有一个大浴室,但洗衣区却很大。为了满足客户的需求,客厅、厨房和洗衣区被整合成一个大的连接区域。
In spite of being poorly maintained, this 1950’s apartment had a lot of potential. In the original floorplan, the bedrooms were big, but the living room and kitchen were small and compartmentalized, there was only one large bathroom, and yet the laundry area was enormous. To meet the client's needs, living room, kitchen, and laundry area were integrated to become one large connected area.

而为了有一个宽敞的规划,但又能创造一个温馨的氛围,我们设计并定制了一个钢制玻璃隔断和一个多功能的木板墙。后者可作为衣柜、办公空间和主卧室的入口。
And in order to have a spacious plan, but yet create a welcoming atmosphere, a steel glass partition and a multifunctional wood panel wall were designed and custom-built. The latter serves as a closet, an office space and the entrance to the master bedroom.

梁和柱子被剥去了原来的油漆,显示出下面的混凝土。放在餐厅和客厅之间的两个植物架子是定制的,以便重新利用公寓原来的壁橱里的实木,从而避免不必要的处理。
Beams and columns were peeled off the original paint, showcasing the concrete beneath. Placed between the dining room and the living room, two plant shelves were custom-made in order to re-use the solid wood found inside the original closets of the apartment and thus avoid unnecessary disposal.

















Architects: Mana arquitetura
Area: 138 m²
Year: 2020
Photographs: Carolina Lacaz
Manufacturers: AutoDesk, FRANKE, REKA, ALserralheria, Brastemp, By Kamy, Coral, Deca, Granidomus, Marcenaria gloriosa, Metal ferco, Temperal vidros, Tramontina, Verniz, Zagaia, foccus
Lead Architects: Ana Carolina de Siqueira, Carla Campos
Structure Civil Engineering:w2b engenharia
Landscape Design Firm:flor e forma
Services Collaborators:REKA
City:Vila Buarque
Country:Brazil