通过弯曲的楼板,居民之间的互动。 这是一个有3个单位和一个停车场的公寓楼。在covid-19之后,我们感受到与他人共享空间的焦虑。 即使在这种大流行的情况下,对于互不相识的居民来说,住在同一个公寓里有什么价值?
The interaction between the residents through the bent floor slabs. This is an apartment complex that has 3 flats and a parking lot. After covid-19, we feel the anxiety of sharing space with others. Even in this pandemic situation, what is the value for residents, who don’t know each other, to live in the same apartment?



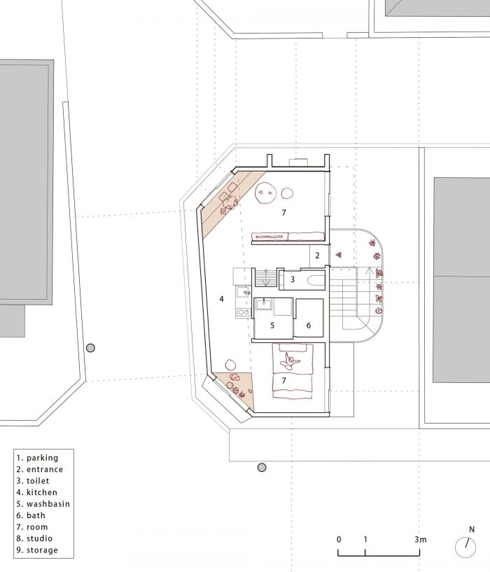
该公寓由1个地下室和2层楼组成,结构紧凑,在84.51平方米的场地上为停车场留出空间。地下室和底层的低层公寓的光线和风力条件较差。因此,我们试图通过将天花板弯曲成一定角度,并在弯曲的天花板旁边规划一个大的高窗来减少不平等。
The apartment consists of 1 basement and 2 stories and is compact to leave space for the car parking on the 84.51m2 site. The lower flats on the basement and ground floor have the worse light and wind conditions. Therefore, it is tried to reduce the inequalities by bending the ceiling to a certain angle and planning a large high window beside the bent ceiling.



地下室是业主的工作室。它有一个弯曲的天花板和一个沿西街的宽而高的窗户。这创造了一个舒适的工作室,有大量来自西方的间接阳光。而东边的天花板也是弯曲的,形成了地下室的入口。一楼和二楼应该是公寓单元,这些单元的窗户位置是考虑到居民的隐私而决定的。天花板有助于窗户的位置和居民的隐私,它在底层的西北角和西南角是弯曲的,角落里高高的窗户面向外面的每个交叉点。特别是西南角的窗户,空间变窄,伸出来,成为一个凸窗,扩大了室内空间。
The basement is the studio for the owner. It has a bend in the ceiling and a wide and tall high window along the western street. This creates a comfortable studio with a lot of indirect sunlight from the west. And the ceiling in the east is also bent to create the entrance of the basement. The ground and first floors are supposed to be apartment units and the positions of the windows in these units are decided by considering the privacy of the residents. The ceiling, which contributes to the positions of the windows and the privacy of the residents, is bent in the northwest and southwest corners of the ground floor and the tall high window in the corners faces each crossing point outside. Especially the window in the southwest corner, where the space narrows, sticks out, and becomes a bay window to expand the interior space.



上述住宅楼层的平面设计是以弯曲的楼板的存在为前提的。这些楼板的存在,在上述楼层创造了独特的空间。在一楼长长的倾斜楼板上,放置了一个台面,它成为一个长长的多用途固定家具。它是一排桌子,一个洗脸的地方,一个厨房,一个桌子和一个架子。然而,在一楼,西北角的弯曲楼板成了沙发凳的背面,西南角的弯曲楼板则成了一个大窗台。住户们的生活基本都在拐角处的窗户周围。更重要的是,地下室入口处弯曲的天花板使得外面的楼梯角度发生了变化。而这在上部形成了具有低坡度的梯田式台阶。
The floor plans of the above residential floors were designed subject to the existence of the bent floor slabs. The existence of those floor slabs creates unique spaces on the above floor. On the long sloped floor slab on the ground floor, there has been put a countertop and it has become a long multi-use fixed furniture piece. It is a row of a table, a wash place, a kitchen, a desk, and a shelf. However, on the first floor, the bent floor slab in the northwest corner has become the back of the sofa bench and in the southwest corner, the bent floor slab has become a large windowsill. The life of the residents is mostly around the corner windows. What is more, the bent ceiling of the entrance of the basement makes a difference in the angle of the outside stairs. And that creates terraced steps with a low slope in the upper part.


下层公寓的弯曲天花板板出现在上面的楼层,影响了那里的居民的生活方式。我们相信,通过弯曲的楼板,住户之间的互动使这个公寓的生活变得丰富,即使在covid-19之后。
The bend ceiling slab of the lower flat appears on the above floor and affects the way to live for the resident there. We believe the interaction between the residents through the bent floor slabs makes life in this apartment rich even after covid-19.










Architects: Tsukagoshi Miyashita Sekkei
Area : 121 m²
Year : 2021
Photographs :Jumpei Suzuki
Manufacturers : JFK, SHIKOKU CHEMICALS CORPORATION
Lead Architects : Tomoyuki Tsukagoshi, Jumpei Miyashita
Structural Design : Ohno JAPAN
Equipment Design : Kohei YAMADA, Shigeru BANDO
Country : Japan