当木材塑造了巴黎。一个简单但基本的问题指导着托尔比亚克的概念:什么是住房?住房应该把个人提升到世界居民的地位,安装在家里和城市里,连接到昨天和明天,让我们思考近处和远处的其他地方,结构我们的观点,让我们触摸矿物和木质,光和暗,是爱抚和粗糙,清晰和模糊,像酒店一样欢迎,像住所一样简单,让我们同时变得大和小。
When wood shapes Paris. A simple but essential question guides the conception of Tolbiac: what is housing? Housing should elevate the individual to the rank of an inhabitant of the world, install home and in the city, connect to yesterday and tomorrow, let us contemplate the near and distant elsewhere, structure our views, let us touch the mineral and the woody, the light and the dark, be caressing and rough, clear and blurred, welcoming like a hotel and simple like a shelter, make us big and small at the same time.




一个好的住房建筑会知道如何平息大都市的躁动而不使其熄灭,如何使私人沙龙和公共场所,如何既是小屋又是宫殿,如何培养美好的生活而让杂草丛生,如何看护居民的睡眠而让路人做梦。在不忽视建筑的功能层面的情况下,托尔比亚克项目试图通过探索材料的表现力、公共空间的潜力、景观的开放和类型的安排、与地方和历史的关系,使住房走向多种生活形式。
A good housing building would know how to calm the metropolitan agitation without extinguishing it, how to make a private salon and a public place, how to be both a hut and a palace, how to cultivate the good life and let the weeds grow, how to watch over the sleep of the inhabitant and make the passer-by dream. Without ignoring the functional dimensions of architecture, the Tolbiac project attempts to take housing towards the multiple forms of living, by exploring the expressiveness of materials, the potential of common spaces, the openings of the landscape and the arrangement of typologies, the relationship to the place and its history.

长期以来,Tolbiac街和Chevaleret街的交叉口宣布了巴黎空间景观的变化,从一个密集的郊区到一个铁路的宇宙,一个由金属桥跨越的工业河流。塞纳河畔高尚区的发展抹去了艺术作品,并将铁路平原埋在了人工地面下,有可能落入一个通用的城市形式,难以表达该地的特性。在老城区和城市形成的十字路口,Etoffes de Tolbiac项目希望成为其场地的一部分,而不是将过去理想化,唤起一段特殊的巴黎历史,以便给当时的住房运作一个特定的身份,向城市开放,同时过滤其最有侵略性的滋扰和刺激。
For a long time, the intersection of Tolbiac street and Chevaleret street announced a change of landscape in the Parisian space, the passage from a dense suburb to a universe of railroads, an industrial river spanned by a metal bridge. The development of the Seine Rive Gauche district has erased the work of art and buried the railway plain under an artificial ground, at the risk of falling into a generic form of city that hardly expresses the specificities of the place. At the crossroads of the old town and the city in formation, the Etoffes de Tolbiac project wants to be part of its site without idealizing the past, to evoke a particular Parisian history in order to give back a specific identity to a housing operation of its time, open to the city while filtering its most invasive nuisances and stimuli.


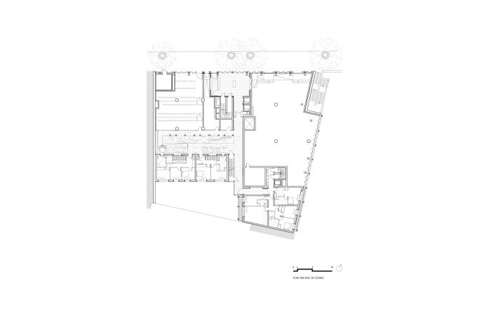
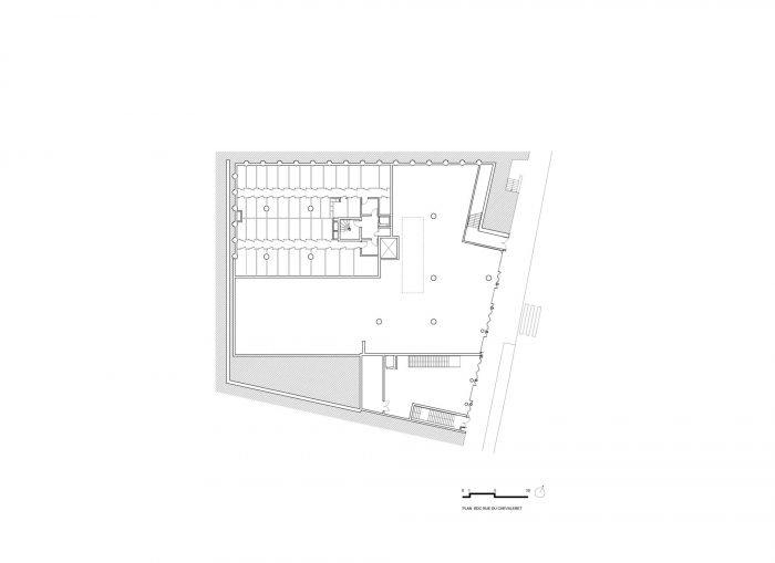
城市外墙。该场地占据了一个双重的战略位置,位于两条街道的拐角处,被近7米的高度差分开。历史上连接两条街道的楼梯与作业现场接壤,由两块地皮连接而成。从20世纪20年代到60年代建造的手工艺作坊和仓库被一个拥有3000平方米的商业空间和5000平方米的住房的混合经营所取代。商业面在两条街的首层之间的分布使活动的影响最小化,这给从Chevaleret街的首层展开的住房提供了一个基础。88套公寓被划分在四个街区,其中三个由公共空间连接,一个独立街区位于底层。阳台的网格将项目的三个部分统一起来,上升到一楼+6和一楼+8。它重新构成了巴黎街道的连续结构。
Urban facade. The site occupies a doubly strategic position, at the corner of two streets separated by a difference in the level of nearly seven meters. The staircase historically linking the two streets borders the site of the operation, formed by the joining of two parcels. Craft workshops and warehouses built from the 1920s to the 1960s are replaced by a mixed operation with 3000 m2 of commercial space and 5000 m2 of housing. The distribution of the commercial surfaces between the first floors of the two streets minimizes the impact of the activity, which gives a base to the housing that spreads out from the first floor on the rue du Chevaleret. The 88 apartments are divided between four blocks, three of which are joined by common spaces and an independent block on the ground floor. The grid of balconies unifies the project's three parts, rising to the first floor + 6 and the first floor + 8. It reconstitutes the continuous fabric of the Parisian street.

一个木材和混凝土的混合项目,木材和混凝土的二重性指导着项目的设计。混凝土的机械性能、抗火能力和消音能力导致其在结构中的使用。落叶松木被用作所有表面的覆层,而木架墙的结构和外墙的垂直立柱则由花旗松制成。可见的木质元素通过高压锅处理获得了深色,让人联想到巴黎工业的老仓库的外墙。材料的触觉质量和视觉质量得到了强调。实木比胶合木更适合用于外墙的柱子,目的是提高材料的质量,发展建筑方面,让人想起这种元素的自然来源,打破通常用于木结构的胶合产品。胶合层压元件偶尔被用于创建承载公共空间的弧形横梁。金属被用于栏杆,采用枪色的表面处理,使其融入整体。
A mixed wood and concrete project, The duality of wood and concrete guides the design of the project. The mechanical qualities of concrete, its resistance to fire, and its acoustic attenuation capabilities led to its use in the structure. Larch wood is used as cladding on all surfaces, while the structures of the wood-frame walls and the vertical uprights of the facade are made of Douglas fir. The visible wood elements acquire a dark color by autoclave treatment, evoking the facades of the old warehouses of industrial Paris. The tactile qualities of the material as well as its visual qualities are highlighted. Solid wood was preferred to glued laminated wood for the posts of the facade, with the intention of enhancing the qualities of the material, developing an architectural aspect reminiscent of the natural origin of this element, breaking with the products reconstituted by gluing usually used in wood construction. Glued laminated elements are used very occasionally for the creation of curved beams carrying common spaces. Metal is used for the railings, with a gunmetal finish that integrates it into the whole.

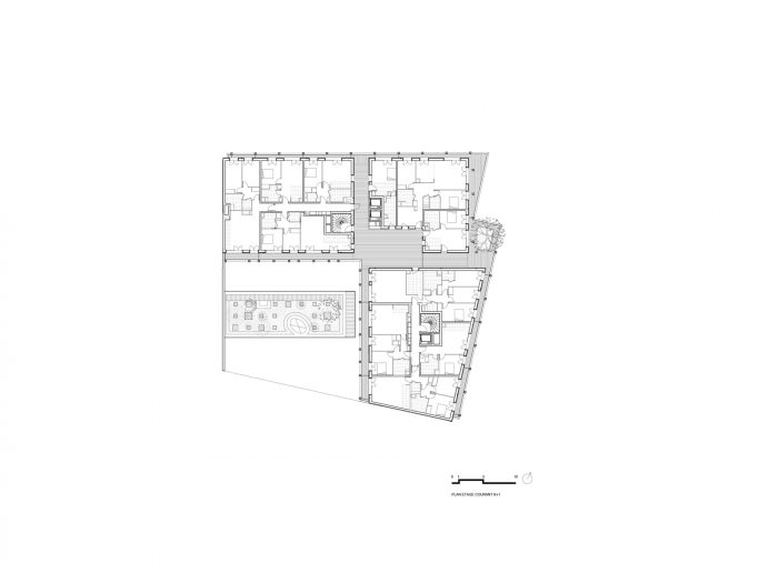
转移和差距。建筑和施工之间的区别往往体现在细节上。一个微妙的游戏规范了阳台的垂直柱子的位置。它们并不像人们第一眼看到的那样遵循规则的模式,而是在每一层的横向和纵向上偏移10厘米,逐渐向街道空间靠拢。这个装置使外墙变得生动,并随着楼层的增加而增加阳台的面积。这个网格将街道一侧的不同街区连接起来,吸收了每个街区之间的空隙。在庭院一侧,间隙成为公共空间,既是露台,也是广场,用跳板在视觉上连接不同的楼层,并增加了独特的元素,如 “巢穴",以及居民共享的悬挂式休息室。迷宫式的流通,让人重温了巴黎工业郊区后院的欢乐无序和惊喜。两年的大流行病有助于衡量这些向所有居民开放的空间的价值,它提供了一个家庭的替代方案,并允许所有居民享受城市的景色。向所有人开放的屋顶花园以240°的角度打开了堆积了几十年的巴黎演变和天空的全景图。
Shift and gaps. The distinction between architecture and construction is often seen in the details. A subtle play regulates the placement of the vertical posts of the balconies. They do not follow a regular pattern, as one might think at first glance, but are offset laterally and vertically by ten centimeters at each level, gradually corbelling onto the street space. The device animates the façade and increases the surface of the balconies with the increase of the floors. This grid that unites the different blocks on the street side absorbs the voids left between each block. On the courtyard side, the interstices become common spaces, both terraces, and plazas, with hoppers visually linking the different levels and the addition of unique elements, such as "nests", and hanging lounges shared by the residents. The maze of circulation revisits the joyful disorder and surprises of the backyards of the industrial suburbs of Paris. Two years of pandemics help to measure the value of these spaces open to all residents, offering an alternative to home, and allowing all residents to enjoy the views of the city. The roof garden open to all opens at 240° on a panorama piling up several decades of the evolution of Paris and on the sky.





















Architects: AAVP Architecture
Area : 8504 m²
Year : 2022
Photographs :Luc Boegly
Team : DBG paysage, Charpente Concept wood design office, BMF economist, ALTIA acoustics, Camping Design signage, IDEEL environnement and Exe Elfimm fluid design office
Subcontractors : UTB (Exoskeleton and wooden balconies), POULINGUE (Wooden Frame Wall + Wooden Cladding), MERROTO MILANI (Corrugated glass facade)
General Contractor : SICRA Île-de-France
City : Paris
Country : France