AQUA LUNA餐厅目前位于Andrejsala。该移动建筑是一个轻型木材结构,因此它可以很容易地被重新安置。这座简单的建筑的特点是立面装饰--白色的斜板和精细分割的、未经处理的正面木段。
Restaurant AQUA LUNA is currently located in Andrejsala. The mobile building is a light timber structure and as such it can be easily relocated. The simple formed building is characterised by the façade finish – white diagonal planking and finely split, untreated wooden segments in the frontal façade.



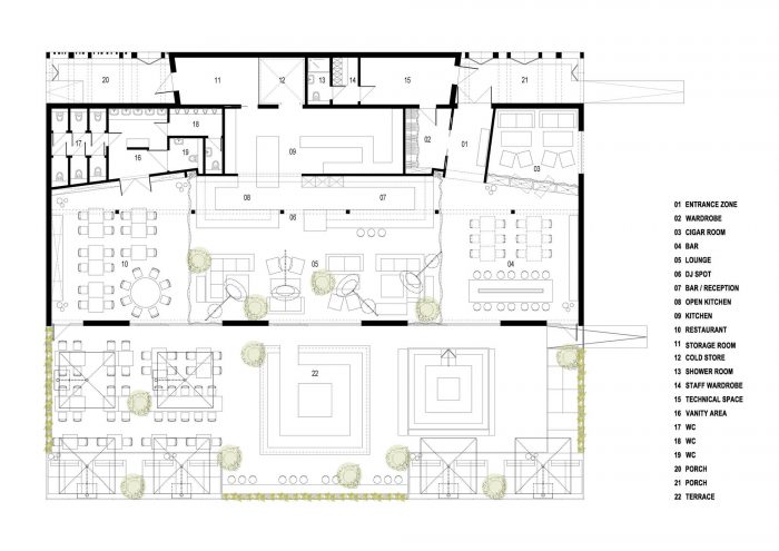
这里有3个主要区域--酒吧、休息室和餐厅。浅色和简单的内部装饰作为大型设计元素的背景--金属盆中的树木、柳条灯、高大的实木桌子和带金属腿的长凳、巨大的皮质转角沙发、DJ家具、长长的酒吧柜台和它后面的架子。大壁炉、隔断窗帘和架子上的餐厅配件确保了温暖舒适的氛围,而细节方面,如黄铜框架的镜子、金属和玻璃灯、铸铁散热器、架子上的梯子和玻璃吧台都散发着时尚和优雅。大部分的家具和设计元素都是在拉脱维亚制造的。
There are 3 main zones – bar, lounge and restaurant. The light and simple interior finishes serve as a background for large scale design elements – trees in metal pots, wickerwork lamps, tall solid wood tables and benches with metal legs, huge leather corner sofas, DJ furniture, long bar counter and shelves behind it. A large fireplace, dividing curtains and restaurant accessories in the shelves ensure warm and cosy atmosphere while details like the mirrors with brass frames, metal and glass lamps, cast iron radiators, shelf ladders, and a glass bar emanate style and elegance. Most of the furniture and design elements are made in Latvia.



阳台的设计与室内的风格相同,以 "苹果树花园 "为概念关键词。露台的主要元素是由木板制成的照明酒吧柜台,中间有一个放酒的金属金字塔。外墙的架子被用来种植绿墙,增加了独特的气氛。
The terrace design is done in the same style as the interior, taking “apple tree garden” as the keyword of the concept. The main element of the terrace is the illuminated bar counter made of timber planks with a metal pyramid for bottles in the centre. Shelves in the façade are used for growing green walls that augment the unique atmosphere.



























Architects: Open AD
Area: 600 m²
Year: 2013
Photographs: Maris Lapins
Manufacturers: MDT-tex, Emu, House Doctor, Ikea, Aldis Buss, Bensi Glass, Dunoyglass, MEDAGAS, Origlia, Pinumu Pasaule, RABATA, Theca
Lead Architects: Zane Tetere- Sulce, Ieva Makena, Paulina Kraszewska
Collaborators:Ieva Makena, Paulina Kraszewska
City:Riga
Country:Latvia