位于一个小渔村的主要广场,Aquiles生态酒店旨在融入周围的建筑和社会结构中。
Located in the main square of a small fishermen village, Aquiles Eco Hotel aims to be integrated in the architecture and in the social structure of the surroundings.


建筑是简单的、原始的和灵活的,它与其他房屋和周围的小建筑交谈。
The architecture is simple, raw and flexible, and it talks with the other houses and the small buildings all around.

该结构由13个木制集装箱大小的房间组成,设置在贝通砖结构中,并涂有石灰油灰。
The structure is composed by 13 wooden container sized rooms, set in a beton brut structure and painted with lime putty.

热带干燥的气候和强烈的阿利塞姆风使圣维森特岛的可利用材料非常脆弱。在岛上只能找到石头和沙子,但它们仍然受到当地法律的保护,而且在短期内不能再生。
The tropical dry climate and the strong Aliseum winds make the island of Sao Vicente very fragile concerning its avaliable material. Only stones and sand can be found on the island, but still they are protected by local laws and not renewable in the short term.

出于这个原因,我们选择了经过认证的木材来建造房间,选择了可再生性和可持续性,同时也选择了一个易于组装和拆卸的解决方案。由于旅游需求的不可预测性,我们选择了一个灵活的结构,便于最终移动到另一个地方,或拆除并在另一个比赛或国家使用。
For this reason we chose the certified wood to build the rooms, choosing renewability and sustainability, and also choosing a solution which is easy to assemble and disassemble. Due to the very unpredictable turistic demands, we chose a flexible structure, easy to eventually move in another place, or to dismantle and use in another contest or country.

该酒店是一个原型。每一个解决方案都是在全球范围内思考,在当地行动。
淋浴的水被回收并重新用于厕所的冲洗。在不久的将来,屋顶上将安装光伏板。
The hotel is a prototype. Every solution is found thinking global and acting local.
The water in the showers is recycled and reused in the toilet flush. In the near future photovoltaic panels will be set on the rooftop.

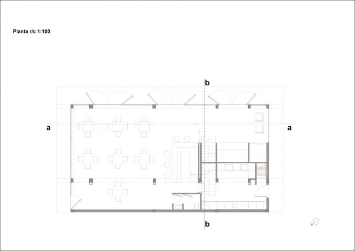
在一楼,有接待处、厨房和餐厅休息室。混凝土地板和用回收的木材(用于混凝土)制作的简单家具是这些开放空间的主要装饰。
一楼和二楼有相同的布局。6个集装箱大小的房间和一个仓库。
In the ground floor there is the reception, the kitchen and the restaurant lounge. A Concrete floor, and simple furniture made with recycled wood (used for the concrete) are the main decoration of those open spaces.
The first floor and the second floor have quite the same disposition: 6 container sized rooms and a storage.

最后一层有一个海景套房,清洁室和一个巨大的开放式阳台。
这些房间有一个基本的配置,以适应简单的乡村生活。它们由一个简单的门户 "骨架 "组成,由8x8的木条和一个由木板组装而成的 "皮肤 "组成。
The last floor hosts a sea viewed suite, the cleaning room and a huge open veranda.
The rooms have a basic configuration to fit with the simple village living. They consist in a simple portal “skeleton” made by 8x8 wooden bars, and a “skin” of assembled wooden panels.

由于交叉通风,不需要空调。没有电视,因为我们的目的是鼓励人们发现村庄和露天体验,而不是呆在房间里。另一方面,我们在公共空间提供Wi-Fi连接,以便与世界联系。低科技的装置和少量的视觉信息让游客体验自己和周围的环境。
建筑内的艺术作品是由艺术家-建筑师莫雷诺-卡斯特拉诺制作的。
No need of air conditioning due to the crossed ventilation. No television, as we aim to encourage the discovery of the village and the open-air experiences instead of staying in the rooms. On the other side we offer wi-fi connection in the common spaces to be linked with the world. Low tech installation and few visual information let the visitors experience themselves and the surrounding environment.
The artworks inside the building are made by the artist-architect Moreno Castellano.























Architects: Ramos Castellano Arquitectos
Area : 650 m²
Year : 2014
Photographs :Ricardo Nascimento
Construction Company : ramoscastellano arquitectos
Carpenters : Tony e Aguinaldo
Engineer : Eoceno Ramos
Architects In Charge : Moreno Castellano, Eloisa Ramos
Collaborators : Camille Cellier, Aderito Evora
City : São Pedro
Country : Cape Verde