一个与其类型相反的 "矛盾的设计现象"。ARA工作室办公室位于泗水市南部一个密集的店面建筑群中,其现有建筑的深度只有2.3 x 12米,这在泗水的店面建筑中是一个不寻常的尺寸。它位于离建筑群入口几个街区的地方,游客和工人必须进入一条笔直狭窄的小巷,在两排3层楼的店面之间,建筑物之间几乎没有退路。此外,服务设备和建筑配件,如室外空调、标志牌和突出于外墙的雨篷,成为这些店面中的一种陈旧的设计类型,以获得最大的室内空间,而另一方面又干扰了公共空间。
A “contradicting design phenomenon” against its typology. Located in a dense shophouse complex, southern part of Surabaya City, ARA Studio Office is only 2.3 x 12 meters in depth as its existing building which is an unusual size for a shophouse in Surabaya. It is situated a few blocks from the complex entrance, where visitors and workers have to enter a straight narrow alley in between two rows of 3 story – shophouses with few setbacks between buildings. Additionally, service equipment and building accessories such as outdoor air conditionings, signages and canopies protruding from their facade becomes a stereotype design typology amongst these shophouses to gain maximum indoor space while on the other hand interfering public space.




为了避免公共干扰,ARA工作室办公室的目标是消失,这与正在发生的其他商店的外墙延伸和被颜色覆盖的现象形成对比,通过使用黑色质地的涂料成为静音,并在建筑的外墙上创造一个后退,为被植物掩盖的服务项目提供更多空间。响应场地的背景,这个设计作为一个暂停,在两边和相邻的店面的外墙之间。
In order to avoid public interference, ARA Studio Office aims to disappear which is in contrast to the occurring phenomenon where other shophouse facade extends and are covered with colors, by using black texture paint to become mute and creating a setback on the building’s façade to provide more space for service items camouflaged by vegetation. Responding to the site’s context, this design acts as a pause in between both and opposite sides of the neighboring shophouse facades.


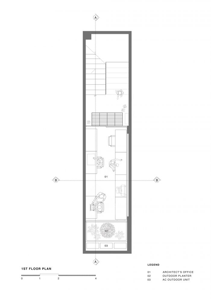
ARA工作室办公室是为了满足建筑师工作室的需求,所以尽管有水平和垂直的限制,但实现足够的空间来满足其功能需求是很重要的。它的主要方案是为他们的员工创造活动空间和流通空间,而不影响他们的工作空间。因此,以前的典型平面图被转化为不规则的分区,以适应其作为一个工作室的需要。
ARA Studio Office is meant to accommodate the needs of an architect studio so it is important to achieve enough space that responds to its functional needs despite its horizontal and vertical constraints. Its main program is to create activity pockets for their staffs and space for circulation without interfering with their working space. Therefore, the previous typical floor plan is transformed into an irregular zoning to fit its needs as a studio.


入口从一楼开始,其空间与小巷的轴线垂直分割,在左侧创造了一个流线型的流通空间,右侧则是工作空间。到了二楼和三楼,循环被其背面的连续楼梯和正面的活动口袋所垂直定义,并面向邻近的商店房屋。尽管空间有限,但金属格栅的空隙被放置在楼梯循环和活动口袋之间,以实现各楼层之间的互动连接。
The entrance starts from the ground floor where its space is divided perpendicular from the alley’s axis to create a streamlined circulation on the left side and working space on the right side. Moving on to the second and third floor, the circulation is defined vertically by its continuous stairs at the backside and activity pockets located at the frontside facing the neighboring shophouse. Regardless of its limited space, voids with metal grating are placed as a transition between stair circulation and activity pockets to achieve interactive connection between each floor.

随着环境需要成为一个舒适的工作空间,交叉通风成为提供足够空气流动的关键点。它的设计是为了利用现有的情况,即位于店屋小巷的一侧,微气流可以通过办公大楼,增加其生态性能。这种反应是通过给建筑的正面提供大的开口,用绿化层作为从办公室到邻近商铺的有框架的过渡性景观来实现的。办公室的背面也有开口,有足够宽的开放空间,没有任何建筑障碍物,所以风可以通过,为整个建筑提供交叉通风。
Along with its environmental needs to be a comfortable working space, cross ventilation becomes the key point to provide enough air flow. It is designed to take advantage of the existing situation which is located on one side of the shophouse alley where micro airflow can pass through the office building increasing its ecological performance. This response is attempted by giving large openings to the front of the building with layer of greeneries as a framed transitional view from the office to the neighboring shophouse. As well as openings on the backside of the office which has an open space area that is wide enough without any building obstructions, so that wind can pass through and provide cross ventilation throughout the building.














Architects: ARA Studio
Area : 82 m²
Year : 2020
Photographs :Tristan Salim, Hermawan Dasmanto, Veronica Paskalia, Hasina Zikriya H.
Manufacturers : Vellum
Lead Architect : Hermawan Dasmanto
Team Member : Moses Matthew Hendrawan
General Contractor : Trijaya Makmur Kontraktor
City : Kecamatan Dukuhpakis
Country : Indonesia