Parti对位于格洛斯特郡的一系列被列为二级保护的中世纪坡屋顶房屋进行了敏感的改造,成为ARC Painswick--这是该公司为以建筑为重点的酒店业务ARC进行的一系列历史房产翻新的最新成果。
Parti have sensitively transformed a series of Grade II Listed medieval gabled houses in Gloucestershire to become ARC Painswick – the latest in a series of refurbishments of historic properties by the practice for architecturally-focused hospitality business ARC.



Parti和ARC是企业家、设计师和两家企业的共同创始人。这种既是建筑师又是客户的独特伙伴关系意味着预算和交付与建筑设计和建筑的寿命同样重要。
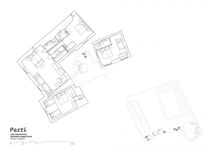
核心的设计策略是对建筑进行大幅度的重新排序,以创造大型的聚会空间,并恢复两个庭院,使每个空间至少有两个正面接受阳光照射。这座房子曾经是一个破旧的民宿--一个由房间组成的兔子窝,掩盖了历史结构,几乎没有玻璃和自然光--但ARC Painswick给人的感觉是灵活、开放和对美丽的中世纪建筑的赞美。
Parti and ARC are entrepreneurs, designers, and co-founders of both businesses. This unique partnership as both architect and client means that budget and delivery are just as crucial as the architectural design and longevity of the building.
The core design strategy was to dramatically reorder the building to create large gathering spaces and reinstate two courtyards, allowing at least two frontages of every space to receive sunlight. The house had been a rundown BnB - a rabbit warren of rooms which obscured the historic fabric, with little glazing and natural light – but ARC Painswick feels flexible, open, and celebratory of the beautiful medieval building.


低废品思想是修复工作的核心。任何状况良好的织物,甚至是非历史性的,都被保留下来,并融入Parti的设计语言中。旧的不只是换成新的,而是在整个过程中使用了修补的方法。墙面的纹理保持裸露和变化,门框仍然是不同的,错位的--作为特征,而不是缺陷。在可能的情况下,现有的家具被翻新,而其他的家具则是购买二手的并进行修复。一个6米长的展示性餐桌是由废弃的木板制成的,其腿和椅子的设计与它的独特外观相匹配。这防止了储存的碳的进一步释放。在没有任何东西可以保存的地方,考虑到碳因素的轻触确保了在整个过程中有意避免使用钢。
A low-waste mindset was at the heart of the restoration. Any fabric in good condition, even non- historic, was preserved and integrated into Parti’s design language. Old was not just exchanged for new, but patch repairs were used throughout. Wall textures were left bare and varied, and doorcases remain all different and misaligned – as features, not faults. Wherever possible, existing furniture was refurbished, and other pieces were purchased second-hand and restored. A 6m-long showpiece dining tabletop was made from discarded wood planks, and its legs and chairs were designed to match its unique appearance. This prevented further release of stored carbon. Where nothing could be saved, a carbon-considerate light-touch ensured that steels were deliberately avoided throughout.



为了完成从石油和天然气的过渡,已经为厨房指定了一个电炉,而空气源热泵取代了室外游泳池的天然气加热。在主屋内,新的供暖锅炉系统现在是可分区的,在不需要的地方消除了能源开支。
To complete the transition from oil and gas, an electric stove has been specified for the kitchen, while an air-source heat pump replaces gas heating for the outdoor swimming pool. Inside the main house, the new heating boiler system is now zoneable, eliminating energy expenditure where it is not needed.



一个新的厨房扩建部分面对着中央庭院的一侧。它的玻璃门框住了新暴露的石头立面,为户外聚会提供了一个亲密的空间。在内部,扩展部分作为一个缺失的环节,将一个线性的围墙计划转换为多方向的流通。新的石头铺装,忠实于中世纪的结构,在整个不同建筑的底层是连续的。这简化了客人的进出,使ARC Painswick感到社交和透明,同时在整个房子里感受到一种平静的感觉。
A new kitchen extension fronts one side of the central courtyard. Its glazed doors frame newly exposed stone façades that shelter an intimate space for outdoor gatherings. Internally, the extension acts as a missing link that converts a linear enfilade plan to multidirectional circulation. New stone paving, true to the medieval fabric, is continuous on the ground floor throughout the different buildings. This simplifies access for guests, making ARC Painswick feel social and transparent, while a sense of calm is felt throughout the house.

为了保护隐私,以前密封的楼梯被重新打开,作为私人通道通向上面的大套房,每间卧室都有自己的完全翻新的,或新分配的套房或私人浴室。这些房间还具有高规格的内置橱柜、木材衬里的角落、房间特定的窗台和木质座椅。
For privacy, previously sealed stairways have been reopened as private circulation leading to large suites above where each bedroom has its own fully refurbished, or newly apportioned, ensuite or private bathroom. The rooms also feature High-spec built-in cabinetry, timber-lined nooks, room-specific sills, and wooden seating.


在每一个地方,随着五个世纪的使用而产生的不规则现象被突出,而不是被隐藏。它们为这个新旧并存的项目提供了一个连贯的特征。柔软的石灰石墙壁和精致的原始天花板横梁和椽子与简单的白色灰泥形成了优雅的对比。博物馆的聚光灯将赞赏的目光投向不断出现的遗产。
Everywhere, the irregularities that come with five centuries’ use are highlighted, not hidden. They provide a cohesive character for a project that juxtaposes and merges old and new. Soft limestone walls and delicate original ceiling beams and rafters are elegantly contrasted by simple white plaster. Museum spotlights place appreciative attention on the constant presence of heritage.




帕尔蒂对遗产的建筑语言也很感兴趣。新扩建部分的屋顶是弧形的,仿佛老化并向内弯曲,压在梁的轮廓上。外部特征被重新利用为内部元素,在一端,一个小的石头开口为通往套房的私人楼梯间提供光线。新的材料和饰面来自于历史结构:淡色橡木和斑点石灰石的调色板已被指定用于结构件、装置和家具。Parti设计了定制的 "triply "橡木座椅、储物柜和床头柜,其灵感来自于中世纪宴会椅的交错平面曲线。这些作品的指接板产生了一个现代的、光滑的外观,与周围的历史环境相得益彰。
Parti have also had fun with the architectural language of heritage. The roof of the new extension is curved, as if aged and bowing inward, weighing on the profile of the beams. Exterior features are repurposed as interior elements and on one end, a small stone opening provides light for a private stairwell to the suites. New materials and finishes are derived from the historic fabric: a palette of pale oak and speckled limestone has been specified for structural members, fixtures, and furniture. Parti designed bespoke ‘triply’ oak seating, storage, and headboards inspired by the interlocking planed curves of medieval banqueting chairs. The pieces’ finger-jointed panels produce a contemporary, sleek appearance that complements the historic surrounds.

ARC Painswick为该镇一个最重要的门面重新注入了活力--甚至在Pevsner的指南中也提到了。面向街道的窗台充满了变化的充满活力的艺术作品,供大家欣赏,由一个年轻的集体--当代艺术家策划。为了邀请社区参与探索,我们组织了一个免费的饮料和烧烤之夜,随着ARC和Parti寻求更新建筑遗产供大家享受的方法,还会有更多的活动。
ARC Painswick renews life for a most significant frontage in the town – even mentioned in Pevsner’s Guide. The street-facing bay windows are filled with a changing show of vibrant artwork for everyone to enjoy, curated by a young collective, the Artist Contemporary. To invite the community in to explore, a free drinks and BBQ night was organised and many more events will followas ARC and Parti seek ways to renew built heritage for everyone to enjoy.

这种大胆的新的接待形式已经导致了一种新的类型的产生。项目的变化
从BnB到ARC Painswick的项目变化导致了更有效的场所运行,它只在客人入住前和入住期间启动。一个共同设计的品牌整合体验的数字平台,称为ARC大堂。由于ARC与社区餐馆、咖啡馆、酒窖和杂货店的关系,大堂成为可能,为现有企业提供了合作的替代收入来源。大厅简化了大规模的交易,允许26位(或更多)客人在他们需要的时候同时聊天、计划和订购他们需要的东西--对他们来说很容易,对供应商来说也很值得。
This bold new form of hospitality has resulted in the creation of a new typology. The change in
programme from a BnB to ARC Painswick has led to more efficient running of the premises, which is only activated immediately before and during guests’ stays. A co-designed digital platform for brand-integrated experiences called ARC Lobby. The Lobby is possible due to ARC’s relationships with community restaurants, cafes, cellars, and grocers, offering existing businesses a collaborative alternative revenue stream. The Lobby streamlines large-scale transactions, allowing 26 (or more) guests to simultaneously chat, plan, and order what they need, when they need it – easy for them, and worthwhile for the supplier.

Parti公司的创始董事埃莉诺-希尔说:"在未来几十年里保存和保护这个美丽的历史建筑,对我们来说是一项非常重要的任务。我们都有一个共同的愿望,即庆祝这些历史遗迹,重新利用材料,创造空间,并鼓励团体之间的团结,否则他们可能很难找到高质量而又负担得起的农村度假住宿。"
Eleanor Hill, founding director at Parti said, “To preserve and protect this beautiful and historic building for many decades to come is a deeply important task for us. We all share a desire to celebrate these historic sites, repurposing materials, creating spaces, and encouraging togetherness among groups that may otherwise struggle to find high quality yet affordable rural holiday accommodation.”



Architects: Parti
Year : 2022
Photographs :Parti
Manufacturers : Miele, King Construction, VMZINC
Main Contractor : King Builders Gloucester
Services Engineer : Withycombe Design Services
Planning Consultant : Brodie Planning Associates
Client : Architecture Retreats Ltd
Other Consultants : Simple WorksS
City : Painswick
Country : United Kingdom