竞技场酒店展示了一个相对温和的改造是如何对建筑及其周围环境产生重大影响的。扩建的动力来自于阿姆斯特丹市政府对奥斯特公园进行改造并将其面积扩大一倍的提议。为了实现这一目标,公园边缘的私人场地,包括属于Arena酒店的场地,都被打开了。V团队抓住了这个机会,将酒店 "转过来",创造了一个面向公园的新正面。
Hotel Arena shows how a relatively modest renovation can have a major impact on both a building and its surroundings. The impetus for the extension came with the proposal by the municipality of Amsterdam to renovate Oosterpark and double its size. To achieve this, private grounds around the edges of the park, including that belonging to Hotel Arena, were opened up. Team V seized on the opportunity to “turn the hotel around” and create a new front-facing the park.




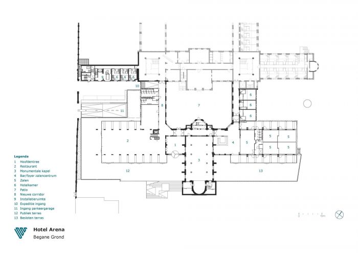
背面 - 竞技场酒店位于前圣伊丽莎白机构,为患病妇女和孤女提供服务。建筑物的正面,主要入口在Mauritskade,包含属于一个住房协会的社会租赁住宅。宾馆总是通过侧街的一个次要入口进入。现在这个入口是通往地下室新停车场的坡道旁的服务入口。酒店的入口已被重新安置在面向奥斯特公园的一侧。一条宽阔的台阶从公园通向一个宽敞的、阳光充足的室外露台,并通向小教堂左侧的新入口。当小教堂内部的镶板被拆除时,彩色玻璃窗和原来的墙面绘画被证明基本完好无损。这座具有纪念意义的小教堂已经恢复了它昔日的光彩。
BACK TO FRONT – Hotel Arena is housed in the former Saint Elisabeth Institution for ill women and orphaned girls. The front of the building, with the main entrance on the Mauritskade, contains social rental dwellings belonging to a housing association. The hotel was always accessed through a secondary entrance on the side street. This is now the service entrance beside the ramp to the new car park in the basement. The hotel entrance has been relocated to the side facing Oosterpark. A broad flight of steps leads from the park to a spacious and sunny outdoor terrace and to the new entrance on the left of the chapel. When the paneling inside of the chapel was removed, the stained-glass windows and original wall painting turned out to be largely intact. The monumental chapel has been restored to its former glory.


原先的计划 - 酒店被扩建了三个新的侧翼:一个砖砌的酒店侧翼和两个位于小教堂两侧的透明亭子。扩建部分沿用了建筑师阿德里安努斯-布莱伊斯(Adrianus Bleijs)的原始对称平面图。他对女子机构的设计在1890年只建了一部分,在未来可以加建的地方有临时的外墙。新的酒店翼楼采用了现代的砖砌图案,与布莱伊斯的砖砌建筑相一致。两个新的展馆,包括一个餐厅和用于会议和活动的工作室,也与Bleijs的结构和谐地融合在一起。一排柱子沿袭了原来的足迹,并在柱子周围设置了太阳椅。室外露台上的天然石材和砖块铺设延伸到室内。
ORIGINAL PLANS – The hotel has been extended with three new wings: one brick hotel wing and two transparent pavilions on either side of the chapel. The extension follows the original symmetrical floor plan by the architect Adrianus Bleijs. His design for the institution for girls was only partially built in 1890, with provisional façades in places where future extensions could be added. With its contemporary brickwork pattern, the new hotel wing aligns with the brick architecture of Bleijs. The two new pavilions, housing a restaurant and studios for meetings and events, also blend in harmoniously with Bleijs’s composition. The row of columns follows the original footprint, with sun lounges enclosing them. The natural stone and brick paving on the outdoor terrace extends indoors.






















Architects: Team V Architecture
Area : 5000 m²
Year : 2017
Photographs :Luuk Kramer, Teo Krijgsma
Manufacturers : AutoDesk, Jansen, Schüco, Alcoa, Bambooteq, Boon Edam, Duracryl, Hormann, M.C. Kersten BV, OPTIGREEN, Reinaerdt, Van Stokkum Natuursteen, Vande Moortel, Verwol
Lead Architects : Jeroen van Schooten, Do Janne Vermeulen
City:Amsterdam
Country: THE NETHERLANDS