这座来自拉尔夫-特维切尔办公室的独特的中世纪现代房屋遭受了多年的修改和忽视。内部和外部之间的门和窗户以及房间之间的门,包括浴室,都被拆除。原来的车棚被用玻璃滑门封闭起来,在主卧室后面增加了一个笨拙的储藏区。
This unique mid-century modern house from the office of Ralph Twitchell suffered years of modifications and neglect. Doors and windows between inside and outside and doors between rooms, including bathrooms, had been removed. The original carport was closed in with sliding glass doors and an awkward storage area was added behind the master bedroom.




整个房子里出现了不同的地板材料的拼凑,主要空间的地板被涂上了不透明的黑色污渍,由于原来的玻璃推拉门被拆除,一直到与室内相邻的游泳池甲板。原有的叠合块墙体的内部和外部都被其他饰面所覆盖,而其他区域的块体仍然暴露在外。
A patchwork of different floor materials occurred throughout the house and the floor of the main space was coated with an opaque black stain continuing out to the pool deck contiguous with the interior due to the removal of the original sliding glass doors. Some of the original stack-bond block walls inside and outside were covered with other finishes while other areas of the block were still exposed.

从本质上讲,这所房子已经成为一个不兼容的材料和未完成的想法的拼凑,既有趣又不明智。幸运的是,独特的屋顶结构由皮克特板组成的 "V "字形,仍然存在,并且处于合理的状态。
Essentially, the house had become a patchwork of incompatible materials and unfinished ideas, both interesting and ill-advised. Fortunately, the unique roof structure made of Pickett panels in a “V” formation, was still present and was in reasonable condition.

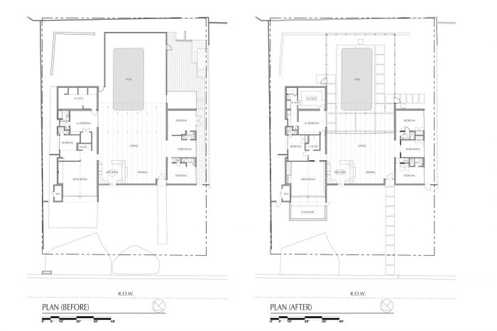
新的业主决定不把房子恢复到原来的状态,因为这需要损失一些面积。最终,翻修的目标是使原始的中世纪设计的独特和有趣的方面成为焦点,并给房子带来一个统一的审美和组织,以及空调,在房子经过多年的修改后仍然缺乏。
The new owners decided not to restore the house to original condition due to the loss of square footage that this would require. Ultimately, the goal for the renovations was to bring into focus the unique and interesting aspects of the original mid-century design and to bring a cohesive aesthetic and organization to the house, along with air-conditioning, still lacking after the many years of modifications to the house.

在缺少窗户和外门的地方安装了新的窗户和外门,并替换了其他的窗户和外门,以使所有的窗户和外门都能匹配。游泳池的笼子,不是原来的房子,被替换成一个更高的笼子,与主要室内空间的墙壁对齐,并允许屋顶边缘不受阻碍。不相干的内部和外部元素被移除,并增加了一个新的外部硬景观。浴室被重新配置,天窗被放置在淋浴器上方,将自然光引入这些小的黑暗房间。
New windows and exterior doors were installed where missing, and as replacements for others so that all would match. The pool cage, not original to the house, was replaced with a taller cage that aligns with the walls of the main interior space and allows the roof edge to be unobstructed. Extraneous interior and exterior elements were removed, and a new exterior hardscape was added. Bathrooms were reconfigured and skylights were placed above showers to introduce natural light into these small dark rooms.

由于主要空间的每一侧都有一个低矮的平顶结构,而且没有阁楼空间,房子的空调策略是房子解决方案中不可或缺的。走廊的天花板下降了12英寸,还有其他一些地方也被仔细地纳入了设计,以便为空气分配提供通道。橱柜是空气分配战略的组成部分,在需要的地方,通道隐藏在顶部和后面,在一些地方,回风通过脚踢的区域。
原有的叠合砖墙被其他材料覆盖,已经损坏,无法恢复。为了达到屋内和屋外一致的美感,根据需要更换或增加了墙面饰面。不同的地板材料和底层的拼凑被覆盖了一个整体的彩色薄混凝土顶层。室内门和门框被添加,而其他的则被替换,以达到一致的室内审美。
With a low flat roof structure on each side of the main space and no attic space, strategies for air-conditioning the house was integral to the solution for the house. Hallway ceilings were dropped 12 inches along with a couple of other areas carefully worked into the design in order to provide pathways for air distribution. Casework is integral to the air-distribution strategy with pathways concealed at the top and behind where needed and return air through toe-kick areas in some places.
The original stack-bond block walls, which were covered with other materials, were damaged and unable to be restored. To achieve a consistent aesthetic inside and outside the house, wall finishes were replaced or added as needed. The patchwork of dissimilar flooring materials and substrates was covered with an integrally colored thin concrete topping. Interior doors and door jambs were added, and others replaced, to achieve a consistent interior aesthetic.

虽然在每个材料和细节上都没有忠实于原来的设计,但这所房子重现了原来设计的精神,清楚地说明了它所属的时期,并利用了使原来的房子独特的元素。
While not true to the original design in every material and detail, the house recaptures the spirit of the original design, speaks clearly of the period to which it belongs, and takes advantage of the elements that made the original house unique.








Architects: Seibert Architects, P.A.
Area : 3500 ft²
Year : 2021
Photographs :Ryan Gamma Photography
Manufacturers : Hansgrohe, Kohler, Omnia Industries, Toto, Bigass Fans, Cardinal, Diode LED, Halo, Modern Forms, Windoor Inc
Interior Design : &Masters-Interior Architecture & Fine Art
Structural Engineer : Hees & Associates Inc. E.O.R
Project Architect : Michael Lee Epstein, AIA
General Contractor : Ball Construction Inc., Yoder Homes & Remodeling
City : Sarasota
Country : United States