餐馆是以城市咖啡馆的风格设计的,在切尔沃诺格勒市过去的电影院的建筑,建于1970年。现在这栋建筑被改造成购物中心的需要。该项目是由利沃夫家族建筑设计局BARANBURO开发的。城市咖啡馆概念的应用,使得创造一个能吸引城市各年龄段居民的空间成为可能。这个项目的目的是在城市中创造一些新的和不寻常的东西,一种爆炸,将启动城市设计的积极变化和趋势。对于切尔沃诺赫拉德这样一个小城市来说,这是一个新的、有趣的、时尚的概念。
The restaurant is designed in the style of a city café in the building of the past cinema of Chervonograd city, built in 1970. Now this building is converted to the needs of the shopping center. The project was developed by the Lviv family bureau of architecture and design BARANBURO. The application of the concept of a city café made it possible to create a space that would attract city residents of all ages. The aim of this project was to create something new and unusual in the city, a kind of explosion that would initiate positive changes and trends in the design of the city. For such a small city as Chervonohrad, this is a new, interesting and trendy concept.



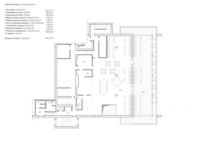
我们的目标是为餐厅的大主厅设计,改善露台,解决入口组的设计。主厅座位数65个,露台上:65个。该机构总面积为600平方米。在创造这个空间的时候,留下了现有的结构,如金属梁、房屋的混凝土板。这件事是为了在那个地方的内部设置工业主义的风格。开放空间的概念构成了餐厅内桌椅和游客活动的规划方案的基础。在空间设计的同时,所使用的材料也给了来访者一种舒适的感觉,让大人和孩子都觉得有趣。这就是为什么我们将混凝土的灰色和木头的中性颜色与椅子、吧台和地板陶瓷的重点颜色等明亮的点缀相结合的原因。在墙面装饰上采用了自然的色彩和纹理。
We had a goal to create a design for the large main hall of the restaurant, improve the terrace and solve the design of the entrance group. Number of seats in the main hall 65, on the terrace: 65. The total area of the institution is 600 m2. When creating this space, the existing structures such as metal beams, concrete slabs of the house were left. That thing was done to set the style of industrialism in the interior of that place. The concept of open space formed the basis of the planning scheme of tables and movement of visitors inside the restaurant. The materials that were used, while the space design was created, gave the visitors a comfort feeling and make it interesting for both adults and children. That's why we breed the gray colors of concrete and neutral color of wood with such bright accents, as chairs and accent colors of the bar and floor ceramics. Natural colors and textures were used in wall decoration.

为了营造舒适的氛围,我们选择了柔和、温暖的灯光。我们还在室内加入了霓虹灯,以强调设计空间的工业氛围。大面积的琉璃露台通向城市的中心广场,是城市景观的好视点之一。露台与这个空间相得益彰,成为了它的亮点,因为现在这里是众多活动的举办地。
The soft, warm light was chosen in order to create a comfortable atmosphere. We also add a neon light to the interior to emphasize the industrial atmosphere of the designed space. A large glazed terrace is open to the central square of the city, and it is one of a good viewpoint on the city view. The terrace complements this space and has become its highlight, because it is now where numerous events and activities are held.













建筑师:Baran Buro
面积:600 m²
年份:2019年
摄影:Andy Shustykevych
制造商:Aparici, GRAPHISOFT, Wever & Ducre, Endon, Italux, SLV, Zambelis
首席建筑师:Andrii Baran, Olena Baran, Elmira Akopyan
设计团队:Baran Buro
家具:Varenycia Manufacture
城市:Chervonograd
国家:乌克兰
Architects: Baran Buro
Area: 600 m²
Year: 2019
Photographs: Andy Shustykevych
Manufacturers: Aparici, GRAPHISOFT, Wever & Ducre, Endon, Italux, SLV, Zambelis
Lead Architects:Andrii Baran, Olena Baran, Elmira Akopyan
Design Team:Baran Buro
Furniture:Varenycia Manufacture
City:Chervonograd
Country:Ukraine