2013年,在波尔图充满活力的Largo de São Domingos的74号,发现了一栋具有迷人个性的建筑。
In 2013 a building with a charming personality was found in the n.74 of the dynamic Largo de São Domingos, in Porto.



在一系列的住宅建筑中,这栋建筑因其严格的外墙和大而自由的内部空间而脱颖而出,具有旧铁仓库的特点。
Among a set of dwelling buildings this one stood out by the austerity of its facade and the large and free open interior, charactreristics of an old iron warehouse.

该项目的主要目标是将一个宽阔而深邃的温泉改造成一个有魅力的酒店,保持其原有的氛围。
The main object of the project was to transform a wide and deep spaece into an hotel of charm, maintaining its original atmosphere.

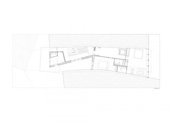
建筑物的内部设计有一个中央天井,允许内部有充足的光线和生动的空间。一个轻盈的楼梯显示了6层楼的垂直度,水平循环与起居室混合,创造了宽大的公共区域。
The interior of the building was designed with a central patio allowing plenty of light inside and vivid spaces. A ligthweight staircase shows the verticality of its 6 floors and the horizontal circulations were mixed with living rooms, creating wide and generous common areas.



材料的选择是为了加强仓库和酒店之间的双重性--冷的和原始的材料,如铁和混凝土,与轻型木材、精美的织物、天鹅绒和舒适的地毯形成对比。
The materials were selected to enhance this duality between a warehouse and a hotel - cold and raw materials such as iron and concrete, appeared in contrast with light wood, fine fabrics, velvet, and confortable rugs.

接待处和主客厅被设计成面向街道。从这里,沿着与原有的石头坡道重叠的楼梯下去,我们可以看到早餐/餐厅,由厨房提供服务。
The reception and the main living room were designed facing the street. From here, going down a stairway that overlaps the pre-existing stone ramp, we find the breakfast/dinning room, served by a kitchen.

上层是保留给卧室的,它们都有私人浴室。沿着建筑往上走,可以发现一些令人惊讶的时刻,如面对波尔图大教堂的露台,或最后一层的顶楼,它允许一个不同的和丰富的空间体验,由精致的壁炉形状提供。
The upper floors were reserved for the bedrooms, which all have private bathrooms. Going up the building one can find some surprising moments such as the terrace facing the Porto Cathedral or the penthouse in the last floor which allows a different and rich space experience given by the exquisite celling shape.






























Architects: Pedra Líquida
Area: 600 m²
Year: 2016
Photographs: José Campos
Team:Luís Sobral, Carlos Campos, Teresa Novais
Collaborators:Maria Barreiros, Filipe Madeira, Tiago Antero, Diogo Mesquita
Structural And Hidraulic Engineer:Ana Vale, Miguel Vale
Mechanical Engineer:Raul Bessa, Telmo Mesquita
Electrical Engineer:Luís Oliveira
Acoustic Engineer:Rui Ribeiro
Structural Engineer:Ana Vale, Miguel Vale
Hydraulic Engineer:Ana Vale, Miguel Vale
City:Porto
Country:Portugal