面对Born市场的挑战,我们的出发点是将皮肤科产品公司pHFormula的项目与原有的建筑和周边环境完美的共生。由此产生的 "艺术俱乐部Born "既忠实于公司形象,又与该地区过去的强烈存在感共存。
Challenged by the presence of the Born Market, the perfect symbiosis between the resulting project for the dermatological products company pHFormula and the preexisting buildings and sorroundings was our starting point. The resulting ‘Art Club Born” stays true to the company image but also coexists with the strong presence of the past in the area.



在Comerç街和Ribera街之间的一栋建于1904年的拐角建筑的底层和地下室,我们找到了皮肤科公司的新总部。
In the ground floor and basement of a corner building built in 1904, between Comerç and Ribera streets, we find the new headquarters of the dermatological company.

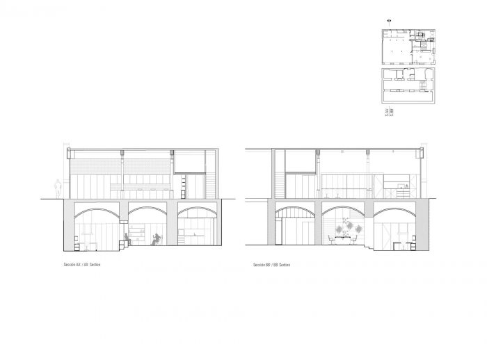
考虑到该公司有一个强大的承诺,其员工和代表的培训,总部需要一个培训区域。从街道进入的一楼分布在两个范围内,大厅和这些形成区域。空间之间的划分被认为是包含了可居住的家具墙,容纳了必要的程序和装置。
Taking into account the company has a strong committment with the training of its employees and representatives the headquarters were in need of a training area. The ground floor with access from the street is distributed between two scopes, the hall and these formation area. The divisions between the spaces are conceived as containing walls of habitable furniture, harboring the necessary program and installations.

另一方面,三个相邻的矩形地板拱顶由陶瓷砖制成,符合地下室地板。
地下一层的设计理念是:在一个巨大的中央空间内,用一张大桌子将原有的视觉连接起来,主要的业务活动通常在这里进行,同时也是公司日常工作的交叉点和互动点。另外两个地下室平行分布,从每个角度看,都可以看到整个地下室的整体面貌。
On the other hand, three adjacent rectangular floor vaults made of ceramic brick conform the basement floor.
This basement floor is thought from the idea of having again the original visual connections across a great central space with a large table. where habitually the main business activity resides as well as intersections and interactions of the daily company routine. The other two vaults are distributed parallel, and from every point of view, makes it possible to recognize the entire basement in its whole dimension.



原有结构和重新发现的材料在这个地方的修复中都得到了考虑,加强了原有的空间条件和长期积累的遗产。
Both the original structure and the rediscovered materials had been considered in the rehabilitation of this local, enhancing the preexisting space conditions and the heritage gathered over time.

修复空间是本项目的主要目的,从一开始就考虑到了三个前提,尊重现有的空间。恢复+再利用+再照明
Rehabiting the space is the main intention of the project, from the beginning three premises had been taken into account respecting the existing: Recovering + Re-using + Re-lighting

恢复中
干预的目的是要让原始材料在其建造时的自发性、曾经的建筑最初设计的氛围回归,尽量减少新材料的使用,只留下现有的安放在上面,尊重并减少与回收的影响。
Recovering
Interventions seek to bring back the autenticity of the original material in its time of construction, the ambience that once the building was originally designed for, minimizing the use of new materials, leaving just the existing resting on it respecting and reducing the impact versus the recovered.

再利用
本着特意强调 "再次使用 "的态度,项目将搬迁后总部的家具进行了再利用,而这些家具早在几年前我们工作室就已经在另一栋建筑中进行了规划。不仅家具被重新利用,而且每一个空间都被彻底重新安置。重建和建立新的关系是我们的主要目标,通过使用程序来拥抱现有的和解决新的空间关系。
Re-using
The intention to purposely underline the “use again” attitude lead the project to reuse the furniture from the relocated headquarters, which had been planned by our studio in another building years before. Not only the furniture has been reused, it has also been thoroughly relocated in every single space. Rehabiting and establishing new relationships has been the main goal, embracing the existing and settling new spacial relationships with the uses program.



重新点亮
我们的目标是在所有这些区域实现最大程度的采光。作为地下一层确实是一个强有力的条件,因为唯一的自然光入口是一扇通往Comerç街的大窗户,旁边是通往最低层的楼梯。
Relighting
The goal was to achieve the maximum amount of light in all these area. Being a basement level is indeed a strong conditionant as the only natural entrance of light was a large window to Comerç Street, next to the access stairs to its lowest level.

一个镜箱成为这个干预措施的强点,在这个伟大的光反射点下庇护着一个安定的程序。每一个空间的个性都会随着太阳光的照射而变化。表面的白色越多,空间内的光线就越遍及。
A mirror box becomes the strong point of this intervention sheltering a settled program underneath this great point of light reflections. The personality of each space evolves with the amount of natural light given according to the solar schedule. The more white color is in the surfaces, the more light is all over the space.

作为内部和外部之间的重复游戏,镜箱成为一个 "follie",收集复杂和扭曲,逗我们开心,就像建筑有时不得不这样做。
As a game of duplicities between interior and exterior, the mirror box becomes a “follie” gathering complexity and distorsion, amuseing us as the architecture some times has to.






建筑师:Balet Roselló Arquitectos
面积:3573平方英尺
年份:2020年
摄影:Davide Camesasca
制造商:BATHCO, Forma 5, HAY, ICONICO, INCLASS, Marset, Massproductions, Viccarbe, XAL, FLOS, Pilma
牵头建筑师:BR arquitectos
设计团队:Cristina Bale, Esther Roselló, Eulàlia Grabolosa
客户:Privado
工程师:Sergi Cano
城市:萨拉戈萨
国家:西班牙
Architects: Balet Roselló Arquitectos
Area: 3573 ft²
Year: 2020
Photographs: Davide Camesasca
Manufacturers: BATHCO, Forma 5, HAY, ICONICO, INCLASS, Marset, Massproductions, Viccarbe, XAL, FLOS, Pilma
A Lead Architects:BR arquitectos
Design Team:Cristina Bale, Esther Roselló, Eulàlia Grabolosa
Client:Privado
Engineer:Sergi Cano
City:Zaragoza
Country:Spain