Les Hauts de Sévigné "开发项目由Launay集团领导,位于雷恩-巴黎铁路线、巴黎大道和Rigourdière商业园之间。这个位于城市入口的区域今天主要由活动组成。最终,它将成为约650个住房单元和12000平方米的商业建筑面积的家。
The "Les Hauts de Sévigné" development project, led by the Launay Group, is located between the Rennes-Paris railroad line, the Route de Paris, and the Rigourdière business park. This sector at the entrance to the city is today mainly composed of activities. Eventually, it will be home to approximately 650 housing units and 12,000 m2 of business floor space.



授予Néotoa的地块和我们所反映的地块位于西部和北部界限。它利用其在山腹中的位置,提供了一个大型bocage景观和北部Vilaine山谷的全景。
The lot awarded to Néotoa and on which we have been led to reflect is located in the western part and on the northern limit. It takes advantage of its position in a belvedere and offers a panoramic view of the large bocage landscape and the Vilaine valley to the north.

该建筑被分割成两个主要体量:一个在北面,与街道对齐,另一个在南面,与C7地块的地产线对齐。
The building is fragmented into two main volumes: one to the north, which is aligned with the street, and the second, which follows the alignment of the property line with lot C7 to the south.

建筑物的主体并没有因为热性能的原因而在楼层上有所变化。从一层到另一层变化的是露台:有时宽,有时深,它们 "模糊 "了建筑的界限。栏杆是用漂白的玻璃填充的。石板围栏和阳极氧化铝扶手具有独特的厚度,有助于抹去当前楼层的规模。
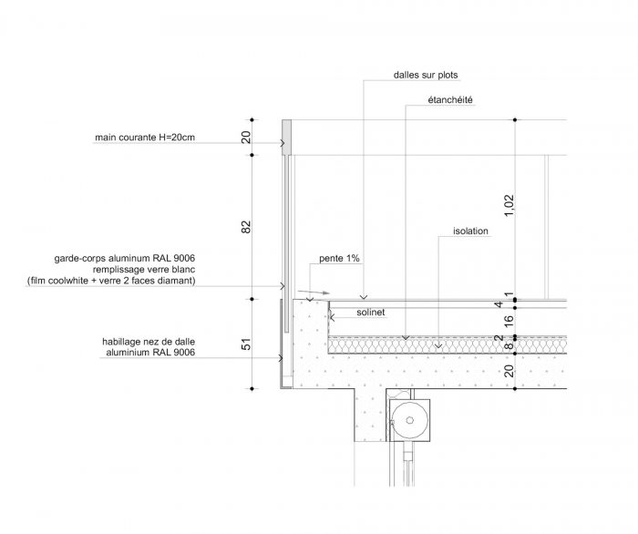
The body of the building does not vary in the floors for the sake of thermal performance. It is the terraces that change from one level to another: sometimes wide, sometimes deep, they "blur" the limits of the building. The railings are filled with bleached glass. The slab nosing and the anodized aluminum handrail have a unique thickness and help to erase the scale of the current levels.

阁楼上的最后几层从立面后退。它们通过建筑体量的分割来表达与天空的关系。
The last levels in the attic are set back from the façade. They express the relationship to the sky by the fragmentation of the built volume.

外墙的处理根据不同的方向和不同的层次是同质的,没有方向的层次性。砖石部分是浅色的混凝土漆。地面层的东部是停车位。这些空间被一个植被混凝土屋顶所覆盖,并在露台的连续性上进行处理。单车通道位于该地段的东部。它是通往地下室(22个车位)和位于底层建筑下的24个停车位的坡道。
The treatment of the facades is homogeneous according to the orientation and the different levels, without a hierarchy of orientation. The masonry parts are painted concrete of light color. The eastern part of the ground floor houses parking spaces. These spaces are covered by a vegetated concrete roof treated in the continuity of the terraces. The single-car access is located to the east of the lot. It serves as the access ramp to the basement (22 spaces) and 24 parking spaces located under the building on the ground floor.


通往各单元的主要人行通道位于该地段的西北角。一个被处理成铺装广场的公共空间为宽敞的玻璃入口大厅和两轮车房提供服务,该房间被锁在与所有街区共同的围栏相连接的后面。
The main pedestrian access to the units is located at the North/West corner of the lot. A common space treated as a paved square serves the generously glazed entrance hall and the two-wheeler room sheltered behind a lock-in continuity with the fences common to all the blocks.

人行门被放置在围栏中,允许从公共空间直接进入私人花园和相邻的住房。
Pedestrian gates are placed in the fence to allow direct access to the private gardens and to the contiguous housing from the public space.































Architects: a/LTA
Area: 2745 m²
Year: 2020
Photographs: Charly Broyez
Client:Néotoa
Planner:Groupe Launay
Architects In Charge:Nolwenn Caillard, Jorge Martin Sanchez
Urban Planner:Atelier Loyer + Ker Anna paysage
Economists:Cabinet Lemonnier
Fluids Engineers:THALEM
Structure Engineers:OUEST STRUCTURES
Site Management:APHIPRO
Site Inspector:SOCOTEC
City:Cesson-Sévigné
Country:France