"研究自然,热爱自然,贴近自然。它永远不会让你失望。" --弗兰克-劳埃德-赖特 20世纪最著名的建筑师之一的标志性话语,代表了大自然的质量和本质。作为一名建筑师学生,我承认赖特是我的老师之一。
"Study nature, love nature, stay close to nature. It will never fail you." -- Frank Lloyd Wright The iconic quote from one of the most famous architect from 20th Century which represents the quality and essence of nature. As an architect student, I acknowledge Wright as one of my teacher.







在Klongsarn区的一家公司做了4年的初级建筑师后,我发现了大树的美丽,河流的芬芳,草地和土壤的触摸。然而,小鸟必须靠它的翅膀成长和流动。建筑师也是这样生活的。在设计的世界里飞行了3年之后,我正在寻找一棵大树来建造一个庇护所,有一天会发展成一个大房子。命运给了我一个位于Charoenrat路的联排别墅的空三楼,这与我正在寻找的理想办公室的概念性形象相反。
After working as a junior architect for 4 years in a company at Klongsarn district, I found a beauty in big trees, scent of river and touch of grass and soil. However, little bird has to grow and flow by its wings. Architect lives that way too. After flying in the world of design for 3 years, I'm seeking for the big tree to construct a shelter which one day will grow to a big house. The predestination gave me an empty 3rd floor on a townhouse at Charoenrat road which contrary to my conceptual image of the ideal office I'm searching.

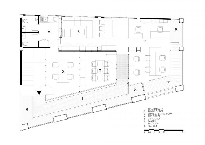
因此,我必须自己建造我想要的东西。根据赖特的概念,我决定在建筑的北面和东面减少15%的面积,以创造由鹅卵石地板、混凝土花盆、木地板和少量碎石组成的树木-阳台。这些元素塑造了室内自然景观,也为室外建筑和电线景观提供了缓冲。人们可以走来走去,发现自己就像走在底层一样。
Therefore, I have to construct those I wanted by myself. According to Wright's concept, I decide to lose 15% of area at north and east of the building to create trees-balcony which formed by cobble stone floor, concrete planter, wooden floor and little gravel. These elements shaped the indoor-nature view and also the buffer for outdoor building and wires view. People can walk around and found themselves feeling like walking on ground floor.




平面图上有4个分区,分别是ARTi建筑师办公室、共享会议室、灯光设计/平面设计租赁室和树木阳台,可以通过每个分区进入。我相信,良好的环境可以塑造良好的精神状态,也可以给设计师带来良好的灵感。我希望看到这样的办公室,人们愿意在一天中平衡地工作和休息,并以我把自然带到三楼的概念来打动访客。"如果你真正热爱自然,你会发现到处都是美"。--文森特-梵高
There are 4 zoning on the floor plan which are ARTi Architect office, share-meeting room, rental room for lighting design/graphic design and trees-balcony which can access through every zone. I believe that the good environment shaped a good mental and also a good inspiration for designer. I wish to see the office that people willing to work and rest in balance of day and impress the visitor with my concept of bringing nature to 3rd floor. "If you truly love nature, you will find beauty everywhere." -- Vincent Van Gogh



























Architects: ARTi Architect
Area: 140 m²
Year: 2021
Photographs: Rungkit Charoenwat
Manufacturers: Thaistoneshop, Wiboon Sintanavevong, Yongyuansawmill
Contractor: WAWARA design
Architect:Atit Sirimongkol
Landscape Architect:Adhiwat Jatinandana
Lighting Designer:Arunsri Punma
Electrical Engineer:Wiboon Sintanavevong
City:Bangkok
Country:Thailand