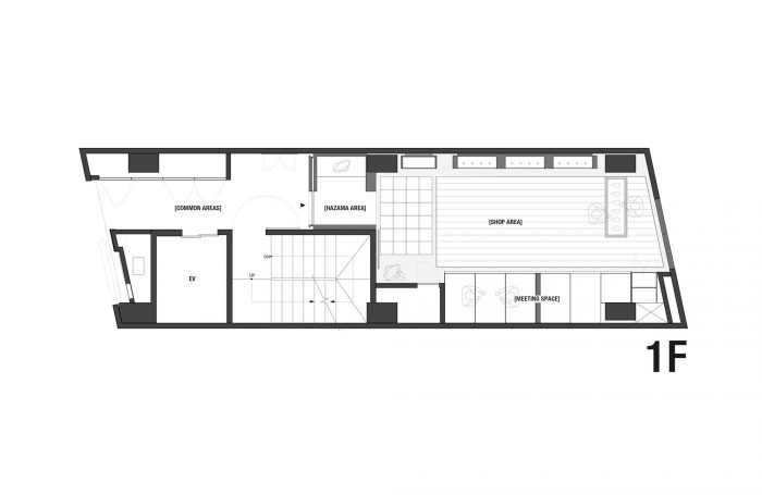
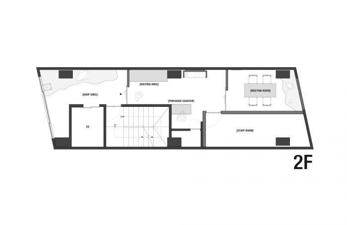
为一家收集世界各地稀有和豪华手表的专卖店进行室内设计。场地是位于东京新宿的一栋旧租户大楼,那里挤满了各种商店,由两层楼组成:一楼:销售楼层,二楼:购买柜台。在一个紧凑的商店里,门面狭窄,入口从街道深处,需要一个适合遇到稀有产品的地方。在商店的入口处设置了一个由黑钢完成的空间,没有任何功能。这是为了提高人们对内部空间的期望,其灵感来自于日本传统神社中的做法。
Interior design for a specialty store that collects rare and luxury watches from around the world.The site is an old tenant building in Shinjuku, Tokyo, where various stores are crowded, and consists of 2 floors: 1st floor: sales floor, 2nd floor: purchase counter. In a compact store with a narrow frontage and an entrance deep from the street, a place suitable for encountering rare products was required. A space finished by black steel with no function was set up at the entrance of the store. This is intended to raise expectations for the interior space and inspired by the approach can be found in Japanese traditional shrine.





与其掩盖店内腐朽的现有混凝土骨架,不如在一些有缺陷的部分使用KINTSUGI--日本传统的金粉修复技术,赋予旧的混凝土新的价值,这种技术通常可以在陶器上找到。地板、谈判室和展示柜被安排在空间中,使用与现有混凝土相冲突的材料。
Instead of covering up the decrepit existing concrete skeleton inside the store, the old concrete was given new value by applying KINTSUGI -Japanese traditional repairing technics with powdered gold which can be usually found on pottery- to some of the defective parts. The floor, the negotiation booth, and the showcase were arranged in the space using materials that conflict with the existing concrete.

通过在这些空间之间铺设碎石,我们表达了一种平静和美丽的感觉,让人想起日本花园。地板由旧木材完成,漂浮在空间中,作为遇到稀有产品的舞台。不锈钢的展示柜使人感觉到一种另类的银行金库,产品的稀有性更加突出。手表的展示架使用的是天然石材,通过与石材的自然美形成对比,增强了手表人工美的吸引力,可以说是先进工艺的结晶。
By laying gravel between these spaces, we express a sense of calmness and beauty reminiscent of a Japanese garden. The floor was finished by old lumber and floated in the space as a stage for encountering rare products. The stainless-steel showcase makes a sensation of an otherworldly bank vault and the rarity of the product stand out more. The display stand of the watch uses natural stone as it is, and by contrasting it with the natural beauty of the stone, it enhances the attractiveness of the artificial beauty of the wristwatch, which can be said to be the crystallization of advanced craftsmanship.




你可以把你喜欢的产品带到谈判展台,仔细检查。展台是一个用白钢和塑料装饰的中性空间,天花板上的表面发射使你可以专注于产品的细节。各种材料的强烈对比使每个空间独立出来。而通过这些 "空间 "体验,你可以感受到与 "时间 "概念的联系。
You can bring your favorite products to the negotiation booth and carefully examine them. The booth is a neutral space finished with white steel and plastic and surface emission from the ceiling makes you can concentrate on the detail of the product. The strong contrast of various materials makes each space stand out independently. And through those "space" experiences, you can feel the connection with the concept of "time".



















Architects: Kenta Nagai Studio
Area: 71 m²
Year: 2021
Photographs: Kenta Hasegawa
Lead Architect: Kenta Nagai
Architects:Kenta Nagai Studio
City:Shinjuku City
Country:Japan