这个项目是对墨西哥城Condesa社区的一个公寓进行改造。该公寓位于一栋七十年代的建筑中。公寓的原始平面图和布局导致空间感觉很暗,而且有很多浪费的地方。该公寓有许多在最初的项目中被忽视的优点,例如该地区罕见的林间景观、通风和光线。
This project is the remodeling of an apartment in the Condesa neighborhood in Mexico City. The apartment is located in a building from the seventies. The original floor plan and layout of the apartment cause the space to feel dark and with many wasted areas. The apartment has many advantages that were ignored in the original project, such as the wooded view, ventilation, and light that are rare in the area.




原有公寓的装修和材料是七十年代的材料,镶木地板,厨房的水磨石,以及天花板和墙壁的灰泥和纹理。该公寓的设计和改造项目是基于产生开放空间的原则和概念来思考的,利用采光和通风部门提供的优势,创造更多可用的和模块化的空间,允许灵活使用。
The finishes and materials of the original apartment were seventies materials, parquet, and terrazzo in the kitchen as well as stucco and textures on ceilings and walls. The design and renovation project of the apartment was thought based on the principles and concepts of generating open spaces, taking advantage of the advantages offered by the light and ventilation department, and creating more usable and modular spaces that allow flexibility in use.

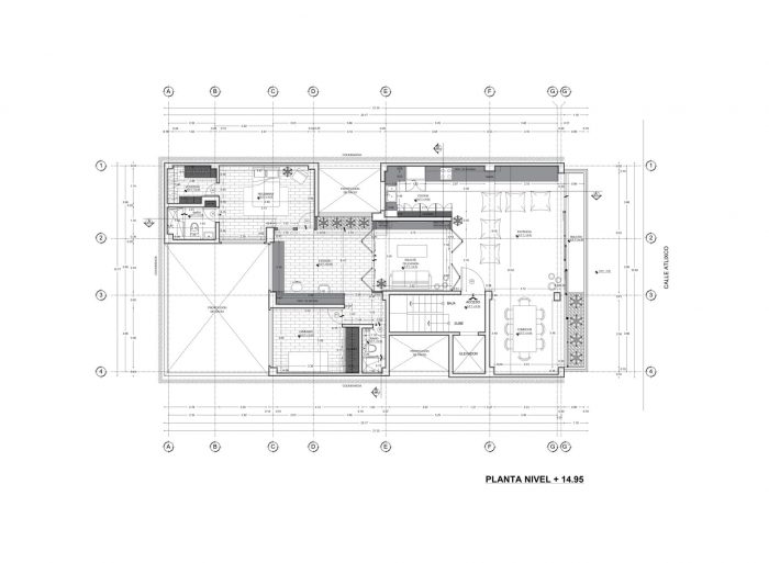
为了实现这一目标,我们采用了基于柱子和网状板的结构,这为改变内部分布提供了机会,因为没有墙是承重的。有了这个,首先要做的是消除和重新分配空间,以优先考虑光线从公寓的一侧进入另一侧。
To achieve this, a structure based on columns and a reticular slab was used, which provides the opportunity to change the internal distribution since no wall is load-bearing. With this, the first thing that was done was to eliminate and redistribute spaces to prioritize the entry of light from side to side of the apartment.


产生了一个空间,作为一个灵活的区域,将公寓的私人区域和更多的公共区域分开,这个空间被设计成折叠门,使空间有三种模式。1)私人区域的一部分,2)公共区域的一部分,以及3)缓冲两个部门区域的一个开放区域。公寓的夹层高度非常紧张,为了产生更大的振幅和材料的和谐,决定拆除整个公寓的顶灯。有了这个,它的高度增加了7厘米。
A space was generated that serves as a flexible area that divides the private area from the more public area of the apartment, this space was designed with folding doors that allow the space to have three modalities. 1) part of the private area, 2) part of the public area, and 3) an open area that buffers both areas of the department. The mezzanine height of the apartment was very tight, with the purpose of generating greater amplitude and harmony in materials, it was decided to remove the ceiling lights throughout the apartment. With this, it gained 7cm in height.

公寓的原始布局包括一个阳台,这个阳台相当狭窄,几乎无法使用。为了给这个区域更大的宽度,我们决定把公寓看作是一个露台,把室内和阳台上的相同地板装饰整合在一起,并为果树分配一个专用区域。在室内,我们也决定融合这种室内/室外混合的想法,包括室内的花盆,以及使用玻璃和允许光线通过的材料。
The original layout of the apartment includes a balcony, this one is quite narrow and hardly usable. To give this area greater breadth, it was decided to think of the apartment as a terrace, integrating the same floor finishes inside and on the balcony, as well as allocating an exclusive area for fruit trees. Inside, it was also decided to merge this idea of mixing interior/exterior, including interior planters as well as using glass and materials that allow light to pass through.


对于饰面,我们的想法是围绕自然或基本材料,无需进一步处理,并给予 "原始 "的外观,但同时也是优雅和微妙的。主要使用裸露的混凝土、木材、玻璃和生锈的钢材。对于墙壁,在餐厅的情况下,决定做出一个不寻常的决定,为了软化其他材料的硬度,如地板和天花板上的混凝土,并使空间更受欢迎,放置了窗帘,产生一个微环境,给人宽敞的感觉。
For the finishes, the idea was around natural or essential materials without further treatment and giving that “raw” appearance but elegant and subtle at the same time. Mainly using exposed concrete, wood, glass, and rusty steel. For walls, in the case of the dining room, it was decided to make an unusual decision and to soften the hardness of the other materials such as concrete on the floor and ceiling, and make the space more welcoming, curtains were placed that generate a microenvironment and give the feeling of spaciousness.



该部门成功地将不同的空间以一种微妙的、开放的方式整合在一起,并具有非常谨慎的优雅。
The department managed to integrate the different spaces in a subtle, open way and with a very discreet elegance.




Architects: Eterea Studio
Area : 160 m²
Year : 2021
Photographs :Rafael Gamo
Manufacturers : AutoDesk, Artisan, Trimble, duchateau flooring
Lead Architect : Ricardo Vainer
City : Mexico City
Country : Mexico