埃因霍温科技大学(TU/e)翻新后的主楼Atlas是一座获奖的、智能和可持续发展的大学建筑,已于2019年3月21日正式启用。通过将最先进的材料与最佳的再利用相结合,由V建筑团队、Van Rossum、Valstar Simonis和Peutz将六十年代的坚固的阿特拉斯大楼改造成了一个轻质节能的大学建筑。它现在是世界上最可持续的教育建筑之一。
Atlas, the renovated main building of Eindhoven University of Technology (TU/e), is an award winning, smart and sustainable university building, which has officially been opened on the 21st of March 2019. By combining state-of-the-art materials with optimal reuse, the robust Atlas building dating from the sixties is transformed into a light and energy efficient university building by Team V Architecture, Van Rossum, Valstar Simonis and Peutz. It is now one of the most sustainable education buildings in the world.



雄心勃勃的翻修工程
阿特拉斯(41.500m²)的改造是将以前相当封闭的TU/e校园大规模更新为具有国际吸引力的开放科学园的一部分。由于文化历史的价值,TU/e决定对Atlas大楼进行改造。该建筑建于1959-1963年,最初由建筑师S.J. van Embden设计。
Ambitious Renovation
The renovation of Atlas (41.500m²) is part of a large-scale renewal of a previously rather closed-off TU/e Campus into an open Science Park of international allure. Due to cultural-historical value, TU/e decided to renovate the Atlas building. Built in 1959-1963, the building was originally designed by architect S.J. van Embden.

该建筑需要更新,在设计、安装和功能方面都不符合当前的质量要求。它现在容纳了两个学院的演讲室和学习区、一个餐厅、展览空间以及几个服务部门和执行委员会的工作空间。阿特拉斯是荷兰第一个获得英国建筑性能评估体系可持续发展最高分 "杰出 "的翻新教育建筑,并在2017年获得国际建筑性能评估体系奖。
The building was in need of renewal and did not meet the current quality requirements in terms of design, installations and functionality. It now houses lecture rooms and study areas for two faculties, a restaurant, exhibition space and work spaces for several service departments and the Executive Board. Atlas is the first renovated education building in the Netherlands to gain the highest BREEAM sustainability score 'Outstanding' and, in 2017, won an International BREEAM Award.



高科技的外墙
一个特别的设计元素是新的幕墙,由高度绝缘的三层玻璃组成,内部有高科技涂层的遮阳帘。该幕墙的设计是为了在白天阻挡热量,在晚上提供额外的绝缘。通过使用最先进的材料,这个 "简单 "的幕墙与降低的太阳百叶窗相当于一个绝缘的空心墙的热值。同样特别的是该建筑的 "夜色"。在夏季的夜晚,落地窗向外滑动,以冷却和自然通风。
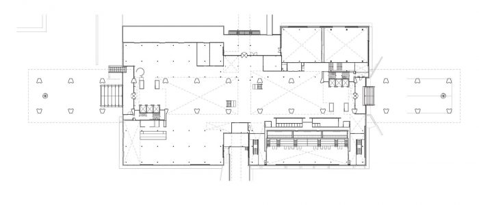
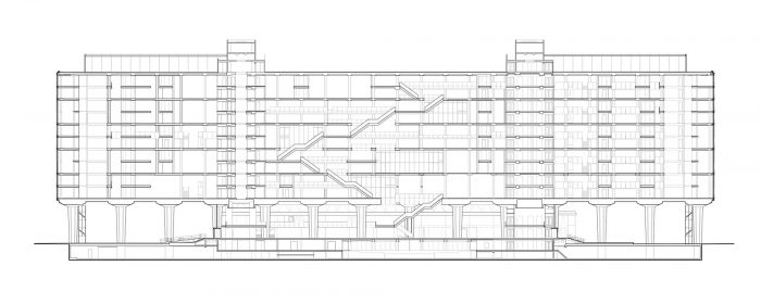
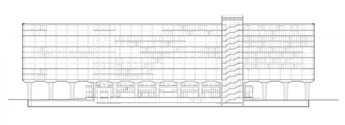
Red Connector
The most striking spatial intervention is formed by the new central red staircase, which zigzags from the ground floor, through the concrete construction, to the top of the building. The staircase follows as many existing voids in the concrete floors as possible, therefore the structural impact is cleverly limited. All shared facilities, such as the lecture halls and practical rooms, are positioned alongside the red staircase. It makes this seemingly simple intervention the new heart of the building. The staircase connects the campus to the two faculties which are housed on either sides of the building.

生活实验室
为了实现可持续发展的宏伟目标,设计团队与TU/e的智能照明研究所的研究人员紧密合作。该建筑是一个研究创新和可持续技术的生活实验室。整个建筑配备了智能和高效的LED照明,配置在相对较低的光照条件下:实施智能节能灯(SEL)系统。
Hi-tech facade
A particularly special design element is the new curtain wall consisting of highly insulating triple glazing with interior sun blinds with a hi-tech coating. The facade is designed to keep the heat out during the day and provide extra insulation at night. By using state-of-the-art materials this ‘simple’ curtain wall with lowered sun blinds equates to the thermal values of an insulated cavity wall. Equally special is the building’s ‘night flush’. During summer nights the floor-to-ceiling windows slide outwards to cool and naturally ventilate the building.

这是一个开放的系统,允许新的、针对项目的应用,为学术研究收集数据,减少能源使用。用户可以通过一个应用程序自己调整灯光设置或室温,或预约会议室。部分原因是由于使用这种智能建筑系统进行研究,Atlas被认为是可持续改造和创新的国际范例。
Living Lab
To achieve the high ambitions regarding sustainability the design-team worked closely with researchers from the Intelligent Lighting Institute of TU/e. The building acts as a Living Lab for research on innovative and sustainable technologies. The whole building is equipped with smart and efficient LED lighting, configured at a relatively low light level condition: the implemented Smart Energysaving Light (SEL) system.

这是一个开放的系统,允许新的、针对项目的应用,为学术研究收集数据,减少能源使用。用户可以通过一个应用程序自己调整灯光设置或室温,或预约会议室。部分原因是由于使用这种智能建筑系统进行研究,Atlas被认为是可持续改造和创新的国际范例。
It is an open system which allows new, project-specific applications to collect data for academic research and reduce energy use. Users can adjust the light settings or room temperature themselves through an app, or make reservations for a meeting room. Partly due to the use of this smart building system for research, Atlas is regarded as an international example of sustainable renovation and innovation.

两个新的改造项目
埃因霍温科技大学几年来一直致力于校园的大规模更新。最近有消息称,V建筑团队已被选为另外两座校园建筑--最初也是由Van Embden设计的--"Laplace"(1972年,12.000 m²)和 "Gemini"(1974年,34.000 m²)的翻新建筑师。
Two New Renovations
Eindhoven University of Technology has been working on a large-scale renewal of the campus for several years now. Recently it has been published that Team V Architecture has been selected as the architect for the renovation of two more campus buildings - also originally designed by Van Embden - ‘Laplace’ (1972, 12.000 m²) and ‘Gemini’ (1974, 34.000 m²).



















Architects: Team V Architecture
Area : 42000 m²
Year : 2019
Photographs :Jannes Linders / Egbert de Boer
Manufacturers : DURLUM, Desso, Forbo Flooring Systems, Rockfon, Schüco, Ahrend, Camira, Custom made furniture, De Vorm, Hunter Douglas, Inteco, Leoxx, Parthos, Qbiq Systeemwanden, Rollercate
Lead Architects : Do Janne Vermeulen, Fleur Kay
Building Physics Engineer : Peutz
Sustainability Consultant : Peutz
Construction Engineer : Van Rossum
Design Team : Marthe Melief, Joeri Apontoweil, Onno van Ark, Alexia Burgering, Matthijs Witbraad, Esther Ebbe, Robert Chamski
Clients : TU Eindhoven
Building Installations Engineer : Valstar Simonis
Building Physics Engineer And Sustainability Expert : Peutz
Building Installations Engineer : Valstar Simonis
City : Eindhoven
Country : The Netherlands