作为奥贝维利耶市 "Auvry Barbusse "区城市改造的一部分,建筑公司Bouygues Immobilier于2011年1月发起了一个建筑竞赛,以管理39个多户住宅、3个工场和一个停车场的项目管理。建筑师们被要求在建筑结构中使用木材,并与适当的承包商合作,以便在早期设计中使用他们的技术和施工流程。
As part of the urban renewal of the « Auvry Barbusse » district, in the city of Aubervilliers, the construction company Bouygues Immobilier launched in January 2011, an Architecture competition for the project management of 39 multi-family housings, 3 craftshops, and a carpark. The architects were given the constraint of using wood for the building structure and to team up with the appropriate contractor in order to work from the early design with their know-how and construction processes.



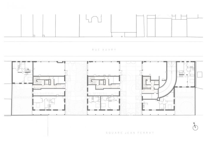
场地。Auvry Barbusse区占地1.5公顷。项目地点位于25/31 Rue Auvry。它被以前的工业厂房所占据。该地块的形状在街道一侧提供了一个长长的门面,适合商业场所,另一侧直接通往Jean Ferrat广场,提供花园的景观。建筑公司Tectone与Houot公司合作的木制框架在2011年5月的竞争中获胜。该项目尊重城市规划师(TOA architects - Olivier Meheux)的总体规划。该设计从郊区房屋和 "faubours "人行道中获得灵感。因此,有三座建筑和两条人行道,允许从街道到花园的交叉,并提供了一个巨大的便利性。
The Site: The Auvry Barbusse district covers 1.5 hectares. The project site is located at 25/31 Rue Auvry. It was occupied by former industrial premises. The shape of the site provides a long facade linear on street side, suitable for commercial premises, and a direct access to the Square Jean Ferrat on the other side, offering views on the gardens. The Architecture firm Tectone associated with the Houot Company for wood framing wins the competition in May 2011. The project is respectfull of the master plan of the urban planners (TOA architects - Olivier Meheux). The design takes inspiration from suburban houses and « faubours » walkways. Thus, there are three buildings and two walkways allowing crossings from street to gardens and offering a great convivality.

底层。人们从北部的Rue Auvry进入大楼。通过两条走道可以进入3栋楼的入口大厅。通往房屋的通道是逐渐提供隐私的:当从街上进入时,你会发现一个入口门开在一个院子里,通向当地的手工业者。然后穿过一条种植的人行道,直到第二道门,最后打开一个私人花园,通往入口大厅。
The ground floor: One enters the building from the Rue Auvry at the north. Two walkways allows to access the entrance halls of the 3 buildings. The access to the housings is gradually offering privacy: when entering from the street, one finds an entrance gate opening on a courtyard and leading to the local craftshops. Then one goes through a planted walkway, untill a second gate finally opens on a private garden leading to the entrance halls.

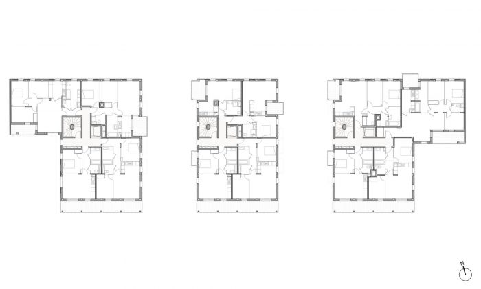
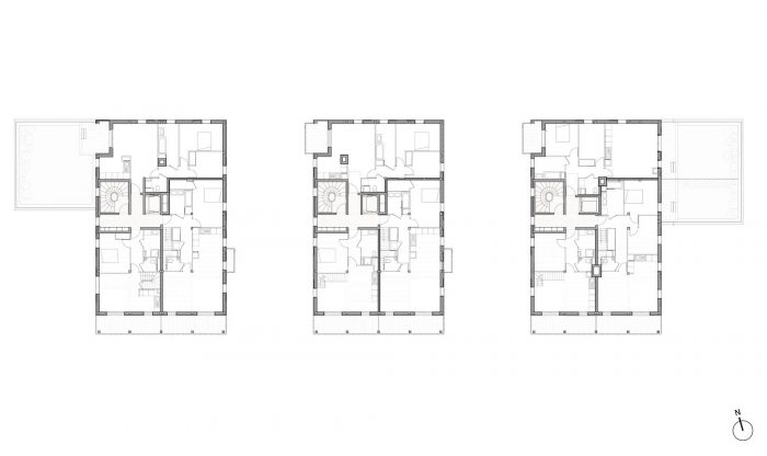
住房。该项目共有4层,39个单位,包括:3个单间,9个一室一厅,17个两室一厅,7个三室一厅和3个四室一厅。每个单位都提供双倍或三倍的朝向,并至少有一个阳台或露台。外景保证了每个人的隐私,从阳台可以看到南向的公共花园。
The Housings: The operation has 4 floors and 39 flats, including : 3 studios, 9 one-bedroom flats, 17 two-bedrooms flats, 7 three-bedrooms flats, and 3 four-bedrooms flats. Each flat offers a double or triple orientation, and has at least one balcony or terrace. The outviews guarantee privacy to everyone and from the balconies one gets south orientated views on the public garden.

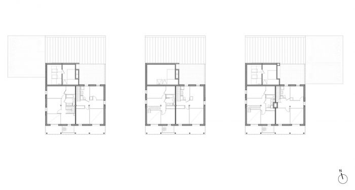
每层有3到4个单位,最后一层是大型的两层楼单位。
There are 3 to 4 flats at each level, and the last floor is dedicated to large two-storey flats.

结构。建筑结构是混合的:混凝土和木材。整个基础设施、底层以及楼梯和电梯的核心是由混凝土制成的。底层的外部装修是非常整洁的白色混凝土,包括高效的保温层。顶层的两层公寓的建筑完全由木材制成(柱子、横梁、托梁、地板......)。
The Structure: The building structure is mixed: both concrete and wood. The entire infrastructure, the ground floor and the stairs and lifts cores are made out of concrete. The ground floor has an exterior finish of a very neat white concrete, including efficiant thermal insulation. The construction of the two-storey flats at top floors is entirely made of wood (columns, beams, joists, floors, ...).

建筑设计。外墙的木质框架是在工厂里预制的。然后,它们被覆上无需处理的松木,因此,随着时间的推移,会有自然的饰面。双层外墙具有保护作用:遮挡南方的光线,并在夏季保持舒适的温度;同时也确保了外部的隐私。木质百叶窗滑入双层皮的缝隙中,以保护百叶窗免受恶劣天气的影响。
The Architectural Design: Wood frames of the facade are pre-made in factory. Then they are cladded with a no-treatment pine, giving therefore natural finish that will evolve over time. The double skin has a protective role : shading from the southern light and maintaining a comfortable temperature during summer; as well as ensuring privacy from the outside. The wooden shutters slide into the gap of the double skin, in order to protect the shutters from bad weather.

环境承诺。该项目符合所有环境要求和绿色标签的规范。例如:雨水被收集在位于地下室停车场坡道下的回收池中,允许为卫生和花园供水。该项目还利用了多个方向的优势,以提供最大的自然光。
The Environmental commitment: The project meets all environmental requirements and specifications of Green Labels. For instance : rainwater is collected in a recovery tank, located underneath the carpark ramp at basement floor, allowing water supply for sanitary and gardens. The project takes also advantage of the multiple orientations to provide maximum of natural light.










Architects: Tectône
Year: 2015
Photographs: Christophe Demonfaucon, Lucile Chombart de Lauwe
Manufacturers: SORIBA
Main Structure: VFB construction, Arnaud Derrien, José Mendes
Construction Management: B3P, Philippe Porcher, Attila Cinal
Wood Framing And Cladding:Charpente Houot, Philippe Neurrisse, Alexandre Rei
Roof Covering, Plumbing, Eating, Ventilation:UTB, Arnaud Bonazzoli, Corentin Provost
Partition Walls And Wood Finishing:Euromib (Marcel Fernandez)
Electricity:IDEE, Philippe de Almeida
Metalwork:David Guiavarch, Sucla BRL
Gardens And Pipeworks:Dufaÿe Mandre, Aurélien Jessionnesse
Engineers:Matthieu Esteve, Caroline Imbert, Quentin Antoine, Buchet, Elithis, Eléments Ingénieries
Client:Bouygues Immobilier, Tristan Lucchetti, Xavier Bodeau, Laurence Corda, Clarisse Delon, Emmanuel Ducloux
Usable Area:2450 m²
Gross Area:3200 m²
Budget:5,700,000 EUR (VAT excluded)
Calendar:2011 - 2015
Architect In Charge:Pascal Chombart de Lauwe, Etienne Chevreul-Demas, Audrey Alcindor
Partition Walls And Wood Finishing:Euromib (Marcel Fernandez)
City:Aubervilliers
Country:France