位于高海拔地区(海拔1200米),Las Navas del Marqués的特点是冬季寒冷,夏季温和,这决定了它的年平均温度很低(10°C)。
Located at a high altitude (1200 meters above sea level), Las Navas del Marqués is characterized by cold winters and mild summers, which determine a low annual average temperature (10 ° C).



利用圣米格尔山谷的景色和最好的朝向(西南),房子向景色开放,并尽可能向北关闭,避免了能源损失。
Taking advantage of the views of the valley of San Miguel coincident with the best orientation (south west), the house opens onto the views and closes as much as possible to the north, avoiding energy losses.

该地块只有800平方米,坡度为33%,周围有三个邻居,这种情况更加突出了项目的单一方向,并提出了一个紧凑的布局,占据了地块的中心,目的是为了最大限度地利用户外空间。
The plot, only 800m2 with a steep slope of 33%, is surrounded by three neighbors, a circumstance that highlights even more the single orientation of the project and proposes a compact layout, occupying the center of the plot with the intention to maximize the outdoor spaces.

业主是一对有两个女儿的夫妇,他们委托我们设计一个比例可控的周末休闲场所,但也能舒适地容纳整个家庭的传统动态。
The owners, a couple with two daughters, commissioned a weekend retreat of manageable proportions but that could also comfortably accommodate the conventional dynamics of an entire family.

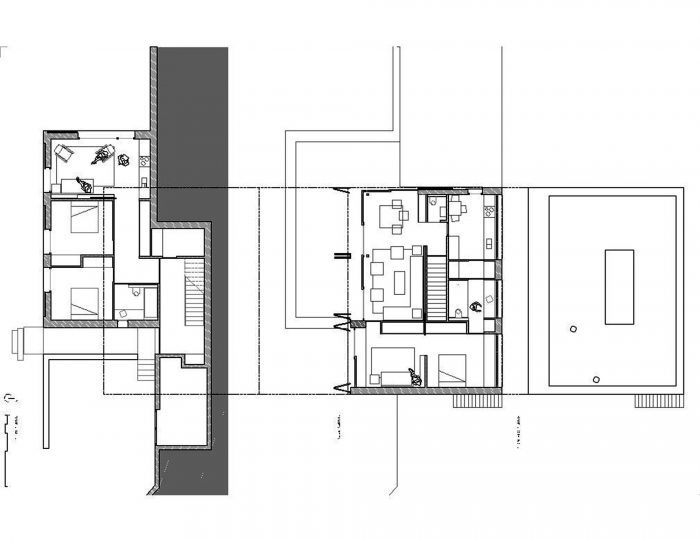
然后,我们提出了两个堆叠的方案:父母在楼上的撤退和女儿在一楼的独立公寓。通过给每个核心分配一个有区别的外部空间和一个独立的入口,场地的容量增加了一倍,同时所有的空间都被组织在地块内。
We then propose two stacked programs: the parents retreat upstairs and a separate apartment on the ground floor for the daughters. By assigning to each core a differentiated exterior space and a separate entrance, the capacity of the site is doubled while all the spaces are organized in the plot.

这两个住房单元,随着时间的推移,当它们的覆层变暗和植物悬挂在阳台上时,将明确地融入地面,从外部有独立的入口,但通过一个内部楼梯沟通,使它们成为一个单一的住宅。两个独立的世界得益于两个不同的外观。房子在地面上错落有致,以便在其中避难,利用所有主要区域的景观,并对着街道呈现很少的外墙。
The two housing units, which will be definitively integrated into the ground over the years when their cladding darkens and plants hang from their terraces, have independent access from the outside but communicate through an internal staircase that makes them into a single residence. Two separate worlds benefit from two different exteriors. The house is staggered on the ground to take refuge in it, to take advantage of the views in all the main areas, and to present little facade towards the street.

在夏天,房子在较大的开口上有可操作的格子,并辅以滑动门系统,模糊了内部和外部之间的界限,同时允许交叉通风,从而保护了下午的阳光。在这两层围墙之间是一个过渡空间,以走廊或木栅的方式,允许在温暖的日子里将客厅延伸到露台上,并邀请用户对这两层围墙进行游戏式操作,实现多种空间配置。
During summer, the house is protected from the afternoon sun by operable lattices on the larger openings, complemented by a system of sliding doors that blur the boundary between inside and outside while allowing cross ventilation. Between the two layers of enclosure is a transitional space in the manner of a hallway or loggia that allows to extend the living room onto the terrace during warmer days, and invites the user to operate the two layers playfully, achieving multiple spatial configurations.

这个地方的精神,配备了双核住宅的新存在,驯服了周围的景观,淡化了邻居的存在,寻求创造一个休息和沉思的空间。
The spirit of the place, equipped with the new presence of the bi-nuclear home, tames the surrounding landscape and dilutes the presence of neighbors in seeking to create a space for rest and contemplation.



Architects: Claudia Olalla Gil
Year : 2014
Photographs :Javier Callejas
Collaborator : Ramón Bermúdez Obregón
Technical Architect : Miguel Ángel Martín Melgar
Structures : Alberto Sánchez
Building Services : Salvador Agramunt
Construction : Navas 3000 S.L
City : Las Navas del Marqués
Country : Spain