住所
Haus B位于德国美因河畔的法兰克福附近的Dreieich镇。在这里,房子被嵌入到一个相当典型的郊区住宅区中,该住宅区是在20世纪60年代开发的。今天,这个住区既描述了:战后德国所谓的 "经济腾飞 "时期日益富裕但相当保守和同质化的郊区社会的美学;也描述了自20世纪90年代以来对自己房子的美学的严重多元化和个人主义做法,表现为一种相当折衷的拼贴风格。
Settlements
Haus B is located in the town of Dreieich, within the vicinity of Frankfurt am Main, Germany. Here the house is embedded in a quite typical suburban housing settlement that had been developed during the 1960s. Today, this settlement depicts both: the aesthetics of an increasingly wealthy, yet rather conservative and homogeneous suburban society during the so-called “Wirtschaftswunder” of post-war Germany; and a heavily plural and individualist approach towards the aesthetics of one’s own house that manifests itself in a rather eclectic collage of styles since the 1990s.





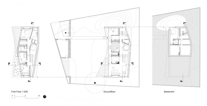
几何学
Haus B是基于严格有序的几何关系,允许一定程度的弹性,以应对客户、地方或建筑当局的不同需求。虽然它的构思是对地方的仔细解读,但房子也需要对其所在地的相当技术性的影响因素做出反应。该建筑从西北向东南延伸为一个细长的体量,并利用太阳能增益,同时保护花园免受其北侧的嘈杂街道的影响。这个略微变形的体量采用了邻近的屋檐线的方向和相对较低的高度。然后,它的中心被抬高,以便柔和地转换邻近屋顶的倾斜度,并将其与明确的现代平屋顶的优势相融合。
Geometry
Haus B is based on strictly ordered geometrical relations that allow for a certain degree of elasticity in order to respond to the different demands of, the client, the place, or the building authority. While it is conceived of a careful reading of the place, the house needs to respond to the rather technical influencing factors of its site as well. The building stretches as an elongated volume from north-west to southeast and exploits solar gains while it protects the garden from the noisy street at its north side. The slightly deformed volume adopts the directions and comparably low heights of the neighboring eave-lines. It is then raised at its center in order to softly translate the obliqueness of the neighboring roofs and blend them with the advantages of an explicitly modern flat roof.

房屋和花园
房子的南面立面必须同时解决几个重要而又矛盾的功能:它必须具有吸引力和代表性,因为它组织了一个日常家庭生活的休闲共处。在这里,对不同外部空间的探索,如前门的门廊、扩大邻近起居室的露台、完善主卧室的屋顶露台和儿童房前的屋顶花园,都被用于这两个方面:它加强了房子和花园的联系,同时也定义了建筑的 "格式塔"。
House and garden
The house’s south-façade has to solve several important, yet contradictory functions at once: it has to be inviting and representative as it organizes the casual cohabitation of an everyday family-life. Here, the exploration of different outside spaces, such as the porch that preludes the front-door, the terrace that enlarges the adjacent living-room, the roof-terrace that completes the master bedroom and the roof-garden in front of the children’s rooms is used for both: it strengthens the connection of house and garden as well as it defines the building’s ‘Gestalt’.

室内设计
Haus B的内部与这个过渡区紧密相连。从这里开始,几个著名的住房类型,如沿玻璃外墙的围栏,相当功能空间的网格排列,或带有画廊和开放式楼梯的双层空间--所有这些都在一个分层上延伸--融合成一个相当丰富和连续的生活景观。
Interior
The interior of Haus B is closely connected to this zone of transition. From here several well-known housing-typologies, such as an enfilade along the glass-façade, a gridded array of rather functional spaces, or a double-height space with a gallery and open stair – all stretched across a split-level – blend to form a comparably rich and continuous living-landscape.

生态学
Haus B的构思和装备超过了德国最新的节能法规(EnEV)的要求。它朝向南/西南方向,以便在冬季获得尽可能多的太阳能,而在夏季,凸出的屋顶和可调节的帆布百叶窗可以保护室内免受阳光照射。接下来,为了应用耐用材料,所有的外墙和屋顶表面都有高达20厘米厚的隔热层。所有的窗户至少都是双层玻璃的。由太阳能电池板驱动的热泵为房屋提供暖气和温水供应。
Ecology
Haus B has been conceived and equipped to exceed the requirements of the latest German energy saving regulations (EnEV). It has been directed towards south/south-west in order to gain as much as possible solar energy during winter, whereby the projecting roofs and adjustable canvas blinds protect the interior from the sun during summertime. Next, to the application of durable materials all exterior wall and roof surfaces contain up to 20cm thick layers of thermal insulation. All windows are at least double-glazed. A heat pump driven by solar panels provides the house’s heating and warm water-supply.













Architects: one fine day
Area : 320 m²
Year : 2016
Photographs :Roland Borgmann
Manufacturers : Gutmann, Schöck, Bauwerk Parkett, Kebony, Warema, Via
Structural Design : Wassink Ingenieure, Jürgen Scholte-Wassink
Tender And Site Supervision (Lph6 8) : Ulrike Thies, Freie Architektin, M.Sc. IPM
Executive Architect : Ulrike Thies
Design Architect : Daniela Hake, Holger Hoffmann, Hajdin Dragusha, Janis Millard, Gabriele Gölzer
City : Dreieich
Country : Germany