Haus B位于德赖艾希镇,位于德国法兰克福附近。在这里,房子建在了一个在20世纪60年代开发的典型的郊区住宅区。今天,这个解决方案描绘了两个:在战后德国所谓的“经济新闻”期间,一个日益富裕但相当保守和同质的郊区社会的美学; 自20世纪90年代以来,对自己家的美学进行了大量的多元化和个人主义的处理,体现了一种相当折衷的风格拼贴。
Haus B is located in in the town of Dreieich, within the vicinity of Frankfurt am Main, Germany. Here the house is embedded in a quite typical suburban housing settlement that had been developed during the 1960s. Today, this settlement depicts both: the aesthetics of an increasingly wealthy, yet rather conservative and homogeneous suburban society during the so-called “Wirtschaftswunder” of post-war Germany; and a heavily plural and individualist approach towards the aesthetics of one’s own house that manifests itself in a rather eclectic collage of styles since the 1990s.















Design: One Fine Day
Date: 2013-16
Place: nearby Frankfurt/Main, Germany
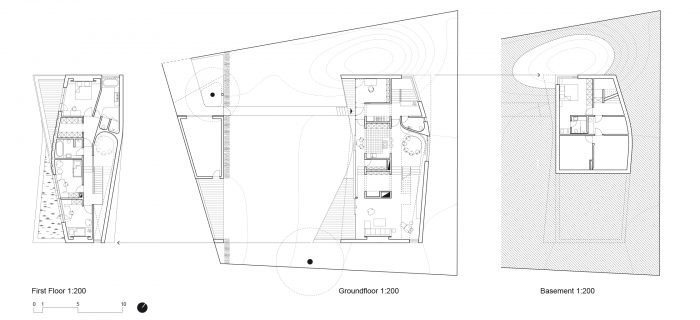
Size: ~ 296 m² net area
Client: private
one fine day team: Daniela Hake, Holger Hoffmann, Janis Millard, Hajdin Dragusha, Gabriele Gölzer
Executive architect: Ulrike Thies, Freie Architektin, M.Sc. IPM
Structural design: Wassink Ingenieure, Jürgen Scholte-Wassink
Status: built
Photos: Roland Borgmann