裸房是两个建筑师和两个孩子的房子。
我们自己的房子的设计是一个持续了大约6年的过程。
Bare house is a house of two architects and two children.
The design of our own home was an ongoing process of about 6 years.



在那段时间里,我们尝试了不同的形式、尺寸、材料、细节,都写在纸上,但由于没有时间投入到设计、预算等方面,从未实现。考虑到在这段时间里,我们在其他项目上获得了很多经验,并与客户进行了数小时的交谈,倾听他们的困境,我们变得更加了解自己的需求,我们的价值观也变得越来越清晰了。
In that time we tried different forms, sizes, materials, details, all on paper and never realized due to the lack of time to commit ourselves to the design, budget etc. Considering that during that time we gained a lot of experience on other projects and spent hours of conversations with clients, listening to their dilemmas, we became more aware of our own needs and our values became clearer and clearer.

在这个时间点上,我们终于感觉到准备好了建设,这是专业和个人的结合,明确了我们的梦想是什么,我们需要什么。
The point in time in which we finally felt ready to build was a combination of both professional and personal clarity as to what we are dreaming of and what we need.

在这块土地上住了多年的小房子,并在两棵大山核桃树和许多其他果树旁体验了生活,我们知道新房子将成为现有花园的一部分,而花园在我们之前已经存在了很长时间。绿色的环境、理想的日光和来自地中海附近的西风是我们的出发点。
After living on the plot in a small house for many years, and experiencing life by 2 large pecan nut trees, and many other fruit trees, we knew the new house would become part of the existing garden which has been there long before us. The green surroundings, ideal daylight and western breeze from the close by Mediterranean were our starting point.

材料的选择是一个非常坚定的议程,在材料的裸露、基本状态下工作;在它们最真诚的状态下庆祝形式和结构。对我们来说,也是为了庆祝与基础良好的花园的和谐和微妙的结合。
The choice of materials was a very determined agenda to work with materials at their bare, basic state; celebrating form and structure in their most sincere condition. Celebrating also what is to us, a harmonious and subtle joining with the well-grounded garden.

同样的材料被带到内部,以模糊内部和外部之间的界限。
The same materials are carried through to the inside to blur boundaries between inside and outside.

混凝土和砌块是以色列最常见的建筑材料和建筑技术。从实用的角度来看,原始饰面的风化和审美都是值得尊重的,不像效果图那样总是需要翻新。我们非常喜欢当地的材料,当渲染剂覆盖一切时,我们总是感到失望。
Concrete and blockwork are the most common building materials and building techniques in Israel. On a practical note, the raw finishes weather respectfully and aesthetically unlike render that always needs refurbishment. We love the local materials a lot and are always disappointed when render covers everything.

房子的高度来自于街区的尺寸,以及对人与空间、街道与房子、土地与树之间的比例的微妙的寻求。
The height of the house is derived from the dimensions of the blocks and of a subtle search for powerful harmony in scale between people and space, between the street and the house, between the land and the tress.

一个薄薄的混凝土屋顶盘旋在中心空间之上,允许人们不断地瞥见天空和树顶,并研究所选择的 "重型材料 "的重量问题。
A thin concrete roof hovers above the centre space allowing a constant glimpse at the sky and tree tops and examines the question of weight of the chosen ‘heavy materials’.

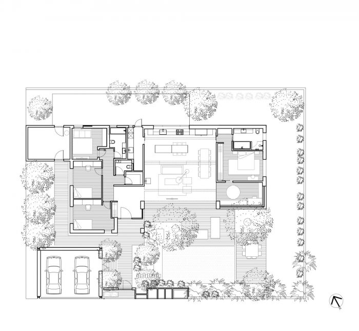
在公共区域,一个两面的铁制图书馆在厨房和休息室之间交叉和分离,没有破坏天花板。 图书馆的设计有目的地在两边之间创造了两个 "门"。
In the public area a two-sided iron library crosses and separates between kitchen and lounge without disrupting the ceiling. The design of the library purposefully creates two ‘gates’ between the two sides.

对一个家庭的空间的质疑和对程序性布局的挑衅,我们决定将儿童区和我们的区域划分到房子的两端,而每个人的集合点在中心,休息室、厨房和餐厅就在树的前面。我们的愿望是,休息室就像一个庭院;一个封闭的花园,一个房子里的花园的延伸。每个区域都有自己的屋顶,这使得房子的整体跨度变小了。
Questioning the space for a single family and provoking the programmatic layout, we have decided to split between the children’s area and our area to the ends of the house while the meeting point for everybody is in the centre, where lounge, kitchen and dining are right in front of the trees. The desire was that the lounge would act like a court yard; An enclosed garden, an extension of the garden inside the house. Each area is defined by its own roof which defragments and reduces the general span of the house.

房子建在一层,约为树木高度的一半;因此,一方面,它不会压倒树木,但另一方面,当在里面时,它感觉非常宽敞和通风,开口朝向东方和西方,以获得最佳的日光和空气。主屋外有甲板走道和另外两个封闭的服务空间,共同创造了一个室内外交织的小村庄的氛围。
The house is built on one story, about half the height of the trees; So on the one hand it does not overpower the trees but on the other hand, when inside, it feels very spacious and airy, with openings facing east and west for optimum daylight and air. Outside the main house there are decked walkways and two additional enclosed service spaces which together create the atmosphere of a small village interweaving indoors and outdoors.







Architects: Jacobs-Yaniv Architects
Area: 200 m²
Year: 2016
Photographs: Amit Geron
Manufacturers: Bomanite, Habitat, Itamar Carpets, Mody, Tollman’s, Wintec, Yair Doram, Asi Lerner, Avney Tal, Benzi Grinberg, HeziBank, Natura, Pas Normal, Sharony Ceramic, Shita, Tzofit Stone, Vintage
Landscape Design:Itamar landscape Architecture LTD
Audio/Video:Auditon
Construction Contractor:Imad Machmid
Project Management:Oren Sadot
Architects In Charge:Tamar Jacobs, Oshri Yaniv
City:Herzliya
Country:Israel