人们究竟是如何想到在埃门塔尔省的农舍中浇筑大量的混凝土的?当然,人们可以找到几个实际的理由(静力学、热存储质量或类似的东西......)。
How on earth does one come up with the idea of pouring a huge amount of concrete into an Emmental farmhouse? Certainly, one could find several practical reasons (statics, thermal storage mass or the like…).




对我们来说,房子需要一些粗糙和直接的东西,这些东西可以在以前的谷仓和干草棚里建立自己的世界。
For us, the house needed something rough and immediate, something that could build up its own world in the former barn and hayloft.


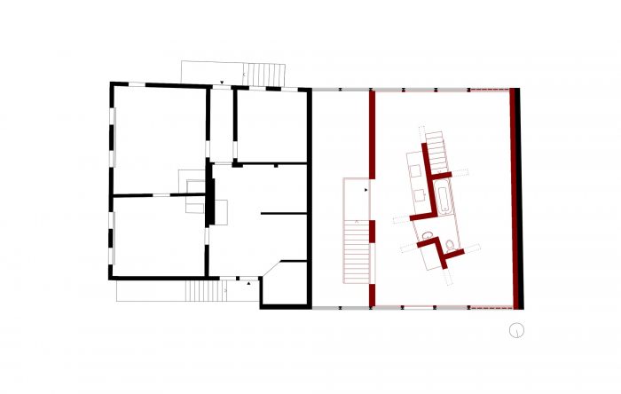
现在,一个混凝土物体贯穿了所有三层楼,并支撑着旧屋顶。除了它的结构性,它还容纳了所有的浴室和厨房住宿,以及橱柜和存储空间。大窗户打开了进入令人印象深刻的阁楼的视野。
A concrete object now cuts through all three floors and supports the old roof. In addition to its structural qualities, it holds all the bathrooms and kitchen accommodations, as well as cabinets and storage space. Large windows open up the view into the impressive attic.
















Architects: Freiluft Architektur
Area : 240 m²
Year : 2015
Photographs :David Aebi
Manufacturers : Arwa, Ebolicht, Jieldé
City:TRACHSELWALD
Country:Switzerland