这座建筑的所有主要部分都是由符合道德标准的再生木材(kaltimber)制成。这16根不均匀的弯曲和扭曲的柱子曾经是加里曼丹/婆罗洲的沼泽地上的道路的一部分。
This building is in all its major components made of ethically sourced reclaimed timber (kaltimber). The 16 unevenly bent and twisted columns were once part of a road leading over swampland in Kalimantan/ Borneo.







这些柱子被排列成一个几乎完美的正方形,其表面的厚重纹理表明了它们的年龄和曾经的生活--这是一种值得保留的回忆。
Arranged in an almost perfect square, The columns' heavily textured surfaces are indicative of their age and former life- a reminiscence to be kept alive.

木材工艺的主要成就,以及基本的设计理念是将这些不均匀的建筑构件纳入墙、楼梯、阳台和滑动门窗的功能框架。建在3层以上,平面图和剖面图加强了围绕这些柱子组成的空间的三维体验。
The major achievement of timber craftsmanship, and thus the essential design idea was to incorporate these uneven building components into a functioning framework for walls, stairs, balconies, and sliding windows and doors. Built over 3 levels, The floor plan and section strengthen the three-dimensional experience of space composed around those columns.

均匀碾压的铁木板成为纯粹设计的空间之间的隔断墙。没有墙打断了建筑的透明周长。隔断的窗户元素以一种有节奏的方式定义了内部和外部之间的关联。窗户的隔断部分被香蕉纤维制成的纸屏所遮挡,这些纸屏是由一位前日本人在巴厘岛手工制作的(Naruse @greenman_bananapaper_studio)
Evenly milled ironwood planks become the partition walls between the puristically designed spaces. No walls interrupt the building's transparent circumference. The partitioned window elements define the correlation between inside and outside in a rhythmic way. Window partitions are in part obscured by paper screens made of banana fiber, handmade in Bali by an ex-pat Japanese (Naruse @greenman_bananapaper_studio)


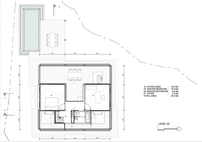
建筑物的表面保持深灰色,以强调耸立在中心位置的空隙中的中央天窗。从这里的夹层旋转到两个屋檐和上面的浴室、主卧室和步入式衣柜。
The building's surfaces are kept dark grey to emphasize the central skylight towering the centrally located void. From here the mezzanine level spins off into the two eaves and the upper bathroom, Master bedroom, and walk-in closet.

所有增加的家具都是由坚固的回收柚木和藤网制成。在颜色上保持淡雅,它们成为对比元素和焦点。在与建筑的网格线相抵消的情况下,它们成为奇特的趣味性物品。
All the added furniture is made of solid recycled teak wood and Rattan mesh. Kept light in color, they become the contrasting element and focal point. Arranged in offset to the building's grid lines, they become oddly placed items of interest.

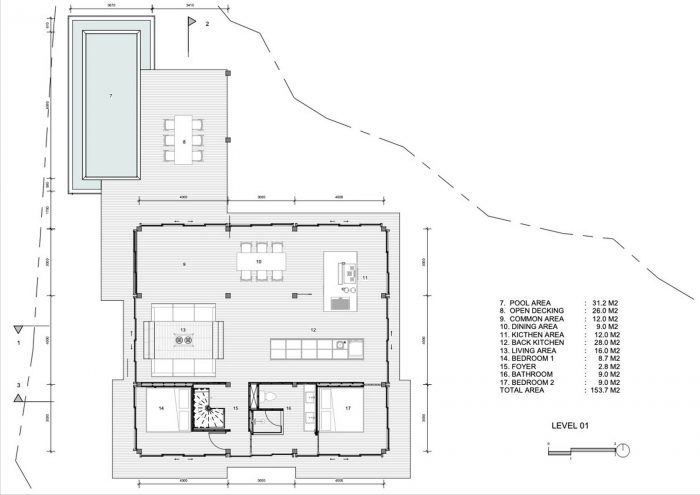
客厅被柱子有节奏地分割开来,下沉式的对话坑构成了中央空间的一个分散的亮点。主甲板与客厅相连,并有桥梁通往高架游泳池,俯瞰附近的南印度洋悬崖边。覆盖在当地采购的略带绿色的花岗岩上,这一元素是对日本温泉文化的致敬,并融入到巴厘岛南部景观的郁郁葱葱的周围。
The living room is rhythmically sectioned by the columns, The sunken conversation pit forms one of the decentralized highlights of the central space. The main deck connects to the living room, and bridges to the elevated swimming pool overlooking the nearby Cliffside of the south Indian ocean. Covered in locally sourced granite of slightly greenish tint, this element is an Homage to Japanese onsen culture and blends into the lush surrounding of south Bali’s Landscape.

很少使用直接照明,以强调宁静和休息的氛围。用香蕉纤维纸设计的吊灯,在其他简单装修的建筑中成为特别关注的对象。
Very little direct lighting was used to emphasize an atmosphere of tranquillity and rest. Pendant lamps designed of banana fiber paper become the objects of special attention within the otherwise simplistically furnished building.


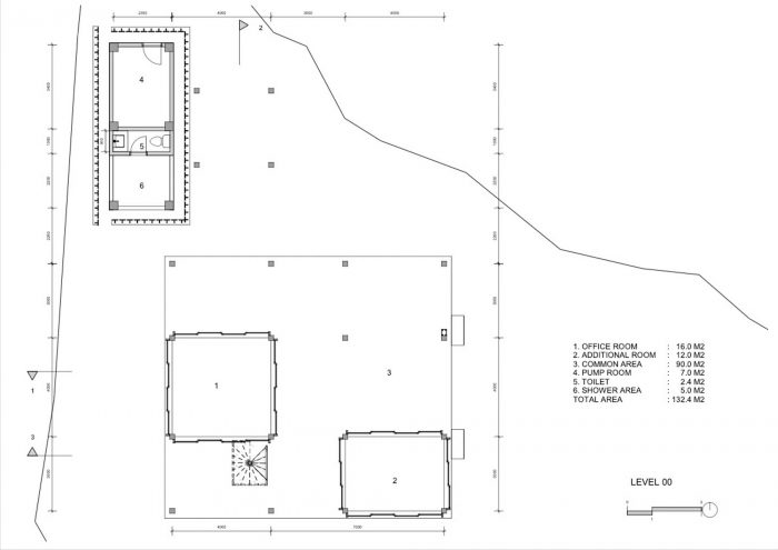
花园设计形成了建筑的正交规划性质的结果。由腐蚀的铁木板制成的花卉和植物垫料,与柠檬草、薰衣草、仙人掌和其他植物组成了一个干燥的花园。花园实际上继续在结构下面,成为位于底层的健身房、办公室和温泉的背景。这座建筑是 "乌鲁瓦图冲浪别墅"(https://uluwatusurfvillas.com)度假村基础设施的一部分。一个越野车道网络连接到度假村附近的主要设施。
The garden design forms the consequence of the building's orthogonal planning nature. Flower and plant bedding, made of eroded ironwood boards, form a dry garden with lemongrass, lavender, cacti, and other plants. The garden virtually continues underneath the structure and becomes a background for the gym, office, and spa located on the ground floor. This building is part of the ‘Uluwatu Surf Villas’ (https://uluwatusurfvillas.com) resort infrastructure. A network of buggy paths connects to the resort's main facilities nearby.





















Architects: Alexis Dornier
Area: 356 m²
Year: 2021
Photographs: KIE
Manufacturers: Furniture Bares, Kaltimber
Lead Architect: Alexis Dornier
Construction: Bali Construction
Collaborators:Uluwatu Surf Villas
Architects:Alexis Dornier
City:South Kuta
Country:Indonesia