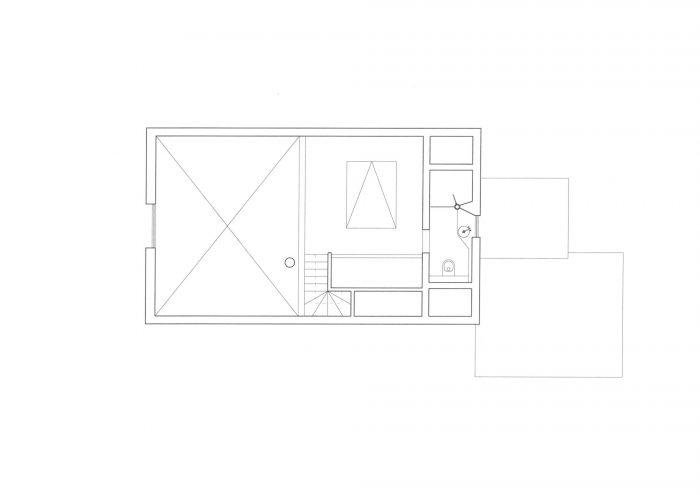
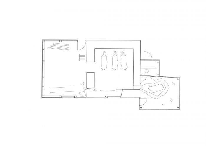
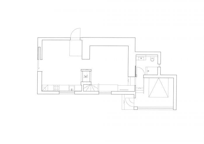
为一个私人客户将挪威海岸上的19世纪小谷仓改造成家庭使用。谷仓是由田野石块、有缺口的原木(laft)和木材框架构成的。该方案在一个古老的农业结构中增加了浴室、厨房、生活空间和两个卧室。
Transformation of the 19th-century small barn on the coast of Norway for a private client into domestic use. The barn is constructed with fieldstones, notched logs (laft), and a timber frame. The proposal adds bathrooms, kitchen, living spaces, and two bedrooms into an old agricultural structure.




改造的主要动力是压缩新的家庭服务,保留建筑的原始特征。建筑中现有的开口最初是用来引进动物、干草和农用设备的。现在它们带来了光线,并被保留为带有凹陷框架的简单的图片窗。
The main driver of the transformation is to compress new domestic services to retain the original features of the building. The existing openings in the building were originally used to bring in, animals, hay, and farming equipment. They now bring in light and are kept as simple picture windows with recessed frames.



构成壁炉的大块砖石也包含了楼梯和储藏室,并取代了破旧的石墙--留下一块石头作为结构支撑和 "发现 "的对象。
The bulky mass of masonry and stone that make up the fireplace also contains stairs and storage and replaces a dilapidated stone wall - leaving one stone in place to act as both structural support and object “as found”.
















Architects: Kastler Skjeseth Architects
Area : 120 m²
Year : 2020
Photographs :Erlend Skjeseth
Manufacturers : AG-Mekanikk
Lead Architect : Erlend Skjeseth
Model Building : Benjamin Sjøberg
Overall Aproach : Amandine Kastler
Carpenter : Ole Grimsland
Stonework : Øyvind Fossdal
City : Tvedestrand
Country : Norway