拆除还是不拆除?这是建筑师们在这个项目开始时遇到的关键问题。客户在保留他们房子旁边的旧谷仓上无法达成一致。她想保留它,而他想从头开始建造一个新的建筑。Objekt Architecten结合了两个世界的优点,提出了一个不寻常的、令人惊讶的设计。老谷仓的特点和品质被定义并结合起来,成为新建筑的附加值。老谷仓的屋顶和内墙被拆除,为新的混凝土建筑腾出空间。混凝土在与旧砖墙的结合中提供了正确的美学效果,两种材料相互加强。面对预算,并因此寻找一种合理的建筑方式,建筑师选择使用结构工程作为收尾。
To demolish or not? That was the key question the architects had at the start of this project. The clients could not agree on the preservation of the old barn next to their house. She wanted to preserve it, he wanted to start from scratch with a new construction. Objekt Architecten combined best of both worlds and came up with an unusual, surprising design. The characteristics and qualities of the old barn were defined and combined as an added value to the new volume. The roof and inner walls of the old barn were demolished and made room for a new concrete construction. Concrete offers the right esthetical result in combination with the old brick walls by which both materials reinforce each other. Facing the budget and therefor searching for a logical way of building, the architects chose to use the structural work as a finish.



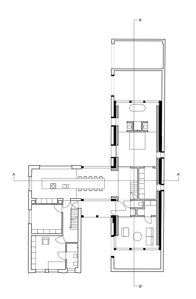
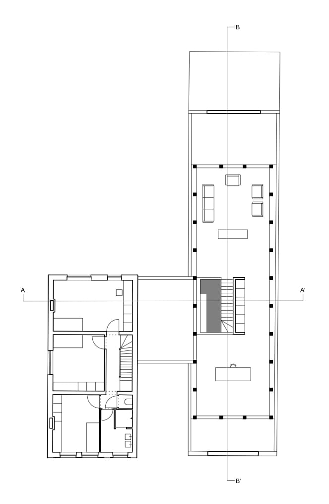
谷仓可以追溯到1900年,是一个更大的实体的一部分。最初,谷仓通过一个车库与房屋相连。客户希望在建筑期间留在他们的房子里,所以他们选择在不同阶段解决谷仓和房子的翻新问题。房子里有3个儿童房,底层是为将来残疾家庭成员的家庭护理而配备的。阁楼为孩子们提供了一个游戏区。在旧谷仓的废墟中,放置了一个新的建筑,占地面积较小。这种体积上的差异在新与旧之间,在封闭的天井和一楼有趣的开放视野之间创造了一种张力。一楼混凝土体积的透明度是城市规划的要求,并通过将生活区和办公室放在楼上来加以利用。由于建筑地块位于布鲁塞尔附近的山坡上,这些生活空间享有惊人的360°景观。在底层,谷仓作为一个巨大的基座,为主卧室和浴室提供隐私。
The barn dates from 1900 and is part of a greater entity. Originally the barn was connected with the house by a garage. The clients wanted to stay in their house during the building period, so they chose to tackle the renovation of both barn and house in different phases. The house covers 3 children’s rooms and the ground floor is equipped for future home care for a disabled family member. The attic covers a play area for the children. Within the ruins of the old barn, a new construction was placed with a smaller footprint. This difference in volume creates a tension between old and new, between enclosed patios and interesting open views on the first floor. The transparency of the concrete volume on the first floor was a demand of urban planning and was exploited by placing the living area and office upstairs. As the building plot is situated on a hillside near Brussels, these living spaces enjoy a phenomenal 360° view. At the ground floor, the barn functions as a massive plinth which offers privacy for the master bedroom and bathroom.

Objekt Architecten选择使用外骨架来建造新的体积。新的混凝土墙被浇筑在现有的谷仓墙上,然后是隔热层和底层砖墙。外部混凝土柱被放置在这些混凝土墙上,屋顶建筑被挂在柱子结构上。因此,在第一层不需要承重墙或柱子,这使得抹灰工程和油漆没有必要,这有助于最大限度地观察周围的环境。在谷仓的基座上,是一个放置在建筑前面的游戏和休闲区。中间部分覆盖了入口和一个开放的楼梯。这个双层高度的天花板对底层的日光渗透很重要。一楼的其余部分被保留下来,作为父母的套房,有卧室、梳妆台和浴室。浴室与后面的天井相连,这有利于户外淋浴。
Objekt Architecten chose to build the new volume by using an exoskeleton. New concrete walls were poured against the existing barn wall, followed by insulation and an underlying brick wall. Exterior concrete columns were placed on these concrete walls and the roof construction is hung up on the column structure. Therefore, no bearing walls or columns were needed on the first floor, which made plasterwork and painting unnecessary which contributed to a maximum view on the surroundings. In the plinth of the barn is a play and relaxing area placed at the front of the building. The mid-section covers the entrance and an open staircase. This double height ceiling is important for daylight infiltration on the ground floor. The remaining part of the ground floor is preserved for the parental suite with bedroom, dressing and bathroom. The bathroom is connected with the patio at the back which facilitates an outdoor shower.
























Architects: Objekt Architecten
Area : 406 m²
Year : 2017
Photographs :BILD Studio
Lead Architects : Niels Van der Straeten, Dries Van Nieuwenbergh, Raf Geysen
Engineering : LIME
City : Dilbeek
Country : Belgium