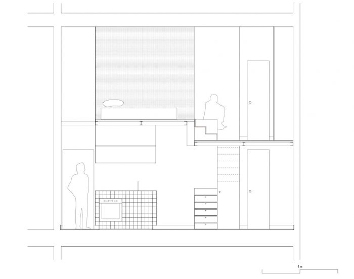
这套全新的公寓位于圣保罗(BR)的Jardins社区,房地产开发商交给客户的是完全空的,没有任何基础设施。一个35平方米的双高空间的平面图是唯一的优质资产。在2016年,Atelier Branco被要求设计一个功能齐全的公寓,供一个人使用。因此,主要的创造是夹层,这将提供足够的面积来拥有一个卧室和书房,以及一个客厅和餐厅,总之是一个流动的空间和一个连续的循环。
Located in the neighbourhood of Jardins, São Paulo (BR), this brand new apartment was handled to the client completely empty and with no infrastructure by the real estate developer. A double height space of 35 sqm floor plan was the only and great quality asset given. It was required to Atelier Branco in 2016 to design a fully functional apartment for a single person use. So the main creation was the mezzanine, that would give enough area to have a bedroom and study room together with a living and dining rooms, altogether in a fluid space and a continuous circulation.



所有元素的设计都是为了满足所有的需求,能够容纳任何类型的人。 在70平方米的空间里,有一个无限风光的生活空间,一个开放的厨房,一个客厅,一个用于用餐的阳台,一个双人卧室,一个带淋浴的壁橱和两个宽敞的浴室。
All the elements were designed to the end to fulfil all the needs and being capable to house any kind of individual. An infinite view living space, an open kitchen, a living room, a veranda for dinning, one double bedroom, one closet with shower and two generous bathrooms in 70 m2.


夹层与周边的墙体分离,以便于一次性了解整个生活空间,并在所有区域有一个视觉连接。为了创造最大的存储空间,它也被引入了一个分层。整个公寓有各种尺寸和形式的木制衣柜和存储空间,以满足每一个需求。所有的材料都采用了白色作为主色调,从厨房的白色瓷砖到地板的白色漆面Garapeira木。唯一的黑色元素是窗框和上层的混凝土淋浴。
The mezzanine is detached to the perimeter walls, in order to have the understanding of the whole living space at once, and to have a visual connection through all the areas. It was also introduced a split level in order to create the maximum of storage space. The whole apartment have wooden wardrobes and storage spaces of all sizes and forms, to storage every single need. White was adopted as the main colour for all the materials, from white tiles in the kitchen to white painted Garapeira wood for the floor. The only black elements are the window frames and the concrete shower in the upper level.






Architects: Atelier Branco Arquitetura
Area : 60 m²
Year : 2016
Photographs :Ricardo Bassetti
Lead Architect : Matteo Arnone, Pep Pons
Engineer : João Claudinei Alves
City : São Paulo
Country : Brazil