该项目开发在金塔纳罗奥州图卢姆附近的里维埃拉玛雅的一块狭长的海滨地段,完全由太阳能和风能驱动。整个项目采用有机蓝色混凝土浇铸而成,这种混凝土会随着时间的推移,根据其在阳光下的曝晒和在房屋中的位置发生反应,形成从海洋蓝到日落粉红的色调。
The project was developed on a narrow beachfront lot on the Riviera Maya, near Tulum, in Quintana Roo and is fully powered by solar and wind energy. The entire project was cast in an organic blue color concrete, which reacts over time according to its exposure to the sun and its position in the house, creating tones that range from ocean blue to sunset pink.





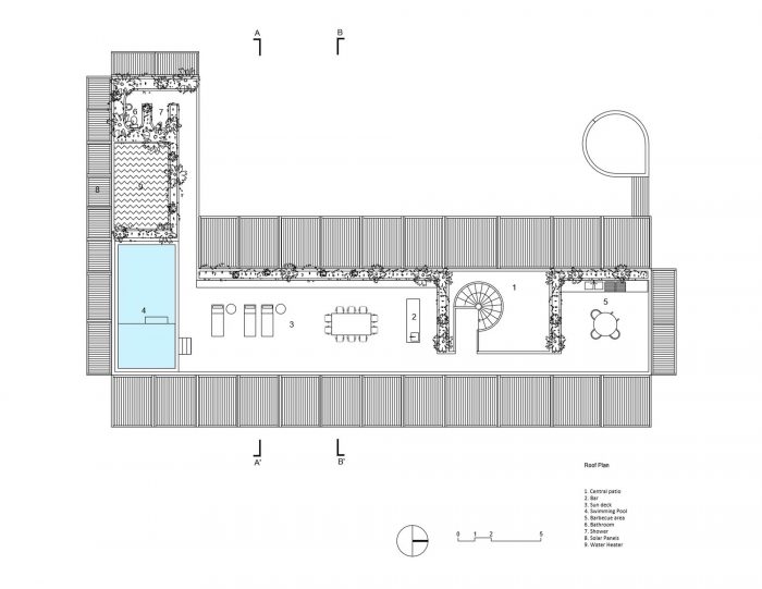
通过在十字形的柱子上抬高房屋,减少了对环境的影响,并在将房产与大海隔开的沙丘上产生了景观。该项目分为三层,由螺旋楼梯连接:房子下面的辅助底层,中间层包含所有的内部空间,以及一个带游泳池的大型屋顶露台和一个户外餐厅,呈现出加勒比海、丛林和泻湖的景色。靠近主卧室的地方有一个独特的塔楼:它作为一个正式的元素,将整个组合固定下来,并作为一个灵活的工作或冥想空间。
By raising the house on cross-shaped columns, the impact on the environment is reduced and views are generated over the dune that separates the property from the sea. The project is organized on three levels that are connected by a spiral staircase: the auxiliary ground floor below the house, the intermediate level containing all interior spaces, and a large roof terrace with a pool and an outdoor dining room presenting views of the Caribbean Sea, the jungle and the lagoon. Close to the master bedroom a distinct turret is situated: it works as a formal element that anchors the ensemble into place and doubles as a flexible space for work or meditation.



中间的L形平面图通过大型露台和当地木材制成的凉棚延伸到底层之外。这样一来,室内空间被扩大了,并避免了阳光的照射;而且实现了良好的交叉通风(只有卧室有空调系统)。这些露台有一个折叠装置,在飓风来临时可以保护房子:通过升降这些沉重的元素,靠着外墙,开放和透明的住宅变成了一个坚固的封闭盒子。
The intermediate L-shaped floor plan extends beyond the ground floor through large terraces and pergolas made with local wood. In this way, the interior spaces are enlarged and protected from the sun; and a good cross ventilation is achieved (only the bedrooms have an air conditioning system). These terraces have a folding mechanism that protects the house in the event of hurricanes: by raising and lowering these heavy elements against the facade, the open and transparent residence is transformed into a robust closed box.













建筑师:PRODUCTORA
面积:280平方米
年份:2019年
摄影:Onnis Luque
建筑:Carlos Bedoya, Victor Jaime, Wonne Ickx, Abel Perles
合作者:Alejandro Ordoñez, Josue Palma, Daniela Dusa, Antonio Espinoza, Gerardo Aguilar
结构工程:Kaltia
技术工程与可持续性:EOS
景观:Planta
国家:墨西哥
Architects: PRODUCTORA
Area: 280 m²
Year: 2019
Photographs: Onnis Luque
Architecture:Carlos Bedoya, Victor Jaime, Wonne Ickx, Abel Perles
Collaborators:Alejandro Ordoñez, Josue Palma, Daniela Dusa, Antonio Espinoza, Gerardo Aguilar
Structural Engineering:Kaltia
Mechnical Engineering And Sustainability:EOS
Landscape:Planta
Country:Mexico