该建筑设计于1900年,响应了巴塞罗那现代主义建筑的典型经验的优雅和几何装饰。
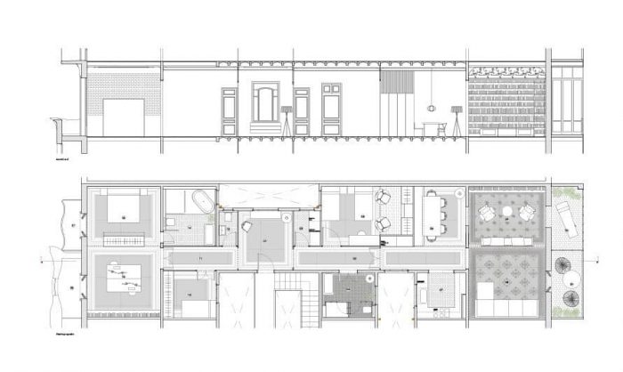
Designed in 1900, the building responds to the elegant and geometric decorations that refer to the typical experience of modernist architecture in Barcelona.



该项目产生于恢复房屋本身的历史和文化精髓的需要:其改革的目的是以最大的尊重,保留加泰罗尼亚现代主义艺术的原创性和美感,基于对巴塞罗那原始马赛克地板的恢复。
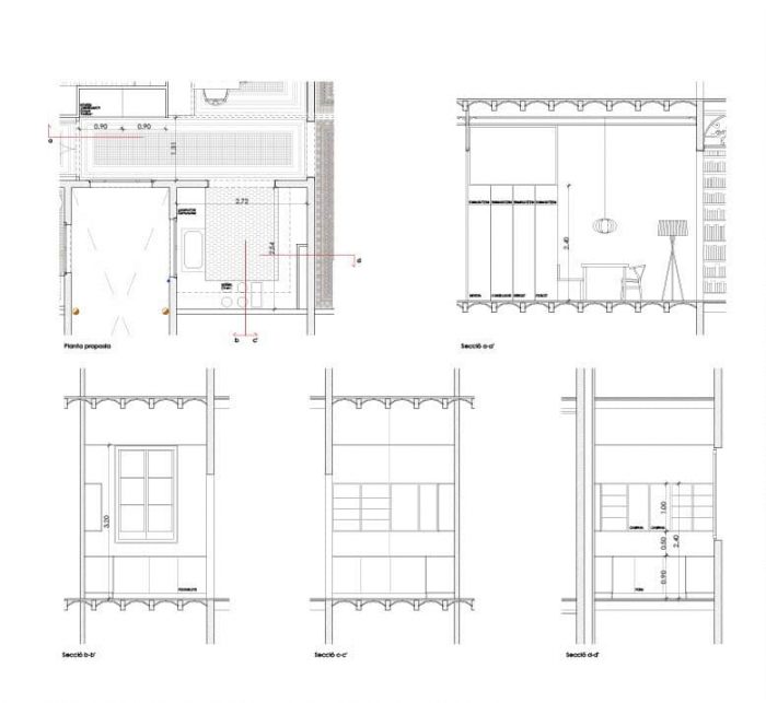
The project arises with the need to recover the historical and cultural essence of the house itself: its reform aims to preserve, with the utmost respect, the originality, and beauty of Catalan modernist art, based on the recovery of the floor made with original mosaic from Barcelona.


同样,租户的艺术和诗意的个性也反映在每一个元素和细节中,把环境变成一个真正的当代和前卫的作品。
Likewise, the artistic and poetic personality of the tenants is reflected in every element and detail, turning the environment into a truly contemporary and avant-garde piece.































Architects: E32 Studios
Area : 166 m²
Year : 2021
Photographs :Alvaro Valdecantos
Manufacturers : Casambi
Lead Architect : Alexis Martínez de San Vicente Cals
Lighting Designer : Jordi Saladié
City : Barcelona
Country : Spain