海狸中心(自然保护中心Sotla)的目的是由科学家沿Sotla河研究自然,以介绍给生态旅游的游牧民。
The Beaver Center (Nature Conservation Center Sotla) is intended for researching nature along the Sotla river by scientists for presentation to eco-tourist nomads.




它位于SLO-CRO边界旁边,沿着干涸的Vonarsko或Sotelsko湖,成为一个独特的自然保护区。建筑遵循自然地形,从公路向干涸的湖泊洼地和活跃的河流运河落下。东部的纵向立面靠着梯田式的入口平台,因此建筑部分地悬浮在斜坡上。
It is located next to the SLO-CRO border, along dried-out Vonarsko or Sotelsko lake, which became a unique nature reserve. Architecture follows the natural topography that falls from the road towards the dry lake depression and active river canal. The Eastern longitudinal façade leans against the terraced entrance platform so the building partly levitates over the slope.



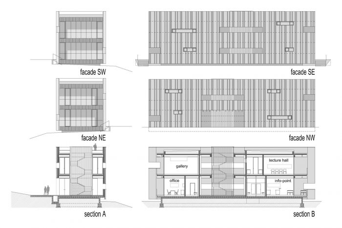
功能概念是基于 "生态教育研究和旅游站 "的主题,过渡平台有一个中央观景楼梯-塔楼和屋顶的圆形观景平台。人们从开放的环形走廊进入四个独立的项目部分:信息点和咖啡馆露台、带阳台的办公室、带柜子和露台的演讲厅、主题展览中心。因此,游客可以获得教育内容和沉思或动态的抽象空间体验。开口和玻璃幕墙对开放和封闭空间的景观进行排序。由于遮阳,露台向南更深。
The functional concept is based on the theme of `eco-educational research and tourist station`, with transitional platforms with a central viewing staircase – a tower and a circular viewing platform on the roof. One enters four separate program sections from the open circular corridor: info-point and café terrace, office with balcony, a lecture hall with cabinet and terrace, thematic exhibition center. The visitor is thus offered educational content and meditative or dynamic, abstract spatial experience. Openings and glazings are sequencing the views from open and closed spaces. Terraces are deeper to the south due to shading.



地基之上的建筑是木制的。分层但紧凑的木制建筑,外墙有节奏和栅栏的纹理,解释了乡土建筑,并与文化和自然景观相关。另一方面,这个 "木制容器亭 "根据 "延伸的屏幕屏障 "的原则被放置在景观中,这也包含了 "客观观察自然 "的想法。
Construction above foundations is wooden. Layered but compact wooden architecture with a façade textured with rhythms and raster, interprets vernacular architecture and relates to the cultural and natural landscape. On the other hand, this `wooden-container-pavilion` is placed in the landscape according to the principle of `extended-screen-barrier`, which also incorporates the idea of `objective observation of Nature`.



















Architects: Ravnikar Potokar, Strehovec arhitekt
Area: 400 m²
Year: 2020
Photographs: Virginia Vrecl
Lead Architects: Andrej Strehovec, Robert Potokar
Landscape: Aspa-ING
Electrics: EL-Part
Acoustics: MK3
Coworker / 2 D:Dušan Stevanović
Coworker / 3 D:Vedrana Bosković
Photo Postproduction:Igor Vukičević
Constructions:Vojko Mlakar, Matevž Govekar
Fire Safety:Aleš Hudernik
City:Nimno
Country:Slovenia