在Maragogi-AL海滩的一个海滨地段,我们设计了这个有五间套房的海滨别墅的建筑和内部装修,这些套房向风景慷慨地开放。在金属支柱和梁的混合结构中,我们探索了这些结构系统所提供的空间性,有很大的间隙和流动的综合空间。
In a seafront located lot, at the Maragogi-AL beach, we design the architecture and interiors of this beach house with five suites, that open themselves generously to the landscape. Conceived in a mixed structure of metallic pillars and beams, with concrete slabs, and covering in wood, we explored the spatiality provided by these structural systems, with great gaps and fluid and integrated spaces.




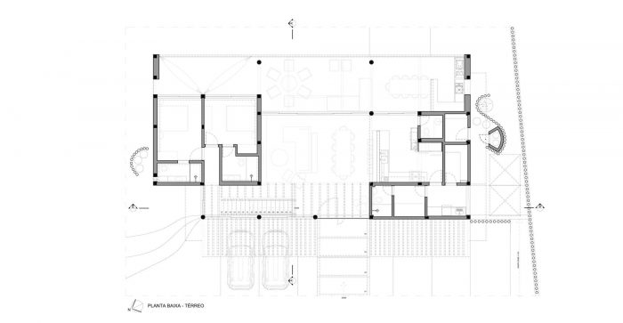
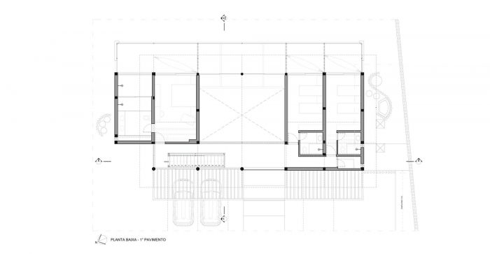
在西面,一个带有植被(假山)的大凉棚遮蔽了汽车,并通向入口,从那里可以看到客厅、厨房和综合阳台,接下来就是看海了。五个套房中有两个在一楼,其中三个在一楼,因为主套房与其他两个在一楼的套房是分开的,它们之间通过木地板走道相互连接。这使得人们可以通过中央空隙行走,这是一个具有双重右脚的空间,从这里可以欣赏到从地板到木质屋顶的丰满的桉树剪刀,以及始终存在的大海的景色。
On the west facade, an extensive pergola with vegetation (arbor) shelters the cars and conducts to the entrance, from where the living room, kitchen, and integrated balcony are unfolded, and next, the viewing of the sea. Two of the five suites are on the ground floor, and three of them are on the first floor, being that the main suite is separated from the two others on the first floor, which is interconnected by a wooden floor walkway. That enables the walking through the central void, a space with the double right foot, from where it’s possible to appreciate from the floor to the wooden roof, with plump eucalyptus scissors, and a view to the sea, always present.


楼梯也是实木的,从木质地板走道传导到底层,轻巧而巧妙,仿佛木质地板碎成了台阶。所有的正面都有巨大的玻璃布,揭开了大海的面纱,所有的房间都可以看到大海,包括主套房的宽大浴室。
The stairs, also in solid wood, conduct from the wooden floor walkway to the ground floor, lightly and subtly, as if the wooden floor crumbles into steps. All of the frontal facades have huge glass cloths, unveiling the sea, which all the rooms have a view of, including the generous bathroom of the main suite.



露台占据了房子的所有正面,被细分为带网的休闲区(在底层套房前面),与客厅融为一体的生活区,以及与厨房和游泳池融为一体的美食区,通过木质甲板还可以通向通往大海的出口。
The terrace, which occupies all the frontal extent of the house, is subdivided into a relaxation area with nets (in front of the ground floor suites), living areas integrated into the living room, and a gourmet area integrated into the kitchen and the pool through the wooden deck that also conducts to the exit that leads to the sea.




服务室转到房子的一侧,面对墙壁,并有桉树围栏保护。所选择的涂层材料暗示了海洋的颜色和烧焦的水泥,寻找一种放松的心情。
The service rooms are turned to the side of the house, facing the wall, and are protected by a eucalyptus fence. The chosen coating materials allude to the sea colors and burnt cement, searching for a relaxing mood.


卧室中带有开放式壁橱的家具设计寻求实用性和轻便性,超越了照明项目所补充的依偎性。阳台和浴室里的实木大桌、沙发和长椅,暗示了海滩风情的质朴和简单。
The furniture design with open closets in the bedrooms searches for practicality and lightness, beyond the snuggle complemented by the lighting project. The great tables, sofas, and benches in solid wood on the terraces and bathrooms, alludes to the rusticity and simplicity of the beach mood.




















Architects: Porto Neves Arquitetura
Area : 325 m²
Year : 2022
Photographs :Walter Dias
Manufacturers : ADROALDO TAPETES, Ceramicas Portinari, DONA MADEIRA, Decortiles, Eliane, FINESTRA CORTINAS, FINGER, Finni Interiores, Franccino, Ibratin, LIGHT DESIGN RECIFE, MANUPIÁ ARTE, MR. SONO COLCHÕES, MUNDOECO, Marmorart, NOVO PROJETO, Portobello
Lead Architect : Adriana Porto e Luciana Neves
Collaborators : SOFIA CAVALCANTI, DANIELA ALBUQUERQUE, JAQUELINE MIRANDA, THATIANE RODRIGUES, LAURA SANTOS
Collaborating Interns : ISABELLY SALES, EDUARDA ALBUQUERQUE, REBECA SANTOIANNI, MARIANA PIQUET, SIMON PRESBITERO
Construction : SG CONSTRUÇÕES
Glass Work : VIDRO & CIA PE
Wooden Frames : GRUPO FECIMAL
Luminotechnical Design : FF ILUMINAÇÃO
Landscape : NATIFLORA PAISAGISMO
City : Maragogi
Country : Brazil