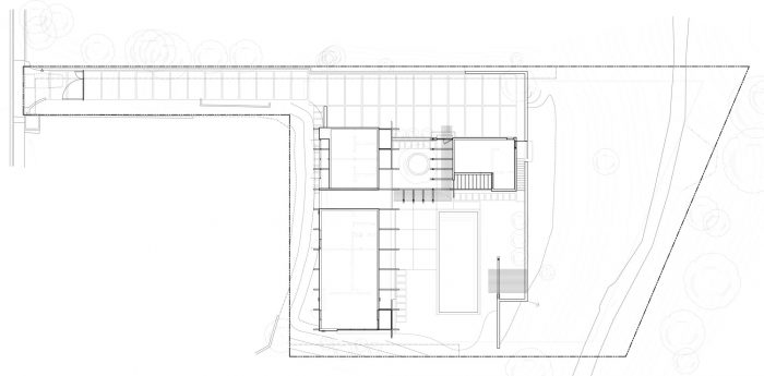
这个项目是在洛杉矶贝莱尔社区的一个旗形山坡上开发的。该地块的方向在一个峡谷内,太阳从平坦的建筑平台后面的陡峭山丘上升起。该地块的有利景观是在太阳路径的另一侧,向下坡方向的社区峡谷看。设计上的挑战是如何将建筑朝向景观,同时让阳光从相反的方向照亮建筑的核心部分。此外,当地政府有一个限制使用天窗的分区条例,禁止使用单层平屋顶,要求额外的二级平屋顶必须覆盖总屋顶面积的30%。
This project was developed on a flag shaped hillside lot in the Bel Air neighborhood of Los Angeles. The orientation of the site is within a canyon where the sun rises from above a steep hill behind the flat building pad. The favorable views from this lot are on the opposite side of the suns path, looking downhill towards the neighborhood canyon. The design challenge was to orient the building towards the view, while allowing sunlight to illuminate the core of the building from the opposite direction. In addition, the local municipality has an overlay zoning regulation which limits the use of skylights and prohibits single level flat roofs, requiring an additional secondary flat roof which must cover at least 30% of the total roof area.




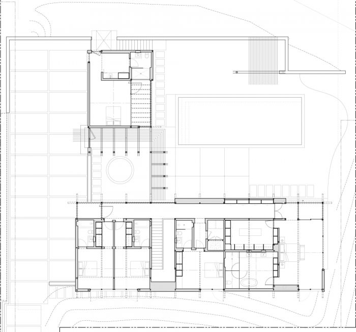
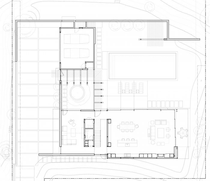
我们引入的设计方案是一个有屋顶的横梁系统,它的主要上层屋顶连接在横梁的顶部,而次要的下层屋顶系统则连接在横梁的底部。上部和下部屋顶之间的剩余空间成为透明层窗户,将阳光引入建筑核心的空间。而生活空间对面的大型玻璃元素则为峡谷景观提供了框架。暴露在外的梁柱的结构节奏让人联想到加州的中世纪现代建筑。我们选择接受由此产生的中世纪概念,并开发一个中世纪住宅的现代变体。通往这个住宅的队伍从通往汽车法庭的长长的车道开始。我们引入了一个隐藏的车库门,并采用槽形木板护墙板,这成为底层附属结构的包覆材料。长板形式的就地浇筑的混凝土挡土墙为平坦的垫子创造了一个靠山坡的边界。挡墙木板的比例与附属结构的木板模式相同。混凝土是水平形成的,而木板护墙板是垂直方向的。
The design solution we introduced was a roofed beam system, which has a major upper roof attached to the top of the beams, while the secondary lower roof system is attached to the bottom of the beams. The residual space between the upper and lower roofs became clearstory windows which bring sunlight into the spaces at the core of the building. While large glazing elements at the opposite side of the living spaces frame the canyon views. The structural rhythm of the exposed beams is reminiscent of California midcentury modern architecture. We chose to embrace the resulting midcentury notion and develop a contemporary variation of a midcentury home. The procession to this home begins at the long driveway leading up to a motor court. We introduced a hidden garage door with channel shiplap wood siding, which became the cladding material of the accessory structure on the ground floor. The long board form poured in place concrete retaining wall creates a boundary for the flat pad against the hillside. The proportions of the retaining wall boards have the same corresponding board pattern as the shiplap siding of the accessory structure. The concrete is formed horizontally while the shiplap wood siding is oriented vertically.


从机动车场继续进入入口庭院,到前门的队伍继续前进,一边是一个池塘,中间是一棵本地的橡树,另一边是木板墙板的附属结构。穿过入口庭院,室内底层向院子敞开,有一个主要的滑动玻璃元素连接室内和室外空间。这创造了一个广阔的、保护隐私的室内/室外生活空间,这也是区域中世纪概念及其类型特征的一个基本方面。
Continuing from the motor court into the entry courtyard, the procession to the front door resumes with a pond on one side, with a native oak tree in the center, and the shiplap clad accessory structure on the opposite side. Past the entry courtyard, the interior ground floor opens up to the yard, with a major sliding glazing element connecting the interior and exterior spaces. This creates an expansive and privacy protected indoor / outdoor living space, which is a fundamental aspect of the regional mid-century concept and its typological character.





















Architects: DARX Studio
Area : 4500 ft²
Year : 2019
Photographs :Oren Dothan & Ryan Childers
Manufacturers : AutoDesk, Azek, ConTech Lighting, Isokern Maximus, Krono Swiss, Maharam, Nusku Fireblocker, Rajack, Shinnoki, Swiss Woodworking, Trimble
Engineering : Taylor & Syfan
Consultants : DW Consultants, Rybak Geotechnical
Landscape : Atomic Irrigation, Oren Dothan
Design Team : DARX Studio, Oren Dothan, Ryan Childers
Cabinetry : Swiss Woodworking
City : Los Ángeles
Country : United States