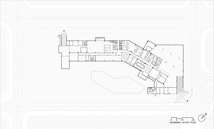
Bellerive 度假村位于会安,距离潮州华人会馆6.1公里,四面紧邻公路,东面是德旺河,属于The Calico的物业,拥有整个令人惊叹的宽敞景观,是一个生态度假村,建在8700平方米的土地上,具有会安古镇热带湿热气候的特点。从鸟瞰图上看,贝勒里夫被分为两个独立的区块,包括一个06层的酒店区块和一个豪华的别墅区块,每个区块有2到3个卧室和一个独立的游泳池。通过现代建筑方案与会安河遗产的灵感相结合,Bellerive带来了越南中部海岸典型的当地气息,简单的渔村和质朴的渔船漂浮在诗意的会河上。
Located in Hoi An, 6.1 km from the Assembly Hall of Chaozhou Chinese Congregation, with 4 sides adjacent to roadways and to the east is the De Vong river, Bellerive resort - a property belonging to The Calico - owns the whole breathtaking spacious landscape of an eco-resort built on a land of 8700m2 characterized by the tropical hot and humid climate of Hoi An ancient town. From the bird's-eye view, Bellerive is divided into two separate blocks including a 06-storey hotel block with a capacity of 178 appointed rooms and the luxurious villa block having from 2 to 3 bedrooms and an isolated pool in each. With modern architectural solutions combined with inspiration from Hoi An's river heritage, Bellerive brings the typical local breath of the central coast of Vietnam with the image of simple fishing villages and rustic fishing boats floating on the poetic Hoai River.





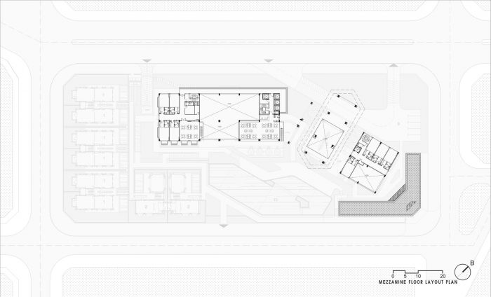
在设计度假空间时,创造一种实际体验感是AVA原则的核心要素。为了实现这一目标,从大堂、休息室、休闲区、无边际泳池到餐厅、会议厅、水疗中心、休闲区等度假体验的每一个方面都被科学地安排在一个统一的图形上,确保内部以及外部流通的便利,同时保证建筑的总体美感。
Creating a sense of practical experience is the core element of AVA's principles while designing a resort space. To achieve this, every aspect of the resort experience from the lobby, lounge, relaxing area, and infinity pool to the restaurant, conference halls, spa, and recreation area are arranged scientifically on a unified figure, ensuring convenience for internal as well as external circulation, while ensuring general aesthetics for the construction.


酒店区位于主要交通方向的正中。它的后退是为了创造一个建筑的景观,水平地延伸到土地上,不仅给贝勒里夫带来了宏伟的外观,也给公共区域和酒店房间带来了河边的景观。贝勒里夫的南部是专属的别墅区,有私人泳池,周围是安静祥和的氛围。无边际的游泳池就安放在土地的中心,向着充满诗意的De Vong河岸。贝勒里夫的亮点是植物和花园的安排,这些植物和花园在功能区之间交织种植,创造了环保的绿色空间,也确保了整个度假村的美感。
The hotel block is located right in the main traffic direction. It is set back to create a view of the building, stretching horizontally across the land bringing not only the magnitude appearance to Bellerive but also the riverside view for public areas and hotel rooms. To the south of Bellerive is the exclusive villa zone with private pools surrounded by a quiet and peaceful atmosphere. The infinity pool is settled right at the heart of the land looking towards the poetic De Vong riverbank. Highlighting Bellerive is the arrangement of plants and gardens planted intertwined among functional areas, creating environmentally friendly green spaces and ensuring aesthetics for the whole resort as well.



从上面看,酒店区和别墅区的屋顶灵感来自于船的倒置形象,让人联想到渔民的船在德宏河上漂浮的形象。以长期使用和环境友好为标准,AVA优先选择合适的材料,这些材料的特点是与现有建筑的颜色相协调,但又能顺应未来的现代发展潮流。周围和内部的墙壁由未烧制的砖块建成,除此之外,还优化了当地的普通材料,如石头,以便将会安古镇的精神文化带入Bellerive。混凝土材料与钢化玻璃结合使用,因为它们适合热带气候,加上天花板、墙壁和屋顶的设计,保证了空气的通风和交替,以简单的白色为基调,点缀了木质室内的米色调,为空间提供了优雅和花哨的外观。特别是在休闲酒吧区,交叉编织的网状天花板方案特别受到广安市渔民捕鱼形象的启发,以增加质朴、亲密和当地精神,同时仍然保留了贝勒里夫所追求的豪华和现代之美。
Viewed from above, the roofs of the hotel block and the villa block are inspired by the image of the boat upside down, reminiscent of the image of fishermen's boats floating along the De Vong River. Taking the criterion of long-term use and environmental friendliness, AVA prioritizes the selection of suitable materials that feature colors in harmony with the existing construction yet go along with modern development trends in the future. Surrounding and inner walls are built of unburnt bricks, in addition to this, local common materials such as stones are optimized as well to bring the spiritual culture of Hoi An ancient town into Bellerive. Concrete materials combined with tempered glass are utilized by their suitability for the tropical climate, along with the design of ceilings, walls, and roofs that ensure the ventilation and alternation of air, painted in a simple white tone that embellishes the beige tone of wood interior providing an elegant and fancy look for the space. Particularly for the lounge bar area, the cross-knit net ceiling solution is especially inspired by the image of Quang’s fishermen catching fish to increase the rusticity, intimacy, and local spirit, still retaining the luxurious and modern beauty that Bellerive aiming to.




























Architects: AVA architects Viet Nam
Area : 8718 m²
Year : 2022
Photographs :Hiroyuki Oki
Manufacturers : AutoDesk, Grohe, An Cuong, Dobo, Dulux, Namsung, Pacisoft, Trimble, Vietceramics
Lead Architect : Nguyen Le Huy Vu
Architectural Designer : Nguyen Viet Thanh
Structural Engineering : Tin An Construction Consulting.,JSC
Construction Contractors : Pacific ACE5 Construction and Invesment Joint Stock Company
Architect : Nguyen Duc Lam
Interior Designer : Nguyen Thi Kieu Trang
Mep Engineering : Nguyen Duc Duy
City : Thành phố Hội An
Country : Vietnam