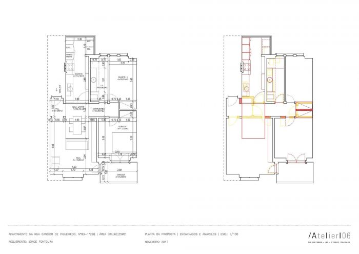
原先的公寓有一个典型的结构,有一个长长的走廊来分配不同的空间,相当的隔断化。客户的唯一要求是保持现有的T2类型,并尊重预算上限--这是项目的挑战之一。在一个面积受限的公寓里,第一件有意义的事情是 "解散 "标志着空间组织的长走廊--作为房子的骨架--并赋予其功能。
The original apartment had a characteristic structure of the time, with a long corridor for the distribution of the different spaces, quite compartmentalized. The customer's only requirements were to maintain the existing T2 typology and to respect the budget ceiling - one of the project's challenges. The first thing that made sense in an area-constrained apartment consisted of "dissolving" the long corridor that marked the spatial organization - functioning as the skeleton of the house - and giving it a function.


在这个意义上,划分客厅和厨房的墙壁--面对面的--被拆掉,以便在空间和物质上以及视觉上扩展空间。其结果是将三个独立的区域--客厅、走廊和厨房--转变为三个交流的区域。这些区域的新划分是通过两个大的铁窗开口来实现的,它将客厅与餐厅和厨房分开,保持了视觉上的联系,并突出了空间的深度。这种设计也使公寓有了更大的亮度。
In this sense, the walls that delimited the living room and kitchen - face to face - were torn down in order to extend space, both spatially and materially, as well as visually. The result was the transformation of three separate areas - living room, corridor, and kitchen - into three communicating areas. The new delimitation of the areas is created through two large iron window openings that separate the living room from the dining room and the kitchen, maintaining the visual connection and accentuating the depth of space. This design also allows giving greater brightness to the apartment.

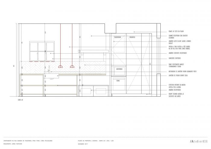
延伸到新餐厅的厨房地板也标志着这种连续性。陶瓷地板的尺寸与现有的木块相同,与之完美契合,创造了一种 "地毯",适合用于餐厅的空间。卫浴设施的面积很大,而且是纵向设计,其布局没有利用两个尺寸的优势。我们决定选择这种设计,通过对流通和功能区的明确划分。
The continuity is also marked by the kitchen floor that extends to the new dining room. The ceramic floor, with the same dimensions as the existing wooden block, fits perfectly into this, creating a kind of "carpet" that fits the space intended for the dining room. The sanitary installation, with a generous area and longitudinal design, had a layout that did not take advantage of the two dimensions. It was decided to opt for this design, through the clear division between circulation and functional area.

因此,该项目在过去和现在之间建立了和谐的联系,这是保留当时的典型元素与其他现代元素相结合的结果。一些厨房家具被复原了,还有老烟囱,它与新的开放式木制家具结构共存。对细节的关注是最重要的方面之一,在这个项目中,每个细节在整体中都很重要,并有助于其统一性。
The project results, therefore, in a harmonious connection between past and present, a consequence of the preservation of typical elements of the time, combined with other contemporary ones. Some kitchen furniture was recovered, as well as the old chimney that coexists with the new structure of open wooden furniture. Attention to detail was one of the most important aspects, giving rise to a project in which each detail is important in the whole and contributes to its unity.





























Architects: Atelier 106
Area : 80 m²
Year : 2017
Photographs :do mal o menos
Manufacturers : Koklatt, MARAZZI
City:LISBON
Country:PORTUGAL