本托是一个由七个商业房间组成的建筑,它位于米纳斯吉拉斯州贝洛奥里藏特的圣本托社区。该项目的建议旨在提供一个原始的建筑,没有通常在房地产市场上看到的恶习或重复的东西。该建筑项目试图通过以下基本前提来解决所提出的方案:创造一个简单的结构解决方案,为建筑形状做出贡献,保持一些大的自由跨度,不受结构干扰,在原始条件下使用材料,如混凝土和砖块,不添加任何需要不断维护的装饰,并提供一个更吸引人的工作区,人们可以从户外空间中受益。
Bento is a building composed by seven commercial rooms and it is in São Bento neighborhood in Belo Horizonte, Minas Gerais. The proposal of the project aimed to offer an original architecture with no vices or repetitions normally seen on the real estate market. The architectural project tried to solve the proposed program by the following basic premises: create a simple structural solution that could contribute for the construction shape, keep some big free spans without structural interference, use materials on their raw conditions, like the concrete and the block bricks, without adding any finishings that demanded constant maintenance, and provide a working area more appealing where people could benefit from the outdoor spaces.




该建筑使用了简单而有力的线条,如两面裸露的混凝土侧墙,有顺序的向外凸出的窗户。主立面有一个由钢筋网保护的大玻璃窗,它根据观察者的视角获得或多或少的力量,并在建筑和街道之间建立起联系。后面的立面形状像台阶,揭示了每个办公室的露台,这不仅带来了质量,而且还提供了Serra do Curral的明确的杰出景观,这是贝洛奥里藏特市的一个重要地标。
The architecture uses simple but strong lines, like both lateral walls in exposed concrete with sequenced outward projecting windows. The main façade has a big glass window protected by a rebar net, which gains more or less power depending on the observer view angle and creates a connection between the building and the street. The back façade is shaped like steps revealing the terraces of each office that not only bring quality to them but also offer a definite outstanding view of Serra do Curral, an important landmark of Belo Horizonte city.


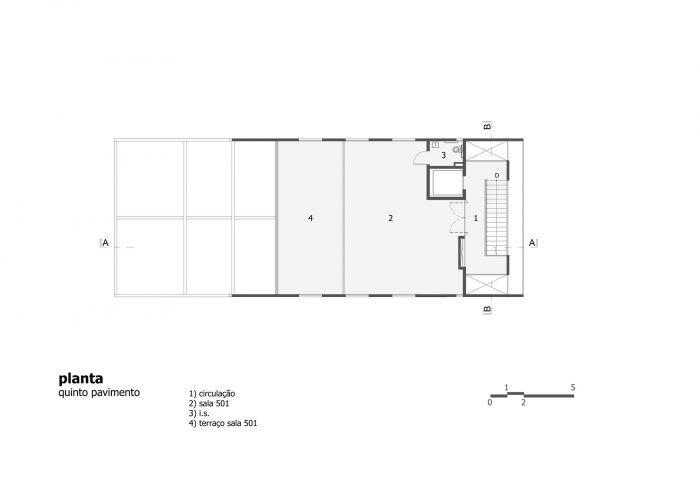
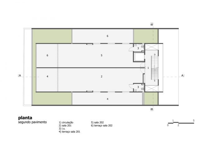
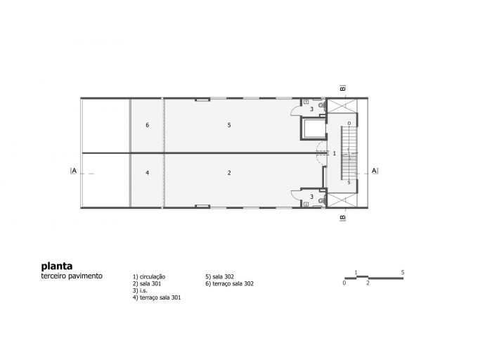
该建筑有五层,第一层由入口大厅和车库组成;第二、第三和第四层各有两个房间,第五层只有一个办公室。室内元素的细节和关怀,如框架,楼梯和护栏的简单图纸,以及水泥地板和纹理的装饰,显示了通过诚实的参考建筑揭示简单之美的意图。
The building has five storeys, being the first one composed by the entrance hall and the garage; the second, the third and the fourth floors have two rooms each one while the fifth has only one office. The details and care with the indoor elements, like the frames, the simple drawings of the stairs and the guard rails, and the finishings on cement floor and texture, show the intention to reveal the beauty of simplicity through an honest referenced architecture.








[caption id="attachment_210521" align="alignnone" width="700"]
DCIM100MEDIADJI_0741.JPG[/caption]









Architects: Trinia Arquitetura
Area : 836 m²
Year : 2020
Photographs :Jomar Bragança
Manufacturers : Interface, Alumafer, Preall, Thyssen Elevadores, iluminar
Lead Architects : Alexandre Bragança, Flávia Mansur
Landscape : Matos e Renault
Lighting : Iluminar
Structural Engineering : LS Engenharia
City : Belo Horizonte
Country : Brazil