就像一个放置在裸露的混凝土墙上的金属容器,这个房子与周围环境建立了两种关系。上层楼可以100%关闭,以阻挡阳光,保证隐私,并在声学上隔离亲密的空间。但是,如果选择的话,外墙会在战略要点上打开,以获得照明和通风。
Like a metallic container placed above exposed concrete walls, this house establishes two types of relationships with the surroundings. The upper floor can be closed 100% to block sunlight, guarantee the privacy and acoustically isolate intimate spaces. But, if chosen, the facade opens at strategic points for lighting and ventilation.



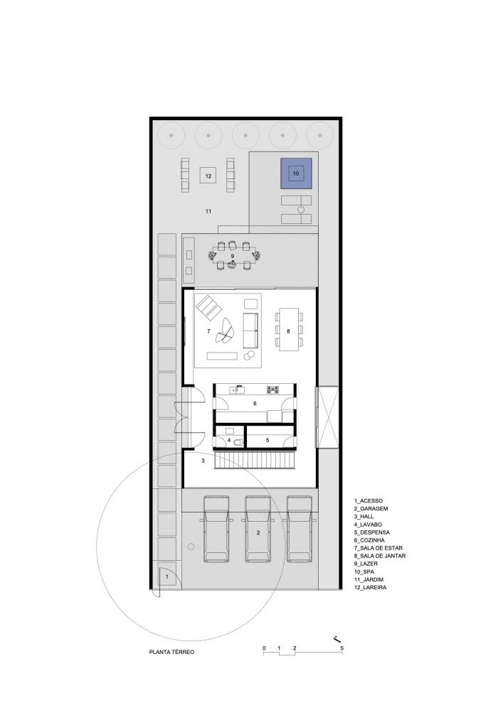
底层以相反的方式,以一种流动的方式向花园开放。内部和外部的概念被大型玻璃开口削弱了,而家具在建筑和巴西设计的作品之间建立了和谐的对话。我们设计了其中一些,如巴西利亚咖啡桌、Ensamble餐桌、Box边桌和Move长椅。
The ground floor, in the opposite way, opens up to the garden in a fluid way. The notion of inside and outside is weakened by the large glass openings, while the furniture establishes a harmonious dialogue between architecture and the Brazilian design of the pieces. We designed some of them, such as the Brasilia coffee table, the Ensamble dining table, the Box side table, and the Move bench.



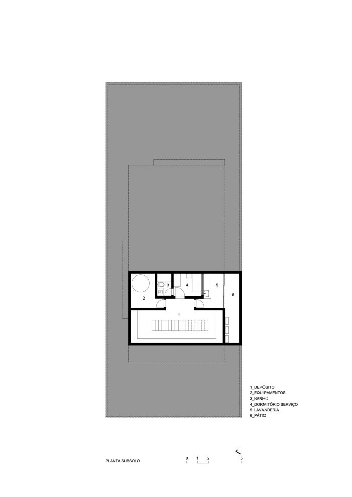
下层支撑着底层,位于地下室,以便不阻挡周边花园的视野。该项目是为一对有两个年幼女儿的年轻夫妇设计的现代城市住宅。因此,功能是至关重要的。
The lower floor supports the ground floor and is in the basement so as not to block the view of the perimeter gardens. The project is a contemporary urban residence for a young couple with two young daughters. So functionality is essential.



材料是真诚的,不加修饰的。钢材、木材和混凝土被原封不动地展示出来,每一种材料的自然磨损都是对所采用的概念的一个非常受欢迎的证明。
The materials are sincere and unadorned. Steel, wood, and concrete are shown as they are and the natural wear of each of them serves as a very welcome testimony to the concept adopted.

从公共街道上看,本托的房子是羞涩和谨慎的。上层的折叠金属板和大门形成了一个视觉屏障,因此,在穿过大门后,游客可以感觉到底层与花园融为一体,代表了圣保罗城市结构中的一片绿洲。
From the public street, the Bento house is shy and discreet. The folded metal sheet of the upper floor and the gate creates a visual barrier so that, after crossing it, the visitor can perceive that the ground floor is integrated with the garden and represents an oasis in the midst of the urban fabric of São Paulo.






























Architects: FCstudio
Area : 424 m²
Year : 2022
Photographs :André Mortatti
Manufacturers : Arthus Mármore e Granitos, Braston, By Kamy, Casual Exteriores, Casual Móveis, Construflama, Creatto, Deca, Di Mármore, Dpot, Esquadralum, Logitec, Lumini, Líder Interiores, Maneco Quindere, Mezas, Portinari, Tapetah, Tauna, Uniflex, Wentz Design
Architecture And Interior Design : FCstudio
Lighting Design : FCstudio
Construction : Lock Engenharia
Vertical Garden Consultant : Sergio Medeiros Paisagismo
Electrical And Hydraulic Installations : Engeplot
Structural Project : Praxis Engenharia
City : São Paulo
Country : Brazil