Dessous des Berges街道的这一部分是相当不寻常的,因为相邻的办公建筑都从巴黎常见的街道排列中退后5米。
This portion of the Dessous des Berges street is rather unusual as the adjacent office constructions are all set back 5m from the common Parisian street alignment.



为了将新建筑融入这一环境,同时又不影响其可行性,该项目在方案和城市限制方面都做了文章,产生了一个相当有创意的方案。悬挂在一个前花园上,建筑的正面被雕刻,以创造出与街道正面的不同平面相连的体量。
To integrate the new building into this context without penalizing its feasibility, the project plays with both the programmatic and urban constraints to produce quite a creative proposal. Suspended over a front garden, the buildings front facade is carved and sculpted to create volumes that connect with the different planes of the street facade.

这使得该项目能够融入其周围的环境,同时与邻近的静态建筑群形成微妙的对比。
建筑物正面的不同变形创造了宽敞的交替式公寓阳台。这些阳台位于西南方向,可以俯瞰街道,它们提供了各种有框架的视野和方向,同时也在夏季提供了防晒。
在格子屏风后面,内部立面用白色涂漆的穿孔铝板覆盖。
This allows the project to integrate into its surroundings while subtly contrasting with the neighboring static masses.
The different distortions on the buildings front facade create generous alternating apartment balconies. These balconies are orientated south-west and overlook the street, they offer various framed views and direction whist also providing sun protection during the summer months.
Behind the lattice screen, the inner facade is clad with white lacquered perforated aluminium panels.

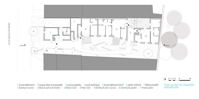
一个有人居住的花园
由于位于主楼下的宽阔的入口通道整合了所有的公共空间,所以路人可以看到地块的深度和石墙。
An Inhabited Garden
The depth of the plot and the stone wall are visible to the passers-by due to the wide entrance passage situated under the main building which integrate all the common spaces.

在这个门槛之外,庭院是绿色植被中的一个平静的小天堂。在场地的限制下,每个庭院单元都受益于朝南的方向和俯瞰邻近建筑后面的种植梯田的无障碍视野。
Beyond that threshold, the courtyard is a small heaven of calm amongst the greenery of the vegetation. Pushed up against the site limit, each of the courtyard units benefit from a south facing orientation and unimpeded views overlooking the planted terraces behind the adjacent buildings.

有人居住的花园强调了个人的规模和通道。分散的体量、类似于房屋的建筑、天井和外部楼梯从植被和它的景观中浮现出来。院子的外墙用木材包覆,与街道形成了有意识的对比。
The inhabited garden emphasizes individual scale and access. Fragmented volumes, house-like buildings, patios and external staircases emerge from the vegetation and its landsacpe. Clad in timber, the courtyard facades creates a conscious contrast with the street side.

它的水平条在入口门廊下滑动,连接前院和后院,同时强调了地块的深度。
由黑色雨幕上的Retified木材制成,未来的灰色外墙将加强金色的金属窗和框架。
Its horizontal strips slide under the entry porch to connect the front and the back gardens while stressing the depth of the plot .
Made of Retified wood on a black rain screen, the future grey facades will enhance the golden metallic windows and frames.

景观区包括广泛的树木、灌木和植物。Prunus Serrula和它非凡的树皮,Ace Davidii,Cornus Siberica和Phornium Terrax来保护单元的隐私,Stipa Grandifolia作为多年生的草。庭院还包括一个共享的种植屋顶平台,所有居民可以通过一个外部金属楼梯进入。
The landscaped areas include a broad range of trees, shrubs and plants : Prunus Serrula and its remarkable bark, Ace Davidii, Cornus Siberica and Phornium Terraxto preserve the privacy of the units, Stipa Grandifolia as perennial grasses. The courtyard also includes a shared planted roof terrace, accessible to all inhabitants via an external metallic staircase.

住房
围绕景观组织,分为两个不同规模的建筑,允许大量的公寓:单间,一室公寓,横跨街道的两室或三室公寓,院子里的双重方向的客厅,复式公寓......
Dwellings
Organized around the landscape, the division into two buildings of various scales permits a great variety of apartments : studio, one bedroom flat, crossing two or three bedroom flats on the street, doubly orientated living rooms in the courtyard, duplex...

场地的东西走向使每个客厅都能受益于南面的阳光。卧室位于安静的院子一侧,可以清楚地看到后花园和其他地方。室内循环被保持在最低限度,以增加客厅的大小。
The east-west orientation of the site allows each living room to benefit from a south exposure. The bedrooms are located on the quiet courtyard side with clear views over the back gardens and beyond. The interior circulations are kept to a minimum to increase the size of the living rooms.

所有的公寓都有宽敞的私人户外区域,以适应每个具体情况,保持其亲密性:街道上的木屋阳台,植被后花园的地面露台,天井......
All apartments have spacious private outdoor areas adapted to each specific situation that preserve their intimacy : loggias-balcony on the street, ground terrace in a garden behind vegetation, patio...

公寓的质量超越了内部空间。室外区域也得到了极大的关注。作为一个开放的地方,它提供了所有的设施,为社会互动提供了一个愉快的生活环境。
The quality of the apartments extend beyond interior spaces. Great attention has been paid to outdoor areas. Conceived as an open place which gives access to all the facilities, it offers a pleasant living environment for social interaction.

可持续性
该项目是基于简单而有效的原则,以实现伟大的环境性能,并符合巴黎市的崇高目标。
Sustainability
The project is based on simple and effective principles to achieve great environmental performances and to comply with the lofty goals of the city of Paris.












Architects: ODILE+GUZY architectes
Area : 3470 m²
Year : 2015
Photographs :David Foessel
Manufacturers : MC FRANCE, GFRC, Sefwood
Consultants : Batscop building-site pilot., Ophie Barbaux
Client : Paris Habitat
Architect In Charge : Julien Odile, Michaël Guzy
City : Paris
Country : France