该住宅和工作室建筑是为10个团体提供的,标志着Werkhof L57的复兴又迈出了一步,该地区由历史悠久的兵营建筑、现代扩建和新建筑组成,在过去的20年里,这里已经发展成为一个非常活跃的创意区。新的四层楼高的开发项目占据了现代混凝土建筑和历史砖建筑之间的地块。
This residential and studio building for a cohousing group of ten parties marks a further step in the revitalisation of Werkhof L57, an ensemble of historic barracks buildings, modern extensions and new buildings, which has grown into a very lively creative quarter during the last two decades. The new four-storey development occupies a plot between a modern building in exposed concrete and a historic brick building.



它的高度和屋顶形状介于这两个邻居之间,而其严格的矩形体量则尊重了前军营的规则形式。同时,这些线条实际上被其微妙的波浪形不锈钢板包层所消解,不锈钢板不规则地反射着周围的环境,从而使立面具有流动的特征。这些单元展示了不同的内部布局,反映了小组成员对生活和工作方式的不同想法。他们的共同点是希望在空间的划分和使用上有最大的灵活性和自由度,而且从长远来看也是如此。
Its height and roof shape mediate between these two neighbours, while its strictly rectangular volume respects the regular forms of the former military compound. At the same time, these lines are virtually dissolved by its subtly wavy cladding of stainless steel sheet, which reflects the surroundings irregularly and thereby lends the façade a fluid character. The units display a variety of interior layouts, reflecting the range of different ideas that individual members of the group had about the way in which they want to live and work. What they all had in common was a desire for maximum flexibility and freedom in the division and use of the spaces, also in the long term.



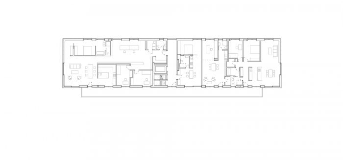
这一点是通过预应力混凝土板来实现的,它使47 x 10米的楼层面积完全没有柱子,并将服务井安置在立面的深度内。为了使每层最多8个单位中的每一个都能向南和向北看去,它们沿着南面的通道阳台到达,而这些阳台又从中央楼梯到达。这就创造了公共的户外空间,也可以作为相邻单位的私人阳台使用。
This was achieved by means of prestressed concrete slabs, which leave the floor area of 47 x 10 m entirely free of columns, and by positioning the service shafts within the depth of the façade. So that each of the maximum of eight flats per floor can have an outlook to both the north and the south, they are reached along access balconies on the south facade, which are in turn reached from a central staircase. This creates communal outdoor spaces, which can also be used privately as balconies from the adjoining flats.




















建筑师:Sauerbruch Hutton
面积:1951平方米
年份:2017年
摄影:Jan Bitter
制造商:FSB, Brakel, ELBE天花板, Oranienbaum, Roofinox.
设计团队:Louisa Hutton、Matthias Sauerbruch、Juan Lucas Young;Jürgen Bartenschlag、Vera Hartmann、Falco Herrmann、Amelie Hummel、Meta Popp、Karolina Sznajder;Quirin Dilling、Dianer Ding、Serafin Iannaccone、Abigail Yeadon
现场监理:Söllner Architekten公司
景观:西奈Gesellschaft von Landschaftsarchitekten mbH公司
结构规划:Andreas Külich Ingenieurbüro für Tragwerksplanung公司
Hvac:Planungsbüro Dernbach有限公司
建筑物理学:Müller-BBM GmbH
防火:Hhpberlin engineers for fire protection GmbH (hpberlin消防工程师有限公司)
项目管理:Schmideg Gmbh
城市:柏林
国家:德国
Architects: Sauerbruch Hutton
Area: 1951 m²
Year: 2017
Photographs: Jan Bitter
Manufacturers: FSB, Brakel, ELBE Decken, Oranienbaum, Roofinox
Design Team:Louisa Hutton, Matthias Sauerbruch, Juan Lucas Young; Jürgen Bartenschlag, Vera Hartmann, Falco Herrmann, Amelie Hummel, Meta Popp, Karolina Sznajder; Quirin Dilling, Dianer Ding, Serafin Iannaccone, Abigail Yeadon
Site Supervision:Söllner Architekten
Landscape:sinai Gesellschaft von Landschaftsarchitekten mbH
Structural Planning:Andreas Külich Ingenieurbüro für Tragwerksplanung
Hvac:Planungsbüro Dernbach GmbH
Building Physics:Müller-BBM GmbH
Fire Protection:hhpberlin Ingenieure für Brandschutz GmbH
Project Management:Schmideg Gmbh
City:Berlin
Country:Germany