坐落在百慕大著名的蓝池边的一个突出的悬崖顶上,百慕大海滨别墅是对一个珍贵的度假屋的敏感的重新想象。几十年来,这个家庭一直深受喜爱,现有的风化板小屋被搬到了路边,为下一个篇章让路。我们设计的新家借鉴了客户与这个地方的长期联系,同时完善了经典的澳大利亚海滨别墅的非正式特征。
Perched on a prominent clifftop bordering Bermagui’s famed Blue Pools, Bermagui Beach House is a sensitive reimagining of a treasured holiday home. Beloved by the family for decades, the existing weatherboard shack was relocated down the road to make way for the next chapter. We designed a new home drawing on the clients’ long-held connection to the place while refining the informal character of the classic Australian beach house.




我们的反应是直接受到项目的沿海环境的影响,在外部形式和内部细节中都嵌入了感官的叙述。深思熟虑的空间规划、战略定位和材料支持了这个家庭的传统和田园诗般的海滨生活。这座房子由三个坚固的体量组成,松散地包裹在木材外皮中。通过将住宅定位在靠近后方边界的位置,我们废除了传统的后院和前围墙的模式;而是建立了与花园的直接对话,以及与海洋的遥远联系。
Our response is directly influenced by the project’s coastal surroundings, with a sensory narrative embedded in both external form and internal detail. Thoughtful spatial planning, strategic orientation, and materiality support the family’s traditions and idyllic beachside lifestyle. The house comprises three solid volumes loosely wrapped in a timber skin. By positioning the home close to its rear boundary, we abolish the traditional model of the backyard and front fence; instead establishing an immediate dialogue with the garden, and a distant connection to the ocean.


这种有意的安排结合了分层的景观设计,创造了外围的户外空间,在亭子之间提供了阳光和庇护的机会。这样一来,房子和花园就与沿海气候一起跳起了优雅的舞蹈,为居住者和路人带来了动态体验。这种与元素的关系也体现在每个立面的开口节奏上。虽然有严格的顺序和比例,但通过深度的浅浅变化和滑动的木屏风,使这些开口变得活跃起来,给原本正式的外墙带来了轻松的气氛。
This intentional placement combines layered landscaping to create peripheral outdoor spaces, providing opportunities for sun and shelter among the pavilions. In doing so, the house and garden perform an elegant dance in step with its coastal climate, a dynamic experience for the occupant and passers-by. This relationship to the elements also informs the rhythm of openings along each façade. Though strictly ordered and proportioned, these are enlivened through shallow shifts in depth and sliding timber screens, lending a relaxed air to an otherwise formal facade.



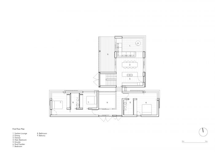
尽管对街道和社区做出了慷慨的让步,但每个亭子的位置和程序都经过深思熟虑,很好地保护了居民的隐私。生活馆位于场地的最北端,通过玻璃连接主馆和客馆,并将它们延伸到南部边界。我们的规划目标是舒适地容纳客人和主人,同时聚集和分开。楼下有盖的用餐区和客人的睡眠空间都延伸到了有遮蔽的庭院中。楼上,灵活的生活空间可以打开或缩小,独立的睡眠区为住宅的主要居住者提供临时的避难所。
Despite generous concessions made to the street and neighborhood, the considered placement and program of each pavilion graciously defend the privacy of its inhabitants. The living pavilion sits at the site’s northernmost point, connecting the main pavilion and the guest pavilion by a glazed link, and extending them to the southern boundary. Our objective with the plan is to comfortably accommodate guests and hosts while gathering and being apart. Downstairs covered dining areas and guest sleeping spaces spill out onto sheltered courtyards. Upstairs, flexible living spaces can open up or bunker down, with separate sleeping areas providing temporary sanctuaries for the home’s main occupants.

为Bermagui之家选择的材料讲述了一个令人回味的细微故事。在外观上,木材包层和沙丘式景观的刻意风化反映了其崎岖的环境。室内以精心策划的白色表面、柔软的沙子、木材和坚固的砖块为特色;是对附近的岩石池、海滩和悬崖的优雅的极简主义迭代。原始和触觉的材料、沉思的空间以及住宅周围有目的的过渡,都可以完全赤脚穿过。这是对严酷的沿海环境的一种平静的反驳,也是家庭度假的一个恢复性基地。
Materials selected for Bermagui House tell an evocatively nuanced story. Externally, the deliberate weathering of timber cladding and dune-like landscaping reflects its rugged context. Interiors feature a carefully curated palette of white surfaces, soft sand, timbers, and robust brickwork; an elegant minimalist iteration of rockpools, beaches, and cliffs nearby. Raw and tactile materiality, contemplative spaces, and purposeful transitions around the home can be traversed entirely barefoot. A calming counterpoint to its harsh coastal environs, and a restorative base for family getaways.













Architects: Winter Architecture
Area: 348 m²
Year: 2021
Photographs:Jack Mounsey
Manufacturers: Focus, Artedomus, Austral Masonry Blockwork & Pavers , Brodware, Collective, Great Dane Furniture, Mafi, Oblica, Screenwood, Sculptform Timber cladding , Tait, Volker Haug, Wood & Water
Landscape Architect: Kelly Royle Landscape Architecture
Builder: D.D Funston
Structural Engineer: Marshman O'Neill Engineers
Project Architect: Jean Graham
Design Team: Cara Rodrigues, Claire White, James Embry, Helen Pallot, Jack Mounsey, Philip Culpan, Emily von Moger, Isabella Hayward
City: Bermagui
Country: Australia